Larry Stein Oklahoma County Assessor (405) 713-1200 - Public Access System
Home Contact Us Guest Book Map Search New Search
Real Property Display - Screen Produced   4/30/2026 1:16:26 PM 
Account: R200651280  Type: Residential

  

Location:

8424 JOHN ROBERT DR

Building Name/Occupant:

 

OKLAHOMA CITY

Owner Name 1:  LINVILLE NEWELL G & JUANITA F TRS

Parcel PIN#:

1531-20-065-1280

Owner Name 2:  LINVILLE NEWELL G & JUANITA F REV TRUST 1/4 section #:

1531

Owner Name 3:    Parent Acct:

 

Billing Address:  8424 JOHN ROBERT DR Tax District:

City, State, Zip  OKLAHOMA CITY, OK  73135-6070 School System:

Moore #2

Country: (If noted)

  

Land Size:

0.2250  Acres

Personal Property

Land Value: 34,986 

Treasurer:

Sect 33-T11N-R2W Qtr SW

 THE EAGLES SOUTH SEC 4   Block 016  Lot 011   Subdivision Sales
 Full Legal Description:  THE EAGLES SOUTH SEC 4 016 011

NOTE:  The following sales may or may not be used to determine Fair Market Value

Photo & Sketch (if available) Sales  Sales Report

 5808 SE 87TH ST OKLAHOMA CITY, OK

03/20/2025

 $285,000 

 8412 JOHN ROBERT DR OKLAHOMA CITY, OK

06/13/2024

 $300,000 

 8420 JOHN ROBERT DR OKLAHOMA CITY, OK

01/30/2025

 $220,000 

 8208 PRAIRIE RIDGE RD OKLAHOMA CITY, OK

06/05/2025

 $230,000 

 8604 CANYON TRAIL DR OKLAHOMA CITY, OK

06/12/2025

 $285,000 

 5709 SE 84TH ST OKLAHOMA CITY, OK

06/08/2022

 $250,000 

Value History  (*The County Treasurer 405-713-1300 posts & collects actual tax amounts.  Contact information  HERE)
Year Market Value Taxable Mkt Value Gross Assessed Exemption Net Assessed Millage Est. Tax Tax Savings

2026

289,500 

216,718 

23,838 

1,000 

22,838 

123.20 

$2,814 

$1,110 

2025

279,000 

210,406 

23,144 

1,000 

22,144 

123.20 

$2,728 

$1,053 

2024

274,000 

204,278 

22,470 

1,000 

21,470 

122.28 

$2,625 

$1,060 

[1/10]
Property Account Status/Adjustments/Exemptions
Account # Exemption Description Amount

R200651280

3% Cap Homestead

R200651280

Homestead

1,000 

Property Deed Transaction History   (Recorded in the County Clerk's Office)
Date Type Book Page Price Grantor Grantee

9/12/2007

Deeds

10607

987

 $0 

LINVILLE NEWELL G & JUANITA F

LINVILLE NEWELL G & JUANITA F TRS

7/12/1999

Deeds

7639

492

 $147,000 

JUSTICE HOMES INC

LINVILLE NEWELL G & JUANITA F

10/23/1998

Historical

7431

976

 $16,500 

DICKERSON DEVELOPMENT INC

JUSTICE HOMES INC

[1/2]
Last Mailed Notice of Value (N.O.V.) Information/History
Year Date Market Value Taxable Market Value Gross Assessed Exemption Net Assessed

2026

02/06/2026

289,500 

216,718 

23,838 

1,000 

22,838 

2025

01/31/2025

279,000 

210,406 

23,144 

1,000 

22,144 

2024

01/22/2024

274,000 

204,278 

22,470 

1,000 

21,470 

[1/4]
Property Building Permit History
Issued Permit # Provided by Bldg # Description Est Construction Cost Status

11/17/1999

10267125

OKLAHOMA CITY

1

Other

2,060 

Inactive

10/8/1998

10267124

OKLAHOMA CITY

1

Main Dwellin

90,000 

Inactive

Click button below to access detailed information and additional property photos:
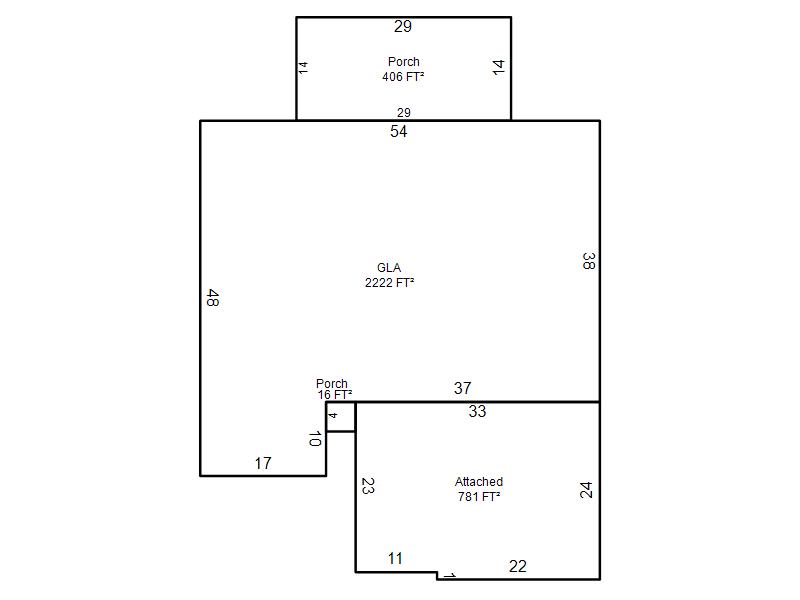
  Bldg # Vacant/Improved Land Bldg Description Year Built SqFt # Stories

Click

1

Improved

Ranch 1 Story

1999

2,222 

1 Stories