|
|
|
| Larry Stein Oklahoma County Assessor (405) 713-1200 - Public Access System |
|
|
|
|
|
|
| Real Property Display - Screen Produced 3/14/2026 1:17:13 PM | ||||
|---|---|---|---|---|
| Account: R144375047 | Type: Agricultural | Location: |
20425 SE 74TH ST, Unit A |
|
| Building Name/Occupant: |
|
OKLAHOMA CITY |
||
| Owner Name 1: | DE LARA SERGIO ESPARZA |
Parcel PIN#: |
1103-14-437-5047 |
|
| Owner Name 2: | ESPARZA BRENDA ELIZABETH | 1/4 section #: |
1103 |
|
| Owner Name 3: | Parent Acct: |
|
||
| Billing Address: | 3224 N HOLLOWAY AVE | Tax District: |
|
|
| City, State, Zip | BETHANY, OK 73008 | School System: |
Harrah #7 |
|
|
Country: (If noted) |
Land Size: |
26.2300 Acres |
||
|
Land Value: 65,611 |
|
|||
|
Sect 26-T11N-R1E Qtr SW |
UNPLTD PT SEC 26 11N 1E
Block
000
Lot
000
|
|||
| Full Legal Description: UNPLTD PT SEC 26 11N 1E 000 000 PT SW4 SEC 26 11N 1E BEG SE/C SW4 TH WLY 15FT NLY 913FT WLY1041FT NLY 1069.51FT ELY 1056FT SLY 1984.08FT TO BEG CONT 25.31ACRS MORE OR LESS |
| No comparable sales report available. | ||||||||||||||||||||||
|
||||||||||||||||||||||
| Value History (*The County Treasurer 405-713-1300 posts & collects actual tax amounts. Contact information HERE) | |||||||||||||
|---|---|---|---|---|---|---|---|---|---|---|---|---|---|
| Year | Market Value | Taxable Mkt Value | Gross Assessed | Exemption | Net Assessed | Millage | Est. Tax | Tax Savings | |||||
|
2025 |
307,179 |
197,045 |
21,674 |
0 |
21,674 |
122.70 |
$2,660 |
$1,486 |
|||||
|
2024 |
280,928 |
191,306 |
21,042 |
0 |
21,042 |
125.55 |
$2,642 |
$1,238 |
|||||
|
2023 |
223,444 |
185,734 |
20,430 |
0 |
20,430 |
112.66 |
$2,302 |
$467 |
|||||
|
2022 |
204,159 |
180,325 |
19,835 |
0 |
19,835 |
114.96 |
$2,280 |
$301 |
|||||
|
2021 |
175,073 |
175,073 |
19,258 |
0 |
19,258 |
114.25 |
$2,200 |
$0 |
|||||
| Property Account Status/Adjustments/Exemptions | ||
|---|---|---|
| Account # | Exemption Description | Amount |
|
R144375047 |
Capped Ag 3% |
0 |
| Property Deed Transaction History (Recorded in the County Clerk's Office) | |||||||
|---|---|---|---|---|---|---|---|
| Date | Type | Book | Page | Price | Grantor | Grantee | |
|
4/9/2018 |
|
Deeds |
$0 |
TROUTT ERNEST L & DALPHENE J |
TROUTT DALPHENE J |
||
|
4/9/2018 |
|
Deeds |
$220,000 |
TROUTT DALPHENE J |
DE LARA SERGIO ESPARZA |
||
|
8/1/1983 |
|
Historical |
$0 |
|
TROUTT ERNEST L & DALPHENE J |
||
| Last Mailed Notice of Value (N.O.V.) Information/History | ||||||||
|---|---|---|---|---|---|---|---|---|
| Year | Date | Market Value | Taxable Market Value | Gross Assessed | Exemption | Net Assessed | ||
|
2026 |
02/06/2026 |
292,749 |
202,956 |
22,324 |
0 |
22,324 |
||
|
2025 |
01/31/2025 |
307,179 |
197,045 |
21,674 |
0 |
21,674 |
||
|
2024 |
01/22/2024 |
280,928 |
191,306 |
21,042 |
0 |
21,042 |
||
|
2023 |
03/02/2023 |
223,444 |
185,734 |
20,430 |
0 |
20,430 |
||
|
2022 |
02/22/2022 |
204,159 |
180,325 |
19,835 |
0 |
19,835 |
||
| Property Building Permit History | |||||||||||
|---|---|---|---|---|---|---|---|---|---|---|---|
| Issued | Permit # | Provided by | Bldg # | Description | Est Construction Cost | Status | |||||
| No Building Permit records returned. | |||||||||||
| Click button on building number to access detailed information: | ||||||
|---|---|---|---|---|---|---|
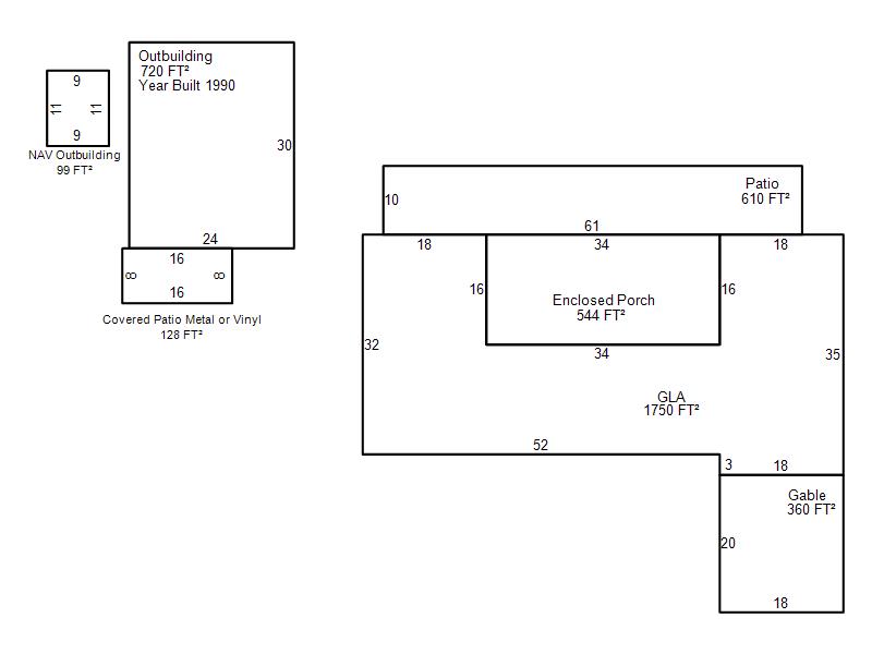
| Bldg # | Vacant/Improved Land | Bldg Description | Year Built | SqFt | # Stories | |
|
1 |
Improved |
Ranch 1 Story |
1986 |
1,750 |
1 Stories |
|