|
|
|
| Larry Stein Oklahoma County Assessor (405) 713-1200 - Public Access System |
|
|
|
|
|
|
| Real Property Display - Screen Produced 3/14/2026 1:17:12 PM | ||||
|---|---|---|---|---|
| Account: R144373540 | Type: Residential | Location: |
20300 SE 59TH ST |
|
| Building Name/Occupant: |
|
OKLAHOMA CITY |
||
| Owner Name 1: | KESSEE ETOLA ANN WHISENHUNT |
Parcel PIN#: |
1104-14-437-3540 |
|
| Owner Name 2: | 1/4 section #: |
1104 |
||
| Owner Name 3: | Parent Acct: |
|
||
| Billing Address: | PO BOX 267 | Tax District: |
|
|
| City, State, Zip | NEWALLA, OK 74857 | School System: |
Harrah #7 |
|
|
Country: (If noted) |
Land Size: |
3.0000 Acres |
||
|
Land Value: 20,625 |
|
|||
|
Sect 26-T11N-R1E Qtr NW |
UNPLTD PT SEC 26 11N 1E
Block
000
Lot
000
|
|||
| Full Legal Description: UNPLTD PT NW4 SEC 26 11N 1E BEG 611.97FT W & 33FT S OF NE/C NW4 TH SELY350.10FT S269.72FT NWLY 101.69FT NWLY519.19FT NWLY130.78FT N45.03FT E333.32FT TO BEG |
| Photo & Sketch (if available) | Comp Sales (ordered by relevancy) |
|
||||||||||||||||||
|
||||||||||||||||||||
| Value History (*The County Treasurer 405-713-1300 posts & collects actual tax amounts. Contact information HERE) | |||||||||||||
|---|---|---|---|---|---|---|---|---|---|---|---|---|---|
| Year | Market Value | Taxable Mkt Value | Gross Assessed | Exemption | Net Assessed | Millage | Est. Tax | Tax Savings | |||||
|
2025 |
161,000 |
98,533 |
10,838 |
0 |
10,838 |
122.70 |
$1,330 |
$843 |
|||||
|
2024 |
140,000 |
93,841 |
10,322 |
0 |
10,322 |
125.55 |
$1,296 |
$637 |
|||||
|
2023 |
129,500 |
89,373 |
9,830 |
0 |
9,830 |
112.66 |
$1,108 |
$497 |
|||||
|
2022 |
122,000 |
85,118 |
9,362 |
0 |
9,362 |
114.96 |
$1,076 |
$466 |
|||||
|
2021 |
104,000 |
81,065 |
8,916 |
0 |
8,916 |
114.25 |
$1,019 |
$288 |
|||||
| Property Account Status/Adjustments/Exemptions | ||
|---|---|---|
| Account # | Exemption Description | Amount |
|
R144373540 |
5% Capped Account |
0 |
| Property Deed Transaction History (Recorded in the County Clerk's Office) | |||||||
|---|---|---|---|---|---|---|---|
| Date | Type | Book | Page | Price | Grantor | Grantee | |
|
7/31/2022 |
|
Deeds |
$0 |
WHISENHUNT ETOLA ANN |
KESSEE ETOLA ANN WHISENHUNT |
||
|
2/1/2013 |
|
Deeds |
$0 |
KEESEE ETOLA ANN NKA WHISENHUNT & LOUIS |
WHISENHUNT ETOLA ANN |
||
|
12/1/1995 |
|
Historical |
$29,000 |
|
KEESEE ETOLA ANN |
||
| Last Mailed Notice of Value (N.O.V.) Information/History | ||||||||
|---|---|---|---|---|---|---|---|---|
| Year | Date | Market Value | Taxable Market Value | Gross Assessed | Exemption | Net Assessed | ||
|
2026 |
02/06/2026 |
167,000 |
103,459 |
11,379 |
0 |
11,379 |
||
|
2025 |
01/31/2025 |
161,000 |
98,533 |
10,838 |
0 |
10,838 |
||
|
2024 |
01/22/2024 |
140,000 |
93,841 |
10,322 |
0 |
10,322 |
||
|
2023 |
01/23/2023 |
129,500 |
89,373 |
9,830 |
0 |
9,830 |
||
|
2022 |
02/22/2022 |
122,000 |
85,118 |
9,361 |
0 |
9,361 |
||
| Property Building Permit History | ||||||
|---|---|---|---|---|---|---|
| Issued | Permit # | Provided by | Bldg # | Description | Est Construction Cost | Status |
|
9/16/2005 |
10311504 |
OKLAHOMA CITY |
1 |
Add On |
2,005 |
Inactive |
| Click button on building number to access detailed information: | ||||||
|---|---|---|---|---|---|---|
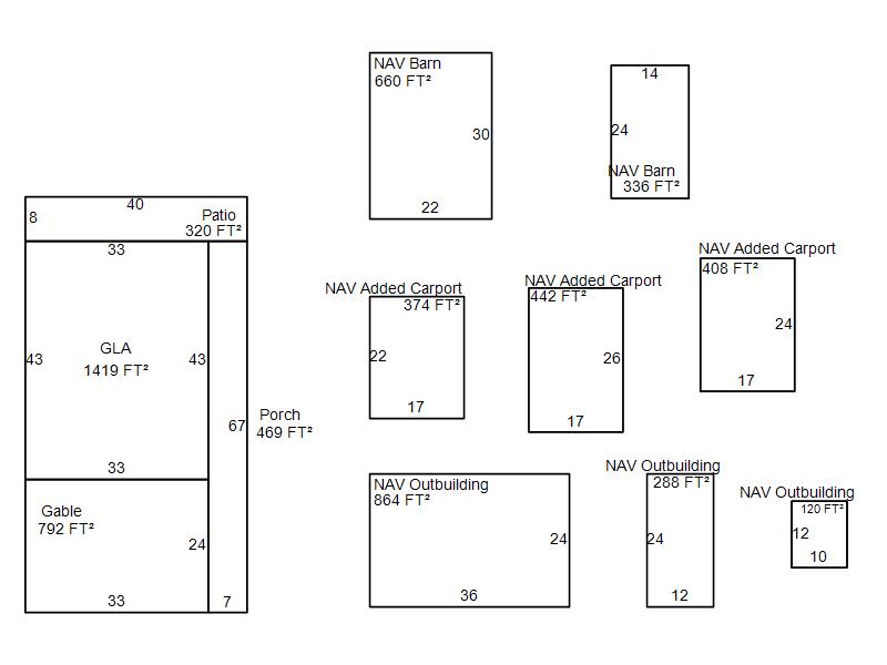
| Bldg # | Vacant/Improved Land | Bldg Description | Year Built | SqFt | # Stories | |
|
1 |
Improved |
Ranch 1 Story |
1965 |
1,419 |
1 Stories |
|