|
|
|
| Larry Stein Oklahoma County Assessor (405) 713-1200 - Public Access System |
|
|
|
|
|
|
| Real Property Display - Screen Produced 3/14/2026 6:53:31 AM | ||||
|---|---|---|---|---|
| Account: R144382065 | Type: Residential | Location: |
19808 SE 65TH ST |
|
| Building Name/Occupant: |
|
OKLAHOMA CITY |
||
| Owner Name 1: | SHUROW ISAAC & CALLIE |
Parcel PIN#: |
1105-14-438-2065 |
|
| Owner Name 2: | 1/4 section #: |
1105 |
||
| Owner Name 3: | Parent Acct: |
|
||
| Billing Address: | 19808 SE 65TH ST | Tax District: |
|
|
| City, State, Zip | NEWALLA, OK 74857 | School System: |
Harrah #7 |
|
|
Country: (If noted) |
UNITED STATES |
Land Size: |
4.7900 Acres |
|
|
Land Value: 42,008 |
|
|||
|
Sect 27-T11N-R1E Qtr NE |
UNPLTD PT SEC 27 11N 1E
Block
000
Lot
000
|
|||
| Full Legal Description: UNPLTD PT NE4 SEC 27 11N 1E BEG 660.84FT W OF SE/C NE4 TH W330.42FT N661.71FT E330.43FT S661.67FT TO BEG EX N30FT AKA TR 6 RIDGECREST HEIGHTS UNREC CONT 4.79ACRS MORE OR LESS |
| Photo & Sketch (if available) | Comp Sales (ordered by relevancy) |
|
||||||||||||||||||
|
||||||||||||||||||||
| Value History (*The County Treasurer 405-713-1300 posts & collects actual tax amounts. Contact information HERE) | |||||||||||||
|---|---|---|---|---|---|---|---|---|---|---|---|---|---|
| Year | Market Value | Taxable Mkt Value | Gross Assessed | Exemption | Net Assessed | Millage | Est. Tax | Tax Savings | |||||
|
2025 |
263,000 |
217,172 |
23,888 |
1,000 |
22,888 |
122.70 |
$2,808 |
$741 |
|||||
|
2024 |
259,000 |
210,847 |
23,192 |
1,000 |
22,192 |
125.55 |
$2,786 |
$791 |
|||||
|
2023 |
261,500 |
204,706 |
22,516 |
1,000 |
21,516 |
112.66 |
$2,424 |
$816 |
|||||
|
2022 |
229,000 |
198,744 |
21,861 |
1,000 |
20,861 |
114.96 |
$2,398 |
$498 |
|||||
|
2021 |
198,000 |
185,189 |
20,370 |
1,000 |
19,370 |
114.25 |
$2,213 |
$275 |
|||||
| Property Account Status/Adjustments/Exemptions | ||
|---|---|---|
| Account # | Exemption Description | Amount |
|
R144382065 |
Homestead |
1,000 |
| Property Deed Transaction History (Recorded in the County Clerk's Office) | |||||||
|---|---|---|---|---|---|---|---|
| Date | Type | Book | Page | Price | Grantor | Grantee | |
|
11/14/2025 |
|
Deeds |
$300,000 |
MURRAY MATTHEW D |
SHUROW ISAAC & CALLIE |
||
|
8/1/2008 |
|
Deeds |
$165,000 |
LINGO GORDON & GLENDA R |
MURRAY MATTHEW D |
||
|
11/5/2002 |
|
Deeds |
$0 |
LINGO GORDON & GLENDA R TRS LINGO FAMILY TRUST |
LINGO GORDON & GLENDA R |
||
|
11/9/2000 |
|
Deeds |
$0 |
LINGO GORDON & GLENDA RAY |
LINGO GORDON & GLENDA R TRS LINGO FAMILY TRUST |
||
|
8/1/1980 |
|
Historical |
$0 |
|
LINGO GORDON & GLENDA RAY |
||
| Last Mailed Notice of Value (N.O.V.) Information/History | ||||||||
|---|---|---|---|---|---|---|---|---|
| Year | Date | Market Value | Taxable Market Value | Gross Assessed | Exemption | Net Assessed | ||
|
2026 |
02/06/2026 |
263,500 |
263,500 |
28,985 |
1,000 |
27,985 |
||
|
2025 |
01/31/2025 |
263,000 |
217,172 |
23,888 |
1,000 |
22,888 |
||
|
2024 |
01/22/2024 |
259,000 |
210,847 |
23,192 |
1,000 |
22,192 |
||
|
2023 |
01/23/2023 |
261,500 |
204,706 |
22,516 |
1,000 |
21,516 |
||
|
2022 |
02/22/2022 |
229,000 |
198,744 |
21,861 |
1,000 |
20,861 |
||
| Property Building Permit History | ||||||
|---|---|---|---|---|---|---|
| Issued | Permit # | Provided by | Bldg # | Description | Est Construction Cost | Status |
|
11/18/2020 |
BLDR-2020-08104 |
|
1 |
Other |
6,000 |
Inactive |
| Click button on building number to access detailed information: | ||||||
|---|---|---|---|---|---|---|
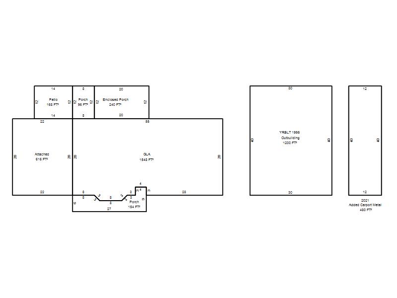
| Bldg # | Vacant/Improved Land | Bldg Description | Year Built | SqFt | # Stories | |
|
1 |
Improved |
Ranch 1 Story |
1978 |
1,548 |
1 Stories |
|