|
|
|
| Larry Stein Oklahoma County Assessor (405) 713-1200 - Public Access System |
|
|
|
|
|
|
| Real Property Display - Screen Produced 3/14/2026 6:53:31 AM | ||||
|---|---|---|---|---|
| Account: R144383250 | Type: Residential | Location: |
19701 SE 72ND ST |
|
| Building Name/Occupant: |
|
OKLAHOMA CITY |
||
| Owner Name 1: | HILL KELTON F |
Parcel PIN#: |
1106-14-438-3250 |
|
| Owner Name 2: | 1/4 section #: |
1106 |
||
| Owner Name 3: | Parent Acct: |
|
||
| Billing Address: | 19701 SE 72ND ST | Tax District: |
|
|
| City, State, Zip | NEWALLA, OK 74857-8329 | School System: |
Harrah #7 |
|
|
Country: (If noted) |
Land Size: |
5.0500 Acres |
||
|
Land Value: 72,720 |
|
|||
|
Sect 27-T11N-R1E Qtr SE |
UNPLTD PT SEC 27 11N 1E
Block
000
Lot
000
|
|||
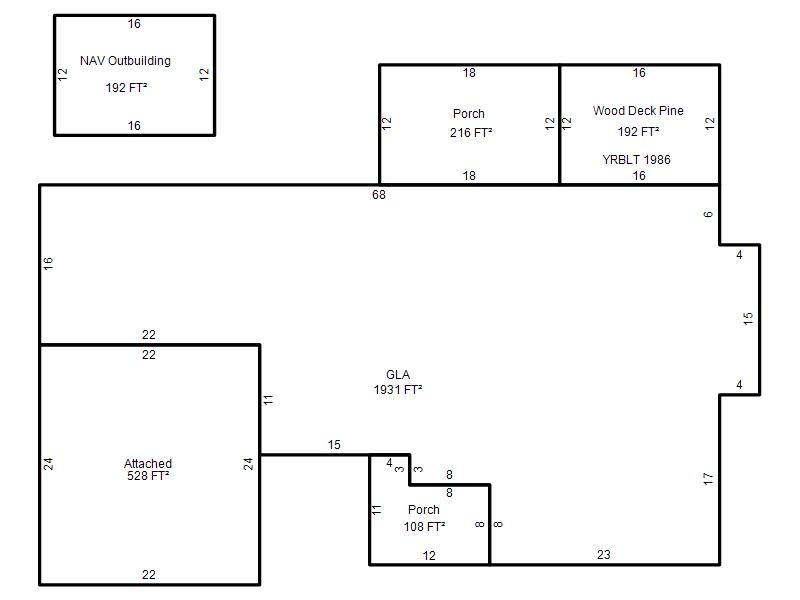
| Full Legal Description: UNPLTD PT SEC 27 11N 1E 000 000 PT SE4 SEC 27 11N 1E BEG 880FT N & 1245FT W OF SE/C OF SE4 TH W250FT N880FT E250FT S880FT TO BEG OR TR 6 |
| Photo & Sketch (if available) | Comp Sales (ordered by relevancy) |
|
||||||||||||||||||
|
||||||||||||||||||||
| Value History (*The County Treasurer 405-713-1300 posts & collects actual tax amounts. Contact information HERE) | |||||||||||||
|---|---|---|---|---|---|---|---|---|---|---|---|---|---|
| Year | Market Value | Taxable Mkt Value | Gross Assessed | Exemption | Net Assessed | Millage | Est. Tax | Tax Savings | |||||
|
2025 |
350,000 |
281,734 |
30,990 |
0 |
30,990 |
122.70 |
$3,803 |
$921 |
|||||
|
2024 |
343,000 |
268,319 |
29,514 |
0 |
29,514 |
125.55 |
$3,706 |
$1,031 |
|||||
|
2023 |
313,500 |
255,542 |
28,109 |
0 |
28,109 |
112.66 |
$3,167 |
$718 |
|||||
|
2022 |
277,500 |
243,374 |
26,770 |
0 |
26,770 |
114.96 |
$3,078 |
$432 |
|||||
|
2021 |
256,000 |
231,785 |
25,496 |
0 |
25,496 |
114.25 |
$2,913 |
$304 |
|||||
| Property Account Status/Adjustments/Exemptions | ||
|---|---|---|
| Account # | Exemption Description | Amount |
|
R144383250 |
5% Capped Account |
0 |
| Property Deed Transaction History (Recorded in the County Clerk's Office) | ||||||||||
|---|---|---|---|---|---|---|---|---|---|---|
| Date | Type | Book | Page | Price | Grantor | Grantee | ||||
|
8/5/2011 |
|
Deeds |
$190,000 |
ROGERS KENNETH & TERESA |
HILL KELTON F |
|||||
|
7/30/2007 |
|
Deeds |
$187,000 |
TRAPASSO GIUSEPPE |
ROGERS KENNETH & TERESA |
|||||
|
7/6/2006 |
|
Deeds |
$175,000 |
GREEN TIM A & BONNIE D |
TRAPASSO GIUSEPPE |
|||||
|
12/15/2004 |
|
Deeds |
$163,000 |
PENNER D DWAINE & JANICE L |
GREEN TIM A & BONNIE D |
|||||
|
3/26/2003 |
|
Deeds |
$145,000 |
POE-POE KATHLEEN LAKIN PERS REP LAKIN RON L |
PENNER D DWAINE & JANICE L |
|||||
| Last Mailed Notice of Value (N.O.V.) Information/History | ||||||||
|---|---|---|---|---|---|---|---|---|
| Year | Date | Market Value | Taxable Market Value | Gross Assessed | Exemption | Net Assessed | ||
|
2026 |
02/06/2026 |
353,500 |
295,820 |
32,539 |
0 |
32,539 |
||
|
2025 |
01/31/2025 |
350,000 |
281,734 |
30,990 |
0 |
30,990 |
||
|
2024 |
01/22/2024 |
343,000 |
268,319 |
29,514 |
0 |
29,514 |
||
|
2023 |
01/23/2023 |
313,500 |
255,542 |
28,109 |
0 |
28,109 |
||
|
2022 |
02/22/2022 |
277,500 |
243,374 |
26,770 |
0 |
26,770 |
||
| Property Building Permit History | |||||||||||
|---|---|---|---|---|---|---|---|---|---|---|---|
| Issued | Permit # | Provided by | Bldg # | Description | Est Construction Cost | Status | |||||
| No Building Permit records returned. | |||||||||||
| Click button on building number to access detailed information: | ||||||
|---|---|---|---|---|---|---|
| Bldg # | Vacant/Improved Land | Bldg Description | Year Built | SqFt | # Stories | |
|
1 |
Improved |
Ranch 1 Story |
1986 |
1,931 |
1 Stories |
|