|
|
|
| Larry Stein Oklahoma County Assessor (405) 713-1200 - Public Access System |
|
|
|
|
|
|
| Real Property Display - Screen Produced 3/14/2026 11:37:32 AM | ||||
|---|---|---|---|---|
| Account: R144416030 | Type: Residential | Location: |
6001 DEAL AVE |
|
| Building Name/Occupant: |
|
OKLAHOMA CITY |
||
| Owner Name 1: | LEWELLEN MARK & ELIZABETH A |
Parcel PIN#: |
1116-14-441-6030 |
|
| Owner Name 2: | 1/4 section #: |
1116 |
||
| Owner Name 3: | Parent Acct: |
|
||
| Billing Address: | 655 TURTLE CREEK DR | Tax District: |
|
|
| City, State, Zip | CHOCTAW, OK 73020-7442 | School System: |
McLoud #1 |
|
|
Country: (If noted) |
Land Size: |
5.0500 Acres |
||
|
Land Value: 87,303 |
|
|||
|
Sect 29-T11N-R1E Qtr NW |
UNPLTD PT SEC 29 11N 1E
Block
000
Lot
000
|
|||
| Full Legal Description: UNPLTD PT SEC 29 11N 1E 000 000 PT NW4 SEC 29 11N 1E BEG 1617.19FT E OF NW/C OF NW4 TH E342FT S643.62FT W342FT N644.31FT TO BEG CONT 5.05ACRS MORE OR LESS AKA TR 3 WENNER WOODS UNREC |
| No comparable sales report available. | ||||||||||||||||||||||
|
||||||||||||||||||||||
| Value History (*The County Treasurer 405-713-1300 posts & collects actual tax amounts. Contact information HERE) | |||||||||||||
|---|---|---|---|---|---|---|---|---|---|---|---|---|---|
| Year | Market Value | Taxable Mkt Value | Gross Assessed | Exemption | Net Assessed | Millage | Est. Tax | Tax Savings | |||||
|
2025 |
97,656 |
51,444 |
5,658 |
0 |
5,658 |
107.58 |
$609 |
$547 |
|||||
|
2024 |
66,975 |
48,995 |
5,388 |
0 |
5,388 |
108.01 |
$582 |
$214 |
|||||
|
2023 |
88,083 |
46,662 |
5,132 |
0 |
5,132 |
106.94 |
$549 |
$487 |
|||||
|
2022 |
53,446 |
44,440 |
4,887 |
0 |
4,887 |
108.95 |
$533 |
$108 |
|||||
|
2021 |
42,324 |
42,324 |
4,655 |
0 |
4,655 |
135.78 |
$632 |
$0 |
|||||
| Property Account Status/Adjustments/Exemptions | ||
|---|---|---|
| Account # | Exemption Description | Amount |
|
R144416030 |
5% Capped Account |
0 |
| Property Deed Transaction History (Recorded in the County Clerk's Office) | |||||||
|---|---|---|---|---|---|---|---|
| Date | Type | Book | Page | Price | Grantor | Grantee | |
|
9/26/1995 |
|
Historical |
$0 |
KRONHOLM STEVEN P & GLORIA |
LEWELLEN MARK & ELIZABETH A |
||
|
5/1/1995 |
|
Historical |
$18,500 |
HODGES JAMES & CHARITY |
KRONHOLM STEVEN P & GLORIA |
||
|
3/5/1992 |
|
Historical |
$0 |
ANGLIN RALPH A JR & CATHY L |
HODGES JAMES & CHARITY |
||
|
8/1/1986 |
|
Historical |
$0 |
RIGGLE RONALD L |
ANGLIN RALPH A JR & CATHY L |
||
|
10/1/1982 |
|
Historical |
$0 |
|
RIGGLE RONALD L |
||
| Last Mailed Notice of Value (N.O.V.) Information/History | ||||||||
|---|---|---|---|---|---|---|---|---|
| Year | Date | Market Value | Taxable Market Value | Gross Assessed | Exemption | Net Assessed | ||
|
2026 |
02/06/2026 |
102,114 |
54,016 |
5,940 |
0 |
5,940 |
||
|
2025 |
01/31/2025 |
97,656 |
51,444 |
5,658 |
0 |
5,658 |
||
|
2024 |
01/22/2024 |
66,975 |
48,995 |
5,388 |
0 |
5,388 |
||
|
2023 |
01/23/2023 |
88,083 |
46,662 |
5,132 |
0 |
5,132 |
||
|
2022 |
02/22/2022 |
53,446 |
44,440 |
4,887 |
0 |
4,887 |
||
| Property Building Permit History | |||||||||||
|---|---|---|---|---|---|---|---|---|---|---|---|
| Issued | Permit # | Provided by | Bldg # | Description | Est Construction Cost | Status | |||||
| No Building Permit records returned. | |||||||||||
| Click button on building number to access detailed information: | ||||||
|---|---|---|---|---|---|---|
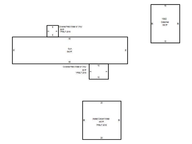
| Bldg # | Vacant/Improved Land | Bldg Description | Year Built | SqFt | # Stories | |
|
1 |
Improved |
Single Wide |
1979 |
840 |
1 Stories |
|