|
|
|
| Larry Stein Oklahoma County Assessor (405) 713-1200 - Public Access System |
|
|
|
|
|
|
| Real Property Display - Screen Produced 3/14/2026 11:37:31 AM | ||||
|---|---|---|---|---|
| Account: R144416100 | Type: Agricultural | Location: |
17300 MELODIE LN |
|
| Building Name/Occupant: |
|
OKLAHOMA CITY |
||
| Owner Name 1: | ADB FAMILY REV LIVING TRUST |
Parcel PIN#: |
1116-14-441-6100 |
|
| Owner Name 2: | 1/4 section #: |
1116 |
||
| Owner Name 3: | Parent Acct: |
|
||
| Billing Address: | 6800 S TRIPLE X RD | Tax District: |
|
|
| City, State, Zip | CHOCTAW, OK 73020-4931 | School System: |
McLoud #1 |
|
|
Country: (If noted) |
Land Size: |
5.0000 Acres |
||
|
Land Value: 33,553 |
|
|||
|
Sect 29-T11N-R1E Qtr NW |
UNPLTD PT SEC 29 11N 1E
Block
000
Lot
000
|
|||
| Full Legal Description: UNPLTD PT SEC 29 11N 1E 000 000 PT NW4 SEC 29 11N 1E BEG 1968.40FT S & 1660.52FT E OF NW/C NW4 TH E326.04FT S669.03FT W326.04FT N667.65FT TO BEG CONT 5.002ACRS MORE OR LESS AKA TR 22 WENNER WOOD UNREC |
| No comparable sales report available. | ||||||||||||||||||||||
|
||||||||||||||||||||||
| Value History (*The County Treasurer 405-713-1300 posts & collects actual tax amounts. Contact information HERE) | |||||||||||||
|---|---|---|---|---|---|---|---|---|---|---|---|---|---|
| Year | Market Value | Taxable Mkt Value | Gross Assessed | Exemption | Net Assessed | Millage | Est. Tax | Tax Savings | |||||
|
2025 |
223,747 |
17,287 |
1,901 |
0 |
1,901 |
107.58 |
$205 |
$2,443 |
|||||
|
2024 |
204,484 |
16,784 |
1,845 |
0 |
1,845 |
108.01 |
$199 |
$2,230 |
|||||
|
2023 |
20,642 |
16,296 |
1,792 |
0 |
1,792 |
106.94 |
$192 |
$51 |
|||||
|
2022 |
15,822 |
15,822 |
1,740 |
0 |
1,740 |
108.95 |
$190 |
$0 |
|||||
|
2021 |
17,106 |
17,106 |
1,881 |
0 |
1,881 |
135.78 |
$255 |
$0 |
|||||
| Property Account Status/Adjustments/Exemptions | ||
|---|---|---|
| Account # | Exemption Description | Amount |
|
R144416100 |
Capped Ag 3% |
0 |
| Property Deed Transaction History (Recorded in the County Clerk's Office) | |||||||
|---|---|---|---|---|---|---|---|
| Date | Type | Book | Page | Price | Grantor | Grantee | |
|
10/8/2014 |
|
Deeds |
$0 |
BURGETT ALAN H BURGETT DEBORAH S AKA DEBBIE S |
ADB FAMILY REV LIVING TRUST |
||
|
12/22/2005 |
|
Deeds |
$55,000 |
MILLER ROY & BARBARA |
BURGETT ALAN H BURGETT DEBBIE S |
||
|
6/8/1990 |
|
Historical |
$18,000 |
LAND RESOURCE |
MILLER ROY & BARBARA |
||
|
1/16/1990 |
|
Historical |
$0 |
GAYLER DONALD D & SHARON R |
LAND RESOURCE |
||
|
3/1/1985 |
|
Historical |
$0 |
|
GAYLER DONALD D & SHARON R |
||
| Last Mailed Notice of Value (N.O.V.) Information/History | ||||||||
|---|---|---|---|---|---|---|---|---|
| Year | Date | Market Value | Taxable Market Value | Gross Assessed | Exemption | Net Assessed | ||
|
2026 |
02/06/2026 |
223,865 |
17,805 |
1,958 |
0 |
1,958 |
||
|
2025 |
01/31/2025 |
223,747 |
17,287 |
1,901 |
0 |
1,901 |
||
|
2024 |
01/22/2024 |
204,484 |
16,784 |
1,845 |
0 |
1,845 |
||
|
2023 |
03/02/2023 |
20,642 |
16,296 |
1,792 |
0 |
1,792 |
||
|
2020 |
02/21/2020 |
17,310 |
17,219 |
1,894 |
0 |
1,894 |
||
| Property Building Permit History | ||||||
|---|---|---|---|---|---|---|
| Issued | Permit # | Provided by | Bldg # | Description | Est Construction Cost | Status |
|
11/29/2012 |
10447222 |
OKLAHOMA CITY |
1 |
Storage Buil |
30,000 |
Inactive |
| Click button on building number to access detailed information: | ||||||
|---|---|---|---|---|---|---|
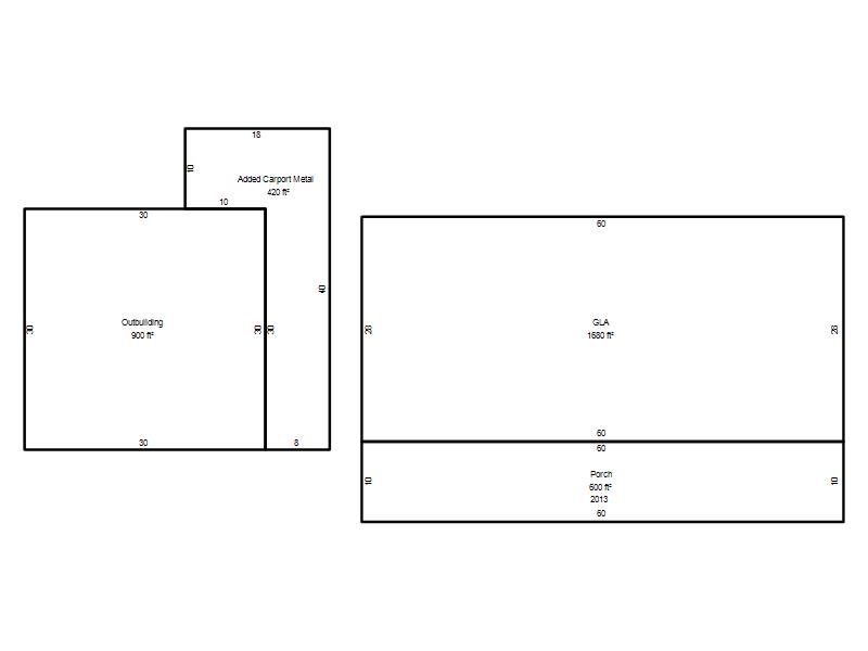
| Bldg # | Vacant/Improved Land | Bldg Description | Year Built | SqFt | # Stories | |
|
1 |
Improved |
Ranch 1 Story |
2013 |
1,680 |
1 Stories |
|