|
|
|
| Larry Stein Oklahoma County Assessor (405) 713-1200 - Public Access System |
|
|
|
|
|
|
| Real Property Display - Screen Produced 3/11/2026 11:43:00 PM | ||||
|---|---|---|---|---|
| Account: R267012990 | Type: Residential | Location: |
21068 E RENO AVE |
|
| Building Name/Occupant: |
|
UNINCORPORATED |
||
| Owner Name 1: | BYERS RONNIE W |
Parcel PIN#: |
1004-26-701-2990 |
|
| Owner Name 2: | 1/4 section #: |
1004 |
||
| Owner Name 3: | Parent Acct: |
|
||
| Billing Address: | PO BOX 1412 | Tax District: |
|
|
| City, State, Zip | HARRAH, OK 73045-1412 | School System: |
Harrah #7 |
|
|
Country: (If noted) |
Land Size: |
2.0000 Acres |
||
|
Land Value: 31,600 |
|
|||
|
Sect 1-T11N-R1E Qtr NW |
POTTAWATOMIE TOWNSHIP
Block
000
Lot
000
|
|||
| Full Legal Description: POTTAWATOMIE TOWNSHIP PT NW4 SEC 1 11N 1E BEG 361.39FT E & 368.48FT S OF NW/C NW4TH E300FT S290.40FT W300FT N290.40FT TO BEG SUBJ TO ESMTS OF RECORD |
| No comparable sales report available. | ||||||||||||||||||||||
|
||||||||||||||||||||||
| Value History (*The County Treasurer 405-713-1300 posts & collects actual tax amounts. Contact information HERE) | |||||||||||||
|---|---|---|---|---|---|---|---|---|---|---|---|---|---|
| Year | Market Value | Taxable Mkt Value | Gross Assessed | Exemption | Net Assessed | Millage | Est. Tax | Tax Savings | |||||
|
2025 |
79,046 |
77,177 |
8,489 |
0 |
8,489 |
107.54 |
$913 |
$22 |
|||||
|
2024 |
79,177 |
73,502 |
8,085 |
0 |
8,085 |
110.62 |
$894 |
$69 |
|||||
|
2023 |
79,309 |
70,002 |
7,699 |
0 |
7,699 |
97.88 |
$754 |
$100 |
|||||
|
2022 |
66,669 |
66,669 |
7,333 |
0 |
7,333 |
99.50 |
$730 |
$0 |
|||||
|
2021 |
65,509 |
65,509 |
7,205 |
0 |
7,205 |
99.52 |
$717 |
$0 |
|||||
| Property Account Status/Adjustments/Exemptions | ||
|---|---|---|
| Account # | Exemption Description | Amount |
|
R267012990 |
5% Capped Account |
0 |
| Property Deed Transaction History (Recorded in the County Clerk's Office) | |||||||
|---|---|---|---|---|---|---|---|
| Date | Type | Book | Page | Price | Grantor | Grantee | |
|
6/30/2000 |
|
Hmstd Off & |
$0 |
BYERS JOSEPH E & SALLY M |
BYERS RONNIE W |
||
|
6/3/1997 |
|
Historical |
$0 |
PRUITT LEONARD RAY |
BYERS JOSEPH E & SALLY M |
||
|
7/21/1992 |
|
Historical |
$0 |
PRUITT LEWELL W |
PRUITT LEONARD RAY |
||
|
11/16/1989 |
|
Historical |
$0 |
PRUITT LEWELL W |
PRUITT LEWELL W |
||
|
6/1/1975 |
|
Historical |
$0 |
|
PRUITT LEWELL W |
||
| Last Mailed Notice of Value (N.O.V.) Information/History | ||||||||
|---|---|---|---|---|---|---|---|---|
| Year | Date | Market Value | Taxable Market Value | Gross Assessed | Exemption | Net Assessed | ||
|
2026 |
02/06/2026 |
78,913 |
78,913 |
8,680 |
0 |
8,680 |
||
|
2025 |
01/31/2025 |
79,046 |
77,177 |
8,489 |
0 |
8,489 |
||
|
2024 |
01/22/2024 |
79,177 |
73,502 |
8,085 |
0 |
8,085 |
||
|
2023 |
01/23/2023 |
79,309 |
70,002 |
7,699 |
0 |
7,699 |
||
|
2022 |
02/22/2022 |
66,669 |
66,669 |
7,333 |
0 |
7,333 |
||
| Property Building Permit History | |||||||||||
|---|---|---|---|---|---|---|---|---|---|---|---|
| Issued | Permit # | Provided by | Bldg # | Description | Est Construction Cost | Status | |||||
| No Building Permit records returned. | |||||||||||
| Click button on building number to access detailed information: | ||||||
|---|---|---|---|---|---|---|
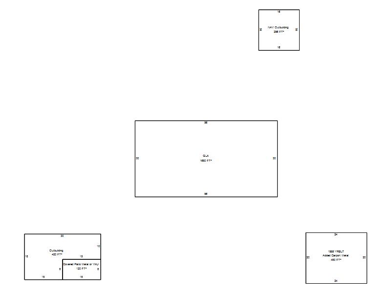
| Bldg # | Vacant/Improved Land | Bldg Description | Year Built | SqFt | # Stories | |
|
1 |
Improved |
Double Wide |
2011 |
1,680 |
1 Stories |
|