|
|
|
| Larry Stein Oklahoma County Assessor (405) 713-1200 - Public Access System |
|
|
|
|
|
|
| Real Property Display - Screen Produced 3/16/2026 6:55:33 AM | ||||
|---|---|---|---|---|
| Account: R144421890 | Type: Residential | Location: |
7400 S INDIAN MERIDIAN RD |
|
| Building Name/Occupant: |
|
OKLAHOMA CITY |
||
| Owner Name 1: | FRIES DUSTIN B & EMILY H |
Parcel PIN#: |
1119-14-442-1890 |
|
| Owner Name 2: | 1/4 section #: |
1119 |
||
| Owner Name 3: | Parent Acct: |
|
||
| Billing Address: | 7400 S INDIAN MERIDIAN RD | Tax District: |
|
|
| City, State, Zip | CHOCTAW, OK 73020 | School System: |
Choctaw #4 |
|
|
Country: (If noted) |
Land Size: |
10.0200 Acres |
||
|
Land Value: 95,681 |
|
|||
|
Sect 30-T11N-R1E Qtr SW |
UNPLTD PT SEC 30 11N 1E
Block
000
Lot
000
|
|||
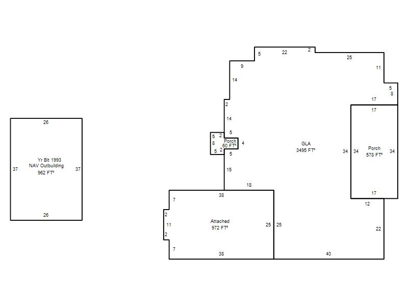
| Full Legal Description: UNPLTD PT SW4 SEC 30 11N 1E BEG 263FT N OF SW/C SW4 TH N263FT E830FT S263FT W830FT TO BEG & BEG SW/C SEC 30 TH N263FT E830FT S263FT W830FT TO BEG |
| Photo & Sketch (if available) | Comp Sales (ordered by relevancy) |
|
||||||||||||||||||
|
||||||||||||||||||||
| Value History (*The County Treasurer 405-713-1300 posts & collects actual tax amounts. Contact information HERE) | |||||||||||||
|---|---|---|---|---|---|---|---|---|---|---|---|---|---|
| Year | Market Value | Taxable Mkt Value | Gross Assessed | Exemption | Net Assessed | Millage | Est. Tax | Tax Savings | |||||
|
2025 |
706,000 |
706,000 |
77,660 |
1,000 |
76,660 |
132.37 |
$10,147 |
$132 |
|||||
|
2024 |
95,681 |
95,681 |
10,524 |
0 |
10,524 |
131.28 |
$1,382 |
$0 |
|||||
|
2023 |
101,282 |
101,282 |
11,141 |
0 |
11,141 |
131.88 |
$1,469 |
$0 |
|||||
|
2022 |
101,282 |
101,281 |
11,140 |
0 |
11,140 |
130.63 |
$1,455 |
$0 |
|||||
|
2021 |
50,000 |
50,000 |
5,500 |
0 |
5,500 |
129.79 |
$714 |
$0 |
|||||
| Property Account Status/Adjustments/Exemptions | ||
|---|---|---|
| Account # | Exemption Description | Amount |
|
R144421890 |
Homestead |
1,000 |
|
R144421890 |
3% Cap Homestead |
0 |
| Property Deed Transaction History (Recorded in the County Clerk's Office) | |||||||
|---|---|---|---|---|---|---|---|
| Date | Type | Book | Page | Price | Grantor | Grantee | |
|
12/14/2021 |
|
Deeds |
$0 |
FRIES DUSTIN B & EMILY H |
FRIES DUSTIN B & EMILY H |
||
|
12/12/2018 |
|
Deeds |
$50,000 |
MARTINUC PAUL & LIDIA |
FRIES DUSTIN B & EMILY H |
||
|
1/3/1997 |
|
Historical |
$22,000 |
VER STEEGH PAUL JAMES |
MARTINUC PAUL & LIDIA |
||
|
6/19/1991 |
|
Historical |
$0 |
|
VER STEEGH PAUL JAMES |
||
| Last Mailed Notice of Value (N.O.V.) Information/History | ||||||
|---|---|---|---|---|---|---|
| Year | Date | Market Value | Taxable Market Value | Gross Assessed | Exemption | Net Assessed |
|
2026 |
02/06/2026 |
740,500 |
727,180 |
79,989 |
1,000 |
78,989 |
|
2025 |
03/28/2025 |
706,000 |
706,000 |
77,660 |
1,000 |
76,660 |
|
2019 |
02/26/2019 |
50,000 |
50,000 |
5,500 |
0 |
5,500 |
| Property Building Permit History | ||||||
|---|---|---|---|---|---|---|
| Issued | Permit # | Provided by | Bldg # | Description | Est Construction Cost | Status |
|
7/10/2023 |
BLDR-2023--02170 |
|
|
Main Dwellin |
475,000 |
Inactive |
| Click button on building number to access detailed information: | ||||||
|---|---|---|---|---|---|---|
| Bldg # | Vacant/Improved Land | Bldg Description | Year Built | SqFt | # Stories | |
|
1 |
Improved |
Ranch 1 Story |
2023 |
3,495 |
1 Stories |
|