|
|
|
| Larry Stein Oklahoma County Assessor (405) 713-1200 - Public Access System |
|
|
|
|
|
|
| Real Property Display - Screen Produced 3/14/2026 1:17:12 PM | ||||
|---|---|---|---|---|
| Account: R144433055 | Type: Residential | Location: |
16231 INDIAN HILL RD |
|
| Building Name/Occupant: |
|
OKLAHOMA CITY |
||
| Owner Name 1: | CROFT KYLE & JORDAN |
Parcel PIN#: |
1120-14-443-3055 |
|
| Owner Name 2: | 1/4 section #: |
1120 |
||
| Owner Name 3: | Parent Acct: |
|
||
| Billing Address: | 16231 INDIAN HILL RD | Tax District: |
|
|
| City, State, Zip | CHOCTAW, OK 73020 | School System: |
Choctaw #4 |
|
|
Country: (If noted) |
UNITED STATES |
Land Size: |
4.7700 Acres |
|
|
Land Value: 40,545 |
|
|||
|
Sect 30-T11N-R1E Qtr NW |
UNPLTD PT SEC 30 11N 1E
Block
000
Lot
000
|
|||
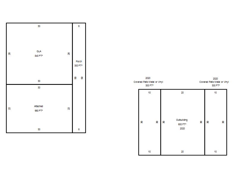
| Full Legal Description: UNPLTD PT NW/4 SEC 30 11N 1E E/2 NW/4 SE/4 NW/4 EX S30FT FOR RD CONT 4.77ACRS MORE OR LESS AKA TR 5 INDIAN HILLS UNREC |
| Photo & Sketch (if available) | Comp Sales (ordered by relevancy) |
|
||||||||||||||||||
|
||||||||||||||||||||
| Value History (*The County Treasurer 405-713-1300 posts & collects actual tax amounts. Contact information HERE) | |||||||||||||
|---|---|---|---|---|---|---|---|---|---|---|---|---|---|
| Year | Market Value | Taxable Mkt Value | Gross Assessed | Exemption | Net Assessed | Millage | Est. Tax | Tax Savings | |||||
|
2025 |
296,000 |
291,060 |
32,016 |
0 |
32,016 |
132.37 |
$4,238 |
$72 |
|||||
|
2024 |
296,000 |
277,200 |
30,492 |
0 |
30,492 |
131.28 |
$4,003 |
$271 |
|||||
|
2023 |
264,000 |
264,000 |
29,040 |
0 |
29,040 |
131.88 |
$3,830 |
$0 |
|||||
|
2022 |
41,637 |
41,637 |
4,580 |
0 |
4,580 |
130.63 |
$598 |
$0 |
|||||
|
2021 |
41,637 |
41,637 |
4,580 |
0 |
4,580 |
129.79 |
$594 |
$0 |
|||||
| Property Account Status/Adjustments/Exemptions | ||
|---|---|---|
| Account # | Exemption Description | Amount |
|
R144433055 |
Homestead |
1,000 |
|
R144433055 |
3% Cap Homestead |
0 |
| Property Deed Transaction History (Recorded in the County Clerk's Office) | ||||||||||
|---|---|---|---|---|---|---|---|---|---|---|
| Date | Type | Book | Page | Price | Grantor | Grantee | ||||
|
2/23/2023 |
|
Hmstd Off & |
$0 |
CROFT WILLIAM D & RHONDA M |
CROFT KYLE & JORDAN |
|||||
|
10/29/2001 |
|
Deeds |
$25,000 |
TURNEY B M & GERALDINE P |
CROFT WILLIAM D & RHONDA M |
|||||
|
6/4/2001 |
|
Other |
$0 |
WALKER CHASTITY |
TURNEY B M & GERALDINE |
|||||
|
4/17/2001 |
|
Other |
$0 |
WALKER JEREMY R & CHASTITY M |
TURNEY B M & GERALDINE P |
|||||
|
8/11/1998 |
|
Historical |
$25,000 |
TURNEY B M & GERALDINE P |
WALKER JEREMY R & CHASTITY M |
|||||
| Last Mailed Notice of Value (N.O.V.) Information/History | ||||||||
|---|---|---|---|---|---|---|---|---|
| Year | Date | Market Value | Taxable Market Value | Gross Assessed | Exemption | Net Assessed | ||
|
2025 |
01/31/2025 |
296,000 |
291,060 |
32,016 |
0 |
32,016 |
||
|
2024 |
01/22/2024 |
296,000 |
277,200 |
30,492 |
0 |
30,492 |
||
|
2023 |
03/02/2023 |
264,000 |
264,000 |
29,040 |
0 |
29,040 |
||
|
2023 |
04/21/2023 |
264,000 |
264,000 |
29,040 |
0 |
29,040 |
||
|
2018 |
04/09/2018 |
59,907 |
57,165 |
6,287 |
0 |
6,287 |
||
| Property Building Permit History | ||||||
|---|---|---|---|---|---|---|
| Issued | Permit # | Provided by | Bldg # | Description | Est Construction Cost | Status |
|
5/11/2010 |
10398485 |
COUNTY |
|
Other |
0 |
Inactive |
|
12/14/2008 |
10348404 |
OKLAHOMA CITY |
|
Main Dwellin |
33,000 |
Inactive |
| Click button on building number to access detailed information: | ||||||
|---|---|---|---|---|---|---|
| Bldg # | Vacant/Improved Land | Bldg Description | Year Built | SqFt | # Stories | |
|
1 |
Improved |
Ranch 1 Story |
2019 |
840 |
1 Stories |
|