|
|
|
| Larry Stein Oklahoma County Assessor (405) 713-1200 - Public Access System |
|
|
|
|
|
|
| Real Property Display - Screen Produced 3/12/2026 2:40:20 AM | ||||
|---|---|---|---|---|
| Account: R168673765 | Type: Residential | Location: |
7901 S TRIPLE X RD |
|
| Building Name/Occupant: |
|
OKLAHOMA CITY |
||
| Owner Name 1: | THOMAS RODGER DALE & TERESA GAIL TRS |
Parcel PIN#: |
1121-16-867-3765 |
|
| Owner Name 2: | THOMAS RODGER & TERESA REV TRUST | 1/4 section #: |
1121 |
|
| Owner Name 3: | Parent Acct: |
1121-16-867-3760 |
||
| Billing Address: | 7901 S TRIPLE X RD | Tax District: |
|
|
| City, State, Zip | CHOCTAW, OK 73020 | School System: |
McLoud #1 |
|
|
Country: (If noted) |
Land Size: |
11.7300 Acres |
||
|
Land Value: 95,013 |
|
|||
|
Sect 31-T11N-R1E Qtr NE |
POTTAWATOMIE TOWNSHIP
Block
000
Lot
000
|
|||
| Full Legal Description: POTTAWATOMIE TOWNSHIP PT NE4 SEC 31 11N 1E BEG 1123.62FT S OF NE/C NE4 TH S451.71FT W65FT S232.05FT NWLY458.05FT NWLY397.49FT NWLY166FT NELY260.29FT SELY167.97FT NELY268.22FT NELY633.31FT TO BEG CONT 11.73ACRS MORE OR LESS SUBJ TO ESMTS OF RECORD |
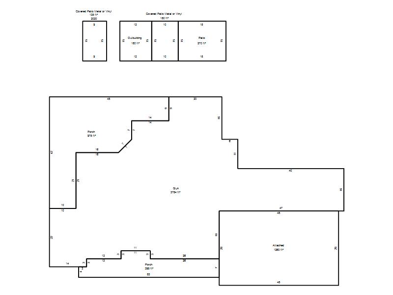
| Photo & Sketch (if available) | Comp Sales (ordered by relevancy) |
|
||||||||||||||||||
|
||||||||||||||||||||
| Value History (*The County Treasurer 405-713-1300 posts & collects actual tax amounts. Contact information HERE) | |||||||||||||
|---|---|---|---|---|---|---|---|---|---|---|---|---|---|
| Year | Market Value | Taxable Mkt Value | Gross Assessed | Exemption | Net Assessed | Millage | Est. Tax | Tax Savings | |||||
|
2025 |
747,000 |
592,386 |
65,161 |
1,000 |
64,161 |
107.58 |
$6,903 |
$1,937 |
|||||
|
2024 |
765,500 |
575,133 |
63,264 |
1,000 |
62,264 |
108.01 |
$6,725 |
$2,370 |
|||||
|
2023 |
735,500 |
558,382 |
61,421 |
1,000 |
60,421 |
106.94 |
$6,462 |
$2,190 |
|||||
|
2022 |
591,000 |
542,119 |
59,632 |
1,000 |
58,632 |
108.95 |
$6,388 |
$695 |
|||||
|
2021 |
560,500 |
526,330 |
57,896 |
1,000 |
56,896 |
135.78 |
$7,725 |
$646 |
|||||
| Property Account Status/Adjustments/Exemptions | ||
|---|---|---|
| Account # | Exemption Description | Amount |
|
R168673765 |
Homestead |
1,000 |
|
R168673765 |
3% Cap Homestead |
0 |
| Property Deed Transaction History (Recorded in the County Clerk's Office) | |||||||
|---|---|---|---|---|---|---|---|
| Date | Type | Book | Page | Price | Grantor | Grantee | |
|
7/6/2022 |
|
Deeds |
$0 |
THOMAS RODGER D & TERESA G |
THOMAS RODGER DALE & TERESA GAIL TRS |
||
|
8/15/2013 |
|
Deeds |
$0 |
EASLEY CRYSTAL |
ROPER DONNIE JOE |
||
|
8/15/2013 |
|
Deeds |
$126,500 |
ROPER DONNIE JOE & TREASA KAY |
THOMAS RODGER D & TERESA G |
||
|
5/15/2012 |
|
Hmstd Off & |
$0 |
ROPER JASPER TRS ROPER FAMILY REV TRUST |
ROPER DONNIE JOE EASLEY CRYSTAL |
||
| Last Mailed Notice of Value (N.O.V.) Information/History | ||||||||
|---|---|---|---|---|---|---|---|---|
| Year | Date | Market Value | Taxable Market Value | Gross Assessed | Exemption | Net Assessed | ||
|
2026 |
02/06/2026 |
781,500 |
610,157 |
67,116 |
1,000 |
66,116 |
||
|
2025 |
01/31/2025 |
747,000 |
592,386 |
65,161 |
1,000 |
64,161 |
||
|
2024 |
01/22/2024 |
765,500 |
575,133 |
63,264 |
1,000 |
62,264 |
||
|
2023 |
01/23/2023 |
735,500 |
558,382 |
61,421 |
1,000 |
60,421 |
||
|
2022 |
02/22/2022 |
591,000 |
542,119 |
59,632 |
1,000 |
58,632 |
||
| Property Building Permit History | ||||||
|---|---|---|---|---|---|---|
| Issued | Permit # | Provided by | Bldg # | Description | Est Construction Cost | Status |
|
10/6/2016 |
10488093 |
OKLAHOMA CITY |
1 |
Main Dwellin |
253,200 |
Inactive |
|
7/18/2014 |
10464525 |
OKLAHOMA CITY |
1 |
Barn |
30,000 |
Inactive |
| Click button on building number to access detailed information: | ||||||
|---|---|---|---|---|---|---|
| Bldg # | Vacant/Improved Land | Bldg Description | Year Built | SqFt | # Stories | |
|
1 |
Improved |
Ranch 1 Story |
2017 |
3,784 |
1 Stories |
|