|
|
|
| Larry Stein Oklahoma County Assessor (405) 713-1200 - Public Access System |
|
|
|
|
|
|
| Real Property Display - Screen Produced 3/14/2026 8:25:55 AM | ||||
|---|---|---|---|---|
| Account: R144447500 | Type: Residential | Location: |
18732 SE 74TH ST |
|
| Building Name/Occupant: |
|
OKLAHOMA CITY |
||
| Owner Name 1: | PALMER JOE & LAUREN |
Parcel PIN#: |
1129-14-444-7500 |
|
| Owner Name 2: | 1/4 section #: |
1129 |
||
| Owner Name 3: | Parent Acct: |
|
||
| Billing Address: | 4921 SW 7TH ST | Tax District: |
|
|
| City, State, Zip | OKLAHOMA CITY , OK 73128 | School System: |
McLoud #1 |
|
|
Country: (If noted) |
Land Size: |
4.7700 Acres |
||
|
Land Value: 52,470 |
|
|||
|
Sect 33-T11N-R1E Qtr NE |
UNPLTD PT SEC 33 11N 1E
Block
000
Lot
000
|
|||
| Full Legal Description: UNPLTD PT SEC 33 11N 1E PT NE4 SEC 33 11N 1E W 1/2 OF NW4 OF NE4 OF NE4 EX S30FT |
| No comparable sales report available. | ||||||||||||||||||||||
|
||||||||||||||||||||||
| Value History (*The County Treasurer 405-713-1300 posts & collects actual tax amounts. Contact information HERE) | |||||||||||||
|---|---|---|---|---|---|---|---|---|---|---|---|---|---|
| Year | Market Value | Taxable Mkt Value | Gross Assessed | Exemption | Net Assessed | Millage | Est. Tax | Tax Savings | |||||
|
2025 |
271,579 |
62,651 |
6,891 |
0 |
6,891 |
107.58 |
$741 |
$2,472 |
|||||
|
2024 |
253,602 |
59,668 |
6,562 |
0 |
6,562 |
108.01 |
$709 |
$2,304 |
|||||
|
2023 |
231,300 |
56,827 |
6,250 |
0 |
6,250 |
106.94 |
$668 |
$2,052 |
|||||
|
2022 |
207,144 |
54,121 |
5,952 |
0 |
5,952 |
108.95 |
$649 |
$1,834 |
|||||
|
2021 |
156,432 |
51,544 |
5,668 |
0 |
5,668 |
135.78 |
$770 |
$1,567 |
|||||
| Property Account Status/Adjustments/Exemptions | ||
|---|---|---|
| Account # | Exemption Description | Amount |
|
R144447500 |
5% Capped Account |
0 |
| Property Deed Transaction History (Recorded in the County Clerk's Office) | ||||||||||
|---|---|---|---|---|---|---|---|---|---|---|
| Date | Type | Book | Page | Price | Grantor | Grantee | ||||
|
9/23/2013 |
|
Hmstd Off & |
$0 |
AFFIDAVIT OF SURVIVING JOINT TENANTS |
PALMER JOE & LAUREN |
|||||
|
8/29/2013 |
|
Hmstd Off & |
$0 |
PALMER THOMAS WALTON |
PALMER JOE & LAUREN |
|||||
|
1/11/2007 |
|
Hmstd Off & |
$0 |
PALMER JACK C TRS PALMER GERTRUDE DOROTHY LIVING TRUST |
PALMER THOMAS WALTON |
|||||
|
6/7/2006 |
|
Deeds |
$0 |
PALMER TRUDY D |
PALMER GERTRUDE DOROTHY LIVING TRUST |
|||||
|
3/14/1994 |
|
Historical |
$0 |
PALMER JACK W & TRUDY D |
PALMER TRUDY D |
|||||
| Last Mailed Notice of Value (N.O.V.) Information/History | ||||||||
|---|---|---|---|---|---|---|---|---|
| Year | Date | Market Value | Taxable Market Value | Gross Assessed | Exemption | Net Assessed | ||
|
2026 |
02/06/2026 |
228,091 |
65,783 |
7,235 |
0 |
7,235 |
||
|
2025 |
01/31/2025 |
271,579 |
62,651 |
6,891 |
0 |
6,891 |
||
|
2024 |
01/22/2024 |
253,602 |
59,668 |
6,562 |
0 |
6,562 |
||
|
2023 |
01/23/2023 |
231,300 |
56,827 |
6,250 |
0 |
6,250 |
||
|
2022 |
02/22/2022 |
207,144 |
54,121 |
5,951 |
0 |
5,951 |
||
| Property Building Permit History | |||||||||||
|---|---|---|---|---|---|---|---|---|---|---|---|
| Issued | Permit # | Provided by | Bldg # | Description | Est Construction Cost | Status | |||||
| No Building Permit records returned. | |||||||||||
| Click button on building number to access detailed information: | ||||||
|---|---|---|---|---|---|---|
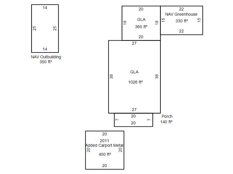
| Bldg # | Vacant/Improved Land | Bldg Description | Year Built | SqFt | # Stories | |
|
1 |
Improved |
Ranch 1 Story |
1900 |
1,386 |
1 Stories |
|
|
2 |
Improved |
Ranch 1 Story |
1950 |
740 |
1 Stories |
|