|
|
|
| Larry Stein Oklahoma County Assessor (405) 713-1200 - Public Access System |
|
|
|
|
|
|
| Real Property Display - Screen Produced 3/14/2026 8:25:29 AM | ||||
|---|---|---|---|---|
| Account: R144447555 | Type: Residential | Location: |
7805 S LUTHER RD |
|
| Building Name/Occupant: |
|
OKLAHOMA CITY |
||
| Owner Name 1: | NUNEZ EDUARDO |
Parcel PIN#: |
1129-14-444-7555 |
|
| Owner Name 2: | 1/4 section #: |
1129 |
||
| Owner Name 3: | Parent Acct: |
|
||
| Billing Address: | 7805 S LUTHER RD | Tax District: |
|
|
| City, State, Zip | NEWALLA, OK 74857 | School System: |
McLoud #1 |
|
|
Country: (If noted) |
Land Size: |
5.0200 Acres |
||
|
Land Value: 55,220 |
|
|||
|
Sect 33-T11N-R1E Qtr NE |
UNPLTD PT SEC 33 11N 1E
Block
000
Lot
000
|
|||
| Full Legal Description: UNPLTD PT SEC 33 11N 1E 000 000 PT NE4 SEC 33 11N 1E S/2 OF SE4 NE4 NE4 |
| No comparable sales report available. | ||||||||||||||||||||||
|
||||||||||||||||||||||
| Value History (*The County Treasurer 405-713-1300 posts & collects actual tax amounts. Contact information HERE) | |||||||||||||
|---|---|---|---|---|---|---|---|---|---|---|---|---|---|
| Year | Market Value | Taxable Mkt Value | Gross Assessed | Exemption | Net Assessed | Millage | Est. Tax | Tax Savings | |||||
|
2025 |
84,258 |
84,044 |
9,244 |
0 |
9,244 |
107.58 |
$995 |
$3 |
|||||
|
2024 |
86,007 |
80,042 |
8,804 |
0 |
8,804 |
108.01 |
$951 |
$71 |
|||||
|
2023 |
87,758 |
76,231 |
8,385 |
0 |
8,385 |
106.94 |
$897 |
$136 |
|||||
|
2022 |
72,601 |
72,601 |
7,986 |
0 |
7,986 |
108.95 |
$870 |
$0 |
|||||
|
2021 |
47,247 |
47,247 |
5,197 |
0 |
5,197 |
135.78 |
$706 |
$0 |
|||||
| Property Account Status/Adjustments/Exemptions | ||
|---|---|---|
| Account # | Exemption Description | Amount |
|
R144447555 |
5% Capped Account |
0 |
| Property Deed Transaction History (Recorded in the County Clerk's Office) | ||||||||||
|---|---|---|---|---|---|---|---|---|---|---|
| Date | Type | Book | Page | Price | Grantor | Grantee | ||||
|
7/20/2018 |
|
Deeds |
$0 |
NICHOLSON TYLER J & CHELSEA |
NICHOLSON TYLER J |
|||||
|
7/20/2018 |
|
Deeds |
$100,500 |
NICHOLSON TYLER J |
NUNEZ EDUARDO |
|||||
|
5/14/2018 |
|
Deeds |
$0 |
NICHOLSON TYLER & CHELSEA |
NICHOLSON TYLER J |
|||||
|
7/15/2013 |
|
Deeds |
$45,000 |
HUEY DONNA KAY REVOCABLE TRUST |
NICHOLSON TYLER & CHELSEA |
|||||
|
7/9/2013 |
|
Deeds |
$0 |
JOURNAL ENTRY OF JUDGMENT NUNC PRO TUNC |
HUEY DONNA KAY REVOCABLE TRUST |
|||||
| Last Mailed Notice of Value (N.O.V.) Information/History | ||||||||
|---|---|---|---|---|---|---|---|---|
| Year | Date | Market Value | Taxable Market Value | Gross Assessed | Exemption | Net Assessed | ||
|
2025 |
01/31/2025 |
84,258 |
84,044 |
9,244 |
0 |
9,244 |
||
|
2024 |
01/22/2024 |
86,007 |
80,042 |
8,804 |
0 |
8,804 |
||
|
2023 |
01/23/2023 |
87,758 |
76,231 |
8,385 |
0 |
8,385 |
||
|
2022 |
02/22/2022 |
72,601 |
72,601 |
7,986 |
0 |
7,986 |
||
|
2019 |
02/26/2019 |
47,247 |
47,247 |
5,197 |
0 |
5,197 |
||
| Property Building Permit History | ||||||
|---|---|---|---|---|---|---|
| Issued | Permit # | Provided by | Bldg # | Description | Est Construction Cost | Status |
|
3/26/2018 |
|
|
1 |
Main Dwellin |
200,000 |
Inactive |
|
11/26/2002 |
10239803 |
OKLAHOMA CITY |
1 |
Burn - Trip |
20,000 |
Inactive |
| Click button on building number to access detailed information: | ||||||
|---|---|---|---|---|---|---|
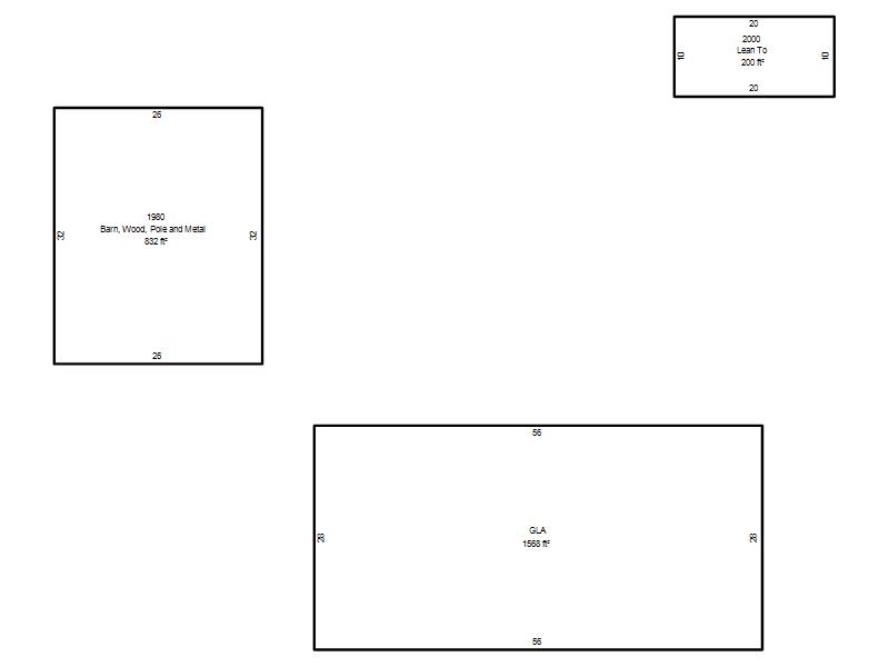
| Bldg # | Vacant/Improved Land | Bldg Description | Year Built | SqFt | # Stories | |
|
1 |
Improved |
Double Wide |
2004 |
1,568 |
1 Stories |
|