|
|
|
| Larry Stein Oklahoma County Assessor (405) 713-1200 - Public Access System |
|
|
|
|
|
|
| Real Property Display - Screen Produced 3/14/2026 8:25:29 AM | ||||
|---|---|---|---|---|
| Account: R144448100 | Type: Residential | Location: |
18600 DAWN RD |
|
| Building Name/Occupant: |
|
OKLAHOMA CITY |
||
| Owner Name 1: | LAMBERT BOBBY W |
Parcel PIN#: |
1130-14-444-8100 |
|
| Owner Name 2: | LAMBERT PAULA | 1/4 section #: |
1130 |
|
| Owner Name 3: | Parent Acct: |
|
||
| Billing Address: | 18600 DAWN RD | Tax District: |
|
|
| City, State, Zip | NEWALLA, OK 74857 | School System: |
McLoud #1 |
|
|
Country: (If noted) |
UNITED STATES |
Land Size: |
3.3600 Acres |
|
|
Land Value: 36,960 |
|
|||
|
Sect 33-T11N-R1E Qtr SE |
UNPLTD PT SEC 33 11N 1E
Block
000
Lot
000
|
|||
| Full Legal Description: UNPLTD PT SEC 33 11N 1E 000 000 PT SE4 SEC 33 11N 1E BEG 1979.99FT N & 2276.6FT W OF SE/C SE4 TH W350.19FT S418.71FT E350.19FT N418.71FT TO BEG AKA PT TRS 21 & 22 SUNRISE ESTATES UNREC SUBJ TO ESMTS OF RECORD |
| No comparable sales report available. | ||||||||||||||||||||||
|
||||||||||||||||||||||
| Value History (*The County Treasurer 405-713-1300 posts & collects actual tax amounts. Contact information HERE) | |||||||||||||
|---|---|---|---|---|---|---|---|---|---|---|---|---|---|
| Year | Market Value | Taxable Mkt Value | Gross Assessed | Exemption | Net Assessed | Millage | Est. Tax | Tax Savings | |||||
|
2025 |
584,393 |
349,381 |
38,431 |
1,000 |
37,431 |
107.58 |
$4,027 |
$2,889 |
|||||
|
2024 |
545,526 |
339,205 |
37,311 |
1,000 |
36,311 |
108.01 |
$3,922 |
$2,559 |
|||||
|
2023 |
495,088 |
329,326 |
36,225 |
1,000 |
35,225 |
106.94 |
$3,767 |
$2,057 |
|||||
|
2022 |
505,433 |
319,734 |
35,170 |
1,000 |
34,170 |
108.95 |
$3,723 |
$2,334 |
|||||
|
2021 |
459,556 |
310,422 |
34,145 |
1,000 |
33,145 |
135.78 |
$4,501 |
$2,363 |
|||||
| Property Account Status/Adjustments/Exemptions | ||
|---|---|---|
| Account # | Exemption Description | Amount |
|
R144448100 |
Homestead |
1,000 |
|
R144448100 |
3% Cap Homestead |
0 |
| Property Deed Transaction History (Recorded in the County Clerk's Office) | ||||||||||
|---|---|---|---|---|---|---|---|---|---|---|
| Date | Type | Book | Page | Price | Grantor | Grantee | ||||
|
11/12/2021 |
|
Deeds |
$0 |
LAMBERT BOBBY W & PAULA |
LAMBERT BOBBY W |
|||||
|
11/7/2006 |
|
Deeds |
$0 |
LAMBERT ALTON & MARTHA |
LAMBERT BOBBY W |
|||||
|
4/4/2003 |
|
Deeds |
$130,000 |
FEDERAL NATIONAL MORTGAGE ASSOC ATTN ANN PALEZ |
LAMBERT BOBBY W |
|||||
|
1/6/2003 |
|
Other |
$0 |
SHERIFFS DEED |
FEDERAL NATIONAL MORTGAGE ASSOC ATTN ANN PALEZ |
|||||
|
10/12/1993 |
|
Historical |
$0 |
FINE DANIEL D |
HUDLOW SUSIE |
|||||
| Last Mailed Notice of Value (N.O.V.) Information/History | ||||||||
|---|---|---|---|---|---|---|---|---|
| Year | Date | Market Value | Taxable Market Value | Gross Assessed | Exemption | Net Assessed | ||
|
2026 |
02/06/2026 |
627,773 |
359,862 |
39,583 |
1,000 |
38,583 |
||
|
2025 |
01/31/2025 |
584,393 |
349,381 |
38,431 |
1,000 |
37,431 |
||
|
2024 |
01/22/2024 |
545,526 |
339,205 |
37,311 |
1,000 |
36,311 |
||
|
2023 |
01/23/2023 |
495,088 |
329,326 |
36,225 |
1,000 |
35,225 |
||
|
2022 |
02/22/2022 |
505,433 |
319,734 |
35,169 |
1,000 |
34,169 |
||
| Property Building Permit History | ||||||
|---|---|---|---|---|---|---|
| Issued | Permit # | Provided by | Bldg # | Description | Est Construction Cost | Status |
|
7/1/2021 |
BLDR-2021-01437 |
|
1 |
Remodeled |
10,000 |
Inactive |
|
3/20/2017 |
10494251 |
OKLAHOMA CITY |
1 |
Fire Remodel |
240,000 |
Inactive |
|
1/16/2017 |
10489169 |
OKLAHOMA CITY |
1 |
Burn - Trip |
75,000 |
Inactive |
|
10/2/2009 |
10389462 |
OKLAHOMA CITY |
1 |
Storage Buil |
20,000 |
Inactive |
| Click button on building number to access detailed information: | ||||||
|---|---|---|---|---|---|---|
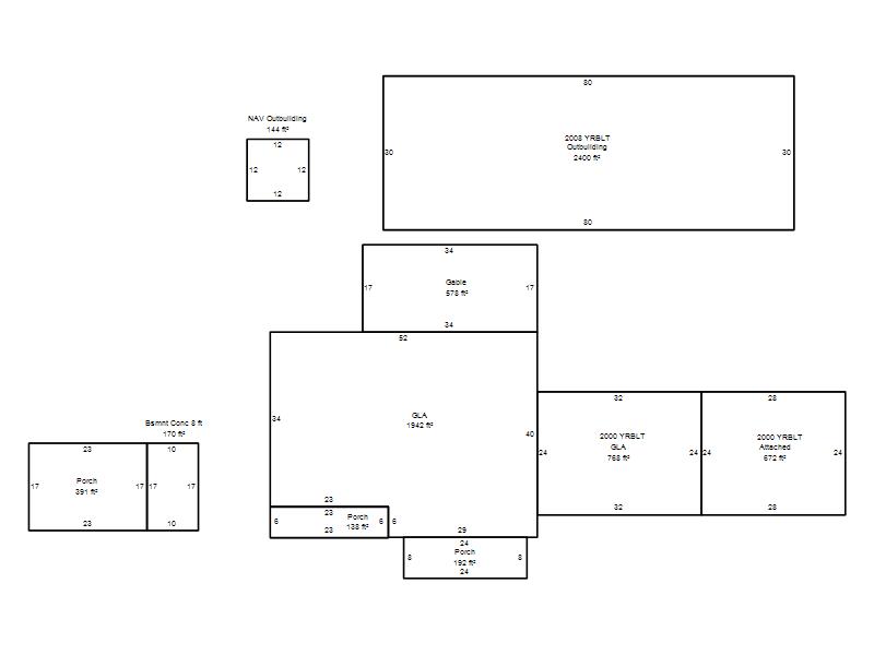
| Bldg # | Vacant/Improved Land | Bldg Description | Year Built | SqFt | # Stories | |
|
1 |
Improved |
1½ Story Fin |
1974 |
2,710 |
1.5 Stories |
|
|
2 |
Improved |
Ranch 1 Story |
1978 |
640 |
1 Stories |
|