|
|
|
| Larry Stein Oklahoma County Assessor (405) 713-1200 - Public Access System |
|
|
|
|
|
|
| Real Property Display - Screen Produced 3/14/2026 8:31:24 AM | ||||
|---|---|---|---|---|
| Account: R144448130 | Type: Residential | Location: |
18827 DAWN RD |
|
| Building Name/Occupant: |
|
OKLAHOMA CITY |
||
| Owner Name 1: | FORMAN DOROTHY A |
Parcel PIN#: |
1130-14-444-8130 |
|
| Owner Name 2: | 1/4 section #: |
1130 |
||
| Owner Name 3: | Parent Acct: |
|
||
| Billing Address: | 18827 DAWN RD | Tax District: |
|
|
| City, State, Zip | NEWALLA, OK 74857-8804 | School System: |
McLoud #1 |
|
|
Country: (If noted) |
Land Size: |
4.7000 Acres |
||
|
Land Value: 51,700 |
|
|||
|
Sect 33-T11N-R1E Qtr SE |
UNPLTD PT SEC 33 11N 1E
Block
000
Lot
000
|
|||
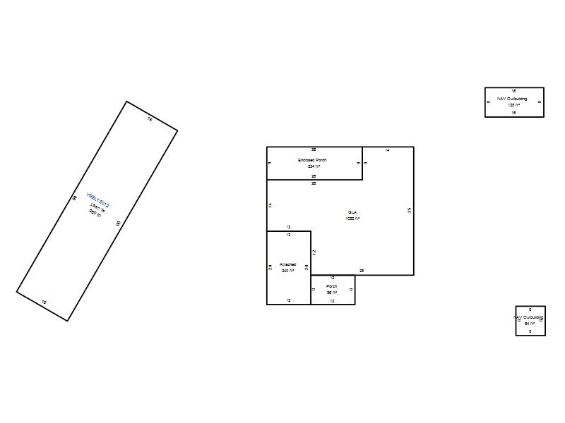
| Full Legal Description: UNPLTD PT SEC 33 11N 1E 000 000 PT SEC 33 11N 1E BEG 1980FT N & 470.94FT W SE/C OF SE4 TH W430FT N506.84FT E430FT S506.53FT TO BEG CONT 5ACRS AKA TR 5 SUNSHINE ESTATES UNREC LESS S30FT FOR ROAD |
| Photo & Sketch (if available) | Comp Sales (ordered by relevancy) |
|
||||||||||||||||||
|
||||||||||||||||||||
| Value History (*The County Treasurer 405-713-1300 posts & collects actual tax amounts. Contact information HERE) | |||||||||||||
|---|---|---|---|---|---|---|---|---|---|---|---|---|---|
| Year | Market Value | Taxable Mkt Value | Gross Assessed | Exemption | Net Assessed | Millage | Est. Tax | Tax Savings | |||||
|
2025 |
223,500 |
164,617 |
18,107 |
0 |
18,107 |
107.58 |
$1,948 |
$697 |
|||||
|
2024 |
209,500 |
156,779 |
17,245 |
0 |
17,245 |
108.01 |
$1,863 |
$626 |
|||||
|
2023 |
194,500 |
149,314 |
16,424 |
0 |
16,424 |
106.94 |
$1,756 |
$532 |
|||||
|
2022 |
174,500 |
142,204 |
15,641 |
0 |
15,641 |
108.95 |
$1,704 |
$387 |
|||||
|
2021 |
148,500 |
135,433 |
14,897 |
0 |
14,897 |
135.78 |
$2,023 |
$195 |
|||||
| Property Account Status/Adjustments/Exemptions | ||
|---|---|---|
| Account # | Exemption Description | Amount |
|
R144448130 |
5% Capped Account |
0 |
| Property Deed Transaction History (Recorded in the County Clerk's Office) | |||||||
|---|---|---|---|---|---|---|---|
| Date | Type | Book | Page | Price | Grantor | Grantee | |
|
11/4/2010 |
|
Deeds |
$96,000 |
SAXON HEATHER SAXON DUNCAN |
FORMAN DOROTHY A |
||
|
3/13/2007 |
|
Deeds |
$87,000 |
EDWARDS CHRISTOPHER W & STEPHANIA |
SAXON HEATHER SAXON DUNCAN |
||
|
9/23/1994 |
|
Historical |
$43,000 |
SWEENEY NORMAN D |
EDWARDS CHRISTOPHER W |
||
|
5/1/1983 |
|
Historical |
$0 |
|
SWEENEY NORMAN D |
||
| Last Mailed Notice of Value (N.O.V.) Information/History | ||||||||
|---|---|---|---|---|---|---|---|---|
| Year | Date | Market Value | Taxable Market Value | Gross Assessed | Exemption | Net Assessed | ||
|
2026 |
02/06/2026 |
226,500 |
172,847 |
19,012 |
0 |
19,012 |
||
|
2025 |
01/31/2025 |
223,500 |
164,617 |
18,107 |
0 |
18,107 |
||
|
2024 |
01/22/2024 |
209,500 |
156,779 |
17,245 |
0 |
17,245 |
||
|
2023 |
01/23/2023 |
194,500 |
149,314 |
16,424 |
0 |
16,424 |
||
|
2022 |
02/22/2022 |
174,500 |
142,204 |
15,641 |
0 |
15,641 |
||
| Property Building Permit History | |||||||||||
|---|---|---|---|---|---|---|---|---|---|---|---|
| Issued | Permit # | Provided by | Bldg # | Description | Est Construction Cost | Status | |||||
| No Building Permit records returned. | |||||||||||
| Click button on building number to access detailed information: | ||||||
|---|---|---|---|---|---|---|
| Bldg # | Vacant/Improved Land | Bldg Description | Year Built | SqFt | # Stories | |
|
1 |
Improved |
Ranch 1 Story |
1978 |
1,022 |
1 Stories |
|