|
|
|
| Larry Stein Oklahoma County Assessor (405) 713-1200 - Public Access System |
|
|
|
|
|
|
| Real Property Display - Screen Produced 3/14/2026 8:25:29 AM | ||||
|---|---|---|---|---|
| Account: R144448030 | Type: Residential | Location: |
8500 S PEEBLY RD |
|
| Building Name/Occupant: |
|
OKLAHOMA CITY |
||
| Owner Name 1: | HUFF JIMMY LEE & MARY ANN |
Parcel PIN#: |
1131-14-444-8030 |
|
| Owner Name 2: | HUFF JIMMY LEE II | 1/4 section #: |
1131 |
|
| Owner Name 3: | Parent Acct: |
|
||
| Billing Address: | 8500 S PEEBLY RD | Tax District: |
|
|
| City, State, Zip | NEWALLA, OK 74857 | School System: |
McLoud #1 |
|
|
Country: (If noted) |
Land Size: |
10.1100 Acres |
||
|
Land Value: 88,968 |
|
|||
|
Sect 33-T11N-R1E Qtr SW |
UNPLTD PT SEC 33 11N 1E
Block
000
Lot
000
|
|||
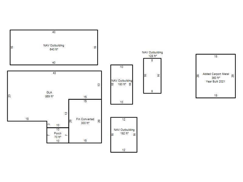
| Full Legal Description: UNPLTD PT SEC 33 11N 1E 000 000 PT SW4 SEC 33 11N 1E BEG 840.60FT S & 85FT E OF NW/C SW4 THE485FT S370.40FT W460.13FT N70.23FT NWLY 301.04FT TO BEG & BEG 1211FT S & 100FT E OF NW/C SW4 TH E460.18FT S501.93FT W569.88FT N172.70FT E33FT NE309.72FT N29.77FT TO BEG |
| Photo & Sketch (if available) | Comp Sales (ordered by relevancy) |
|
||||||||||||||||||
|
||||||||||||||||||||
| Value History (*The County Treasurer 405-713-1300 posts & collects actual tax amounts. Contact information HERE) | |||||||||||||
|---|---|---|---|---|---|---|---|---|---|---|---|---|---|
| Year | Market Value | Taxable Mkt Value | Gross Assessed | Exemption | Net Assessed | Millage | Est. Tax | Tax Savings | |||||
|
2025 |
210,500 |
152,356 |
16,759 |
1,000 |
15,759 |
107.58 |
$1,695 |
$796 |
|||||
|
2024 |
204,000 |
147,919 |
16,270 |
1,000 |
15,270 |
108.01 |
$1,649 |
$774 |
|||||
|
2023 |
189,000 |
143,611 |
15,796 |
1,000 |
14,796 |
106.94 |
$1,582 |
$641 |
|||||
|
2022 |
166,000 |
135,060 |
14,855 |
1,000 |
13,855 |
108.95 |
$1,510 |
$480 |
|||||
|
2021 |
149,000 |
131,127 |
14,423 |
1,000 |
13,423 |
135.78 |
$1,823 |
$403 |
|||||
| Property Account Status/Adjustments/Exemptions | ||
|---|---|---|
| Account # | Exemption Description | Amount |
|
R144448030 |
3% Cap Homestead |
0 |
|
R144448030 |
Homestead |
1,000 |
| Property Deed Transaction History (Recorded in the County Clerk's Office) | ||||||||||
|---|---|---|---|---|---|---|---|---|---|---|
| Date | Type | Book | Page | Price | Grantor | Grantee | ||||
|
1/26/2019 |
|
Deeds |
$0 |
HUFF JIMMY LEE & MARY ANN |
HUFF JIMMY LEE & MARY ANN |
|||||
|
9/27/2001 |
|
Deeds |
$77,000 |
LAVALLE JASON S & ROBIN A |
HUFF JIMMY LEE & MARY ANN |
|||||
|
2/8/1998 |
|
Deeds |
$0 |
ERICKSON WILLETTA |
LAVALLE JASON S & ROBIN A |
|||||
|
3/4/1996 |
|
Historical |
$36,500 |
RICE HANNAH S |
LAVALLE JASON S & ROBIN A |
|||||
|
10/20/1995 |
|
Historical |
$0 |
RICE HANNAH S |
RICE HANNAH S |
|||||
| Last Mailed Notice of Value (N.O.V.) Information/History | ||||||||
|---|---|---|---|---|---|---|---|---|
| Year | Date | Market Value | Taxable Market Value | Gross Assessed | Exemption | Net Assessed | ||
|
2026 |
02/06/2026 |
213,500 |
156,926 |
17,261 |
1,000 |
16,261 |
||
|
2025 |
01/31/2025 |
210,500 |
152,356 |
16,759 |
1,000 |
15,759 |
||
|
2024 |
01/22/2024 |
204,000 |
147,919 |
16,270 |
1,000 |
15,270 |
||
|
2023 |
03/02/2023 |
189,000 |
143,611 |
15,796 |
1,000 |
14,796 |
||
|
2022 |
02/22/2022 |
166,000 |
135,060 |
14,855 |
1,000 |
13,855 |
||
| Property Building Permit History | |||||||||||
|---|---|---|---|---|---|---|---|---|---|---|---|
| Issued | Permit # | Provided by | Bldg # | Description | Est Construction Cost | Status | |||||
| No Building Permit records returned. | |||||||||||
| Click button on building number to access detailed information: | ||||||
|---|---|---|---|---|---|---|
| Bldg # | Vacant/Improved Land | Bldg Description | Year Built | SqFt | # Stories | |
|
1 |
Improved |
Ranch 1 Story |
1957 |
869 |
1 Stories |
|