|
|
|
| Larry Stein Oklahoma County Assessor (405) 713-1200 - Public Access System |
|
|
|
|
|
|
| Real Property Display - Screen Produced 3/13/2026 5:16:13 AM | ||||
|---|---|---|---|---|
| Account: R194785440 | Type: Residential | Location: |
1181 S INDIAN MERIDIAN RD |
|
| Building Name/Occupant: |
|
CHOCTAW |
||
| Owner Name 1: | BROWN KELLY REENAE & GENE C JR |
Parcel PIN#: |
1202-19-478-5440 |
|
| Owner Name 2: | 1/4 section #: |
1202 |
||
| Owner Name 3: | Parent Acct: |
|
||
| Billing Address: | 1181 S INDIAN MERIDIAN | Tax District: |
|
|
| City, State, Zip | CHOCTAW, OK 73020-7037 | School System: |
Choctaw #4 |
|
|
Country: (If noted) |
Land Size: |
5.0000 Acres |
||
|
Land Value: 75,484 |
|
|||
|
Sect 1-T11N-R1W Qtr SE |
UNPLTD PT SEC 01 11N 1W
Block
000
Lot
000
|
|||
| Full Legal Description: UNPLTD PT SEC 01 11N 1W 000 000 PT SE4 SEC 1 11N 1W BEG 1302.5FT S OF NE/C OF SE4 TH W726FTN300FT W647.5FT S316.88FT E1373.5FT N17.5FT TO BEG OR PT TR4 BILLINGS WOODLAND HILL UNREC |
| Photo & Sketch (if available) | Comp Sales (ordered by relevancy) |
|
||||||||||||||||||
|
||||||||||||||||||||
| Value History (*The County Treasurer 405-713-1300 posts & collects actual tax amounts. Contact information HERE) | |||||||||||||
|---|---|---|---|---|---|---|---|---|---|---|---|---|---|
| Year | Market Value | Taxable Mkt Value | Gross Assessed | Exemption | Net Assessed | Millage | Est. Tax | Tax Savings | |||||
|
2025 |
357,000 |
262,421 |
28,865 |
0 |
28,865 |
117.21 |
$3,383 |
$1,219 |
|||||
|
2024 |
348,500 |
249,925 |
27,491 |
0 |
27,491 |
116.35 |
$3,199 |
$1,262 |
|||||
|
2023 |
314,500 |
238,024 |
26,181 |
0 |
26,181 |
118.06 |
$3,091 |
$993 |
|||||
|
2022 |
278,000 |
226,690 |
24,935 |
0 |
24,935 |
116.14 |
$2,896 |
$656 |
|||||
|
2021 |
240,000 |
215,896 |
23,747 |
0 |
23,747 |
116.17 |
$2,759 |
$308 |
|||||
| Property Account Status/Adjustments/Exemptions | ||
|---|---|---|
| Account # | Exemption Description | Amount |
|
R194785440 |
5% Capped Account |
0 |
| Property Deed Transaction History (Recorded in the County Clerk's Office) | |||||||
|---|---|---|---|---|---|---|---|
| Date | Type | Book | Page | Price | Grantor | Grantee | |
|
7/29/2004 |
|
Deeds |
$147,000 |
CANTRELL JEFFREY I & TAMMY L |
BROWN KELLY REENAE & GENE C JR |
||
|
12/11/2000 |
|
Deeds |
$89,000 |
GRIFFIN O W & MARY E |
CANTRELL JEFFREY I & TAMMY L |
||
|
11/1/1976 |
|
Historical |
$0 |
|
GRIFFIN O W & MARY E |
||
| Last Mailed Notice of Value (N.O.V.) Information/History | ||||||||
|---|---|---|---|---|---|---|---|---|
| Year | Date | Market Value | Taxable Market Value | Gross Assessed | Exemption | Net Assessed | ||
|
2026 |
02/06/2026 |
358,000 |
275,542 |
30,309 |
0 |
30,309 |
||
|
2025 |
01/31/2025 |
357,000 |
262,421 |
28,865 |
0 |
28,865 |
||
|
2024 |
01/22/2024 |
348,500 |
249,925 |
27,491 |
0 |
27,491 |
||
|
2023 |
01/23/2023 |
314,500 |
238,024 |
26,181 |
0 |
26,181 |
||
|
2022 |
02/22/2022 |
278,000 |
226,690 |
24,934 |
0 |
24,934 |
||
| Property Building Permit History | |||||||||||
|---|---|---|---|---|---|---|---|---|---|---|---|
| Issued | Permit # | Provided by | Bldg # | Description | Est Construction Cost | Status | |||||
| No Building Permit records returned. | |||||||||||
| Click button on building number to access detailed information: | ||||||
|---|---|---|---|---|---|---|
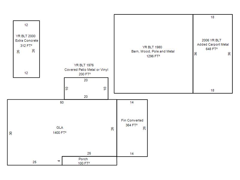
| Bldg # | Vacant/Improved Land | Bldg Description | Year Built | SqFt | # Stories | |
|
1 |
Improved |
Ranch 1 Story |
1976 |
1,400 |
1 Stories |
|