|
|
|
| Larry Stein Oklahoma County Assessor (405) 713-1200 - Public Access System |
|
|
|
|
|
|
| Real Property Display - Screen Produced 3/16/2026 2:17:39 PM | ||||
|---|---|---|---|---|
| Account: R091471315 | Type: Residential | Location: |
320 SW 23RD ST |
|
| Building Name/Occupant: |
|
OKLAHOMA CITY |
||
| Owner Name 1: | LEMSTROM ERIC D |
Parcel PIN#: |
1634-09-147-1315 |
|
| Owner Name 2: | C/O PROP MNGT | 1/4 section #: |
1634 |
|
| Owner Name 3: | Parent Acct: |
|
||
| Billing Address: | 1411 LINWOOD BLVD | Tax District: |
|
|
| City, State, Zip | OKLAHOMA CITY, OK 73106-5021 | School System: |
Oklahoma City #89 |
|
|
Country: (If noted) |
Land Size: |
0.1189 Acres |
||
|
Land Value: 9,583 |
|
|||
|
Sect 9-T11N-R3W Qtr SE |
CAPITOL HILL ADD
Block
007
Lot
000
|
|||
| Full Legal Description: CAPITOL HILL ADD 007 000 LOT 5 & E 1/2 LOT 6 |
| Photo & Sketch (if available) | Comp Sales (ordered by relevancy) |
|
||||||||||||||||||
|
||||||||||||||||||||
| Value History (*The County Treasurer 405-713-1300 posts & collects actual tax amounts. Contact information HERE) | |||||||||||||
|---|---|---|---|---|---|---|---|---|---|---|---|---|---|
| Year | Market Value | Taxable Mkt Value | Gross Assessed | Exemption | Net Assessed | Millage | Est. Tax | Tax Savings | |||||
|
2025 |
69,500 |
30,537 |
3,358 |
0 |
3,358 |
119.02 |
$400 |
$510 |
|||||
|
2024 |
61,000 |
29,083 |
3,198 |
0 |
3,198 |
119.70 |
$383 |
$420 |
|||||
|
2023 |
50,000 |
27,699 |
3,046 |
0 |
3,046 |
118.33 |
$361 |
$290 |
|||||
|
2022 |
43,000 |
26,380 |
2,901 |
0 |
2,901 |
112.69 |
$327 |
$206 |
|||||
|
2021 |
36,000 |
25,124 |
2,763 |
0 |
2,763 |
112.29 |
$310 |
$134 |
|||||
| Property Account Status/Adjustments/Exemptions | ||
|---|---|---|
| Account # | Exemption Description | Amount |
|
R091471315 |
5% Capped Account |
0 |
| Property Deed Transaction History (Recorded in the County Clerk's Office) | ||||||||||
|---|---|---|---|---|---|---|---|---|---|---|
| Date | Type | Book | Page | Price | Grantor | Grantee | ||||
|
7/8/1994 |
|
Historical |
$10,500 |
LEONARD STACY LYNN |
LEMSTROM ERIC D |
|||||
|
12/10/1993 |
|
Historical |
$0 |
LEONARD RICHARD CEDRIC JR |
LEONARD STACY LYNN |
|||||
|
2/20/1990 |
|
Historical |
$0 |
LEONARD RICHARD C & GENEVA L |
LEONARD RICHARD CEDRIC JR |
|||||
|
1/30/1989 |
|
Historical |
$9,000 |
SECRETARY OF HOUSING |
LEONARD RICHARD C & GENEVA L |
|||||
|
10/14/1988 |
|
Historical |
$0 |
GARLAND JEFFREY A |
SECRETARY OF HOUSING |
|||||
| Last Mailed Notice of Value (N.O.V.) Information/History | ||||||||
|---|---|---|---|---|---|---|---|---|
| Year | Date | Market Value | Taxable Market Value | Gross Assessed | Exemption | Net Assessed | ||
|
2026 |
02/06/2026 |
76,000 |
32,063 |
3,526 |
0 |
3,526 |
||
|
2025 |
01/31/2025 |
69,500 |
30,537 |
3,358 |
0 |
3,358 |
||
|
2024 |
01/22/2024 |
61,000 |
29,083 |
3,198 |
0 |
3,198 |
||
|
2023 |
01/23/2023 |
50,000 |
27,699 |
3,046 |
0 |
3,046 |
||
|
2022 |
02/22/2022 |
43,000 |
26,380 |
2,901 |
0 |
2,901 |
||
| Property Building Permit History | ||||||
|---|---|---|---|---|---|---|
| Issued | Permit # | Provided by | Bldg # | Description | Est Construction Cost | Status |
|
8/20/2010 |
10409390 |
OKLAHOMA CITY |
1 |
Demolish |
0 |
Inactive |
| Click button on building number to access detailed information: | ||||||
|---|---|---|---|---|---|---|
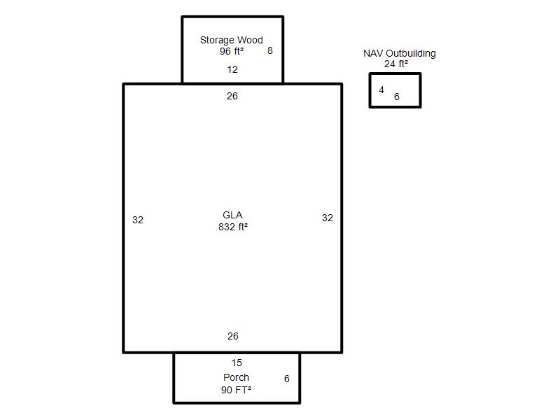
| Bldg # | Vacant/Improved Land | Bldg Description | Year Built | SqFt | # Stories | |
|
1 |
Improved |
Ranch 1 Story |
1928 |
832 |
1 Stories |
|