|
|
|
| Larry Stein Oklahoma County Assessor (405) 713-1200 - Public Access System |
|
|
|
|
|
|
| Real Property Display - Screen Produced 3/16/2026 2:17:39 PM | ||||
|---|---|---|---|---|
| Account: R091471335 | Type: Residential | Location: |
326 SW 23RD ST |
|
| Building Name/Occupant: |
|
OKLAHOMA CITY |
||
| Owner Name 1: | RIVERA MERCEDES |
Parcel PIN#: |
1634-09-147-1335 |
|
| Owner Name 2: | RIVERA JESUS | 1/4 section #: |
1634 |
|
| Owner Name 3: | Parent Acct: |
|
||
| Billing Address: | 2512 SW 33RD ST | Tax District: |
|
|
| City, State, Zip | OKLAHOMA CITY, OK 73119 | School System: |
Oklahoma City #89 |
|
|
Country: (If noted) |
Land Size: |
0.1607 Acres |
||
|
Land Value: 12,950 |
|
|||
|
Sect 9-T11N-R3W Qtr SE |
CAPITOL HILL ADD
Block
007
Lot
000
|
|||
| Full Legal Description: CAPITOL HILL ADD 007 000 LOTS 8 & 9 |
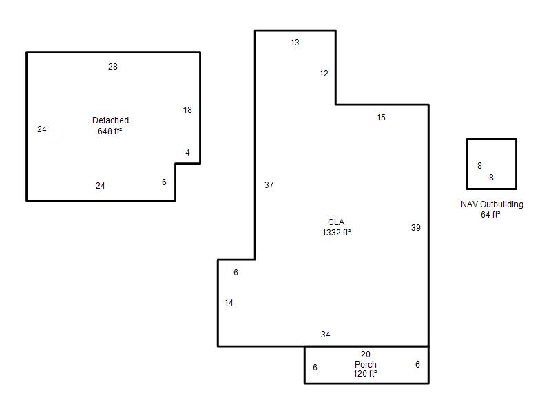
| Photo & Sketch (if available) | Comp Sales (ordered by relevancy) |
|
||||||||||||||||||
|
||||||||||||||||||||
| Value History (*The County Treasurer 405-713-1300 posts & collects actual tax amounts. Contact information HERE) | |||||||||||||
|---|---|---|---|---|---|---|---|---|---|---|---|---|---|
| Year | Market Value | Taxable Mkt Value | Gross Assessed | Exemption | Net Assessed | Millage | Est. Tax | Tax Savings | |||||
|
2025 |
96,000 |
59,346 |
6,527 |
0 |
6,527 |
119.02 |
$777 |
$480 |
|||||
|
2024 |
84,000 |
56,520 |
6,217 |
0 |
6,217 |
119.70 |
$744 |
$362 |
|||||
|
2023 |
70,000 |
53,829 |
5,920 |
0 |
5,920 |
118.33 |
$701 |
$210 |
|||||
|
2022 |
62,000 |
51,266 |
5,638 |
0 |
5,638 |
112.69 |
$635 |
$133 |
|||||
|
2021 |
51,000 |
48,825 |
5,370 |
0 |
5,370 |
112.29 |
$603 |
$27 |
|||||
| Property Account Status/Adjustments/Exemptions | ||
|---|---|---|
| Account # | Exemption Description | Amount |
|
R091471335 |
5% Capped Account |
0 |
| Property Deed Transaction History (Recorded in the County Clerk's Office) | ||||||||||
|---|---|---|---|---|---|---|---|---|---|---|
| Date | Type | Book | Page | Price | Grantor | Grantee | ||||
|
10/25/2019 |
|
Deeds |
$38,500 |
SHAW BRUCE P JR & SHAWNA MELDORA |
RIVERA MERCEDES |
|||||
|
6/24/2010 |
|
Deeds |
$0 |
PUTNAM BRUCE SHAW SHAWNA MELDORA |
SHAW BRUCE P JR & SHAWNA MELDORA |
|||||
|
10/15/2003 |
|
Deeds |
$0 |
HEFFRON TOMMY G & KATHRYN K |
PUTNAM BRUCE SHAW SHAWNA |
|||||
|
10/13/2003 |
|
Deeds |
$0 |
KILGORE JIMMY LEE & WILMA JEAN |
HEFFRON TOMMY G & KATHRYN K |
|||||
|
6/30/2003 |
|
Deeds |
$5,000 |
KILGORE JIMMY LEE KILGORE WILMA JEAN |
PUTNAM BRUCE SHAW SHAWNA MELDORA |
|||||
| Last Mailed Notice of Value (N.O.V.) Information/History | ||||||||
|---|---|---|---|---|---|---|---|---|
| Year | Date | Market Value | Taxable Market Value | Gross Assessed | Exemption | Net Assessed | ||
|
2026 |
02/06/2026 |
109,500 |
62,313 |
6,854 |
0 |
6,854 |
||
|
2025 |
01/31/2025 |
96,000 |
59,346 |
6,527 |
0 |
6,527 |
||
|
2024 |
01/22/2024 |
84,000 |
56,520 |
6,217 |
0 |
6,217 |
||
|
2023 |
01/23/2023 |
70,000 |
53,829 |
5,920 |
0 |
5,920 |
||
|
2022 |
02/22/2022 |
62,000 |
51,266 |
5,638 |
0 |
5,638 |
||
| Property Building Permit History | ||||||
|---|---|---|---|---|---|---|
| Issued | Permit # | Provided by | Bldg # | Description | Est Construction Cost | Status |
|
9/29/1999 |
10199544 |
OKLAHOMA CITY |
1 |
Demolish |
0 |
Inactive |
| Click button on building number to access detailed information: | ||||||
|---|---|---|---|---|---|---|
| Bldg # | Vacant/Improved Land | Bldg Description | Year Built | SqFt | # Stories | |
|
1 |
Improved |
Ranch 1 Story |
1920 |
1,332 |
1 Stories |
|