|
|
|
| Larry Stein Oklahoma County Assessor (405) 713-1200 - Public Access System |
|
|
|
|
|
|
| Real Property Display - Screen Produced 3/13/2026 5:16:22 AM | ||||
|---|---|---|---|---|
| Account: R194785120 | Type: Residential | Location: |
15414 N OAK DR |
|
| Building Name/Occupant: |
|
CHOCTAW |
||
| Owner Name 1: | CAMMACK KRYSTLE |
Parcel PIN#: |
1203-19-478-5120 |
|
| Owner Name 2: | 1/4 section #: |
1203 |
||
| Owner Name 3: | Parent Acct: |
|
||
| Billing Address: | 15414 N OAK DR | Tax District: |
|
|
| City, State, Zip | CHOCTAW, OK 73020-7065 | School System: |
Choctaw #4 |
|
|
Country: (If noted) |
Land Size: |
4.9900 Acres |
||
|
Land Value: 75,415 |
|
|||
|
Sect 1-T11N-R1W Qtr SW |
UNPLTD PT SEC 01 11N 1W
Block
000
Lot
000
|
|||
| Full Legal Description: UNPLTD PT SEC 01 11N 1W 000 000 PT SW4 SEC 1 11N 1W BEING TR 22 BONANZA ACRES # 3 UNREC DESC BEG 1980.5FT E & 1650FT N OF SW/C SW4 TH N330FT E717.84FT S330FT W716.13FT TO BEG CONT 5.4ACRS MORE OR LESS SUBJ TO EASEMENTS OF RECORD |
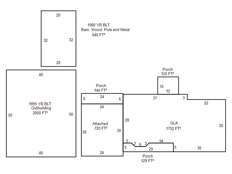
| Photo & Sketch (if available) | Comp Sales (ordered by relevancy) |
|
||||||||||||||||||
|
||||||||||||||||||||
| Value History (*The County Treasurer 405-713-1300 posts & collects actual tax amounts. Contact information HERE) | |||||||||||||
|---|---|---|---|---|---|---|---|---|---|---|---|---|---|
| Year | Market Value | Taxable Mkt Value | Gross Assessed | Exemption | Net Assessed | Millage | Est. Tax | Tax Savings | |||||
|
2025 |
332,000 |
212,754 |
23,402 |
1,000 |
22,402 |
117.21 |
$2,626 |
$1,655 |
|||||
|
2024 |
319,000 |
206,558 |
22,720 |
1,000 |
21,720 |
116.35 |
$2,527 |
$1,555 |
|||||
|
2023 |
296,000 |
200,542 |
22,059 |
1,000 |
21,059 |
118.06 |
$2,486 |
$1,358 |
|||||
|
2022 |
261,000 |
194,701 |
21,416 |
1,000 |
20,416 |
116.14 |
$2,371 |
$963 |
|||||
|
2021 |
228,000 |
189,031 |
20,792 |
1,000 |
19,792 |
116.17 |
$2,299 |
$614 |
|||||
| Property Account Status/Adjustments/Exemptions | ||
|---|---|---|
| Account # | Exemption Description | Amount |
|
R194785120 |
3% Cap Homestead |
0 |
|
R194785120 |
Homestead |
1,000 |
| Property Deed Transaction History (Recorded in the County Clerk's Office) | ||||||||||
|---|---|---|---|---|---|---|---|---|---|---|
| Date | Type | Book | Page | Price | Grantor | Grantee | ||||
|
7/26/2013 |
|
Other |
$0 |
DANIELS MELODY R TRS MEDLEY GARY W LIVING TRUST |
CAMMACK KRYSTAL |
|||||
|
7/26/2013 |
|
Deeds |
$147,500 |
DANIELS MELODYR TRS MEDLEY GARY W LIVING TRUST |
CAMMACK KRYSTLE |
|||||
|
7/26/2013 |
|
Hmstd Off & |
$0 |
DANIELS MELODY R GUARDIAN MEDLEY GARY W |
CAMMACK KRYSTEL |
|||||
|
7/26/2013 |
|
Deeds |
$0 |
DANIELS MELODY GUARDIAN OF MEDLEY GARY W |
CAMMACK KRYSTLE |
|||||
|
7/24/2013 |
|
Hmstd Off & |
$0 |
ORDER CONFIRMING SALE |
DANIELS MELODY R |
|||||
| Last Mailed Notice of Value (N.O.V.) Information/History | ||||||||
|---|---|---|---|---|---|---|---|---|
| Year | Date | Market Value | Taxable Market Value | Gross Assessed | Exemption | Net Assessed | ||
|
2026 |
02/06/2026 |
337,000 |
219,136 |
24,104 |
1,000 |
23,104 |
||
|
2025 |
01/31/2025 |
332,000 |
212,754 |
23,402 |
1,000 |
22,402 |
||
|
2024 |
01/22/2024 |
319,000 |
206,558 |
22,720 |
1,000 |
21,720 |
||
|
2023 |
01/23/2023 |
296,000 |
200,542 |
22,059 |
1,000 |
21,059 |
||
|
2022 |
02/22/2022 |
261,000 |
194,701 |
21,415 |
1,000 |
20,415 |
||
| Property Building Permit History | ||||||
|---|---|---|---|---|---|---|
| Issued | Permit # | Provided by | Bldg # | Description | Est Construction Cost | Status |
|
5/5/2000 |
10262793 |
CHOCTAW |
1 |
Other |
0 |
Inactive |
| Click button on building number to access detailed information: | ||||||
|---|---|---|---|---|---|---|
| Bldg # | Vacant/Improved Land | Bldg Description | Year Built | SqFt | # Stories | |
|
1 |
Improved |
Ranch 1 Story |
1976 |
1,752 |
1 Stories |
|