|
|
|
| Larry Stein Oklahoma County Assessor (405) 713-1200 - Public Access System |
|
|
|
|
|
|
| Real Property Display - Screen Produced 3/20/2026 8:55:48 AM | ||||
|---|---|---|---|---|
| Account: R097070200 | Type: Residential | Location: |
922 SE 22ND ST |
|
| Building Name/Occupant: |
|
OKLAHOMA CITY |
||
| Owner Name 1: | CEDILLOS ORTEGA DIANA |
Parcel PIN#: |
1637-09-707-0200 |
|
| Owner Name 2: | 1/4 section #: |
1637 |
||
| Owner Name 3: | Parent Acct: |
|
||
| Billing Address: | 922 SE 22ND ST | Tax District: |
|
|
| City, State, Zip | OKLAHOMA CITY , OK 73129 | School System: |
Oklahoma City #89 |
|
|
Country: (If noted) |
Land Size: |
0.7500 Acres |
||
|
Land Value: 23,646 |
|
|||
|
Sect 10-T11N-R3W Qtr NE |
PATTERSONS SOUTH HIGHLAND ADD
Block
001
Lot
000
|
|||
| Full Legal Description: PATTERSONS SOUTH HIGHLAND ADD 001 000 LOTS 1 THRU 10 PLUS VAC ALLEY ADJ ON S & E 1/2 VAC KELLEY AVE ADJ LOT 10 ON W |
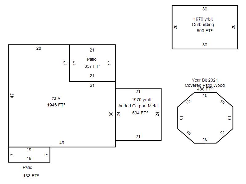
| Photo & Sketch (if available) | Comp Sales (ordered by relevancy) |
|
||||||||||||||||||
|
||||||||||||||||||||
| Value History (*The County Treasurer 405-713-1300 posts & collects actual tax amounts. Contact information HERE) | |||||||||||||
|---|---|---|---|---|---|---|---|---|---|---|---|---|---|
| Year | Market Value | Taxable Mkt Value | Gross Assessed | Exemption | Net Assessed | Millage | Est. Tax | Tax Savings | |||||
|
2025 |
149,500 |
134,400 |
14,784 |
0 |
14,784 |
119.02 |
$1,760 |
$198 |
|||||
|
2024 |
128,000 |
128,000 |
14,080 |
0 |
14,080 |
119.70 |
$1,685 |
$0 |
|||||
|
2023 |
126,000 |
126,000 |
13,860 |
0 |
13,860 |
118.33 |
$1,640 |
$0 |
|||||
|
2022 |
126,000 |
126,000 |
13,860 |
0 |
13,860 |
112.69 |
$1,562 |
$0 |
|||||
|
2021 |
124,500 |
124,500 |
13,695 |
0 |
13,695 |
112.29 |
$1,538 |
$0 |
|||||
| Property Account Status/Adjustments/Exemptions | ||
|---|---|---|
| Account # | Exemption Description | Amount |
|
R097070200 |
5% Capped Account |
0 |
| Property Deed Transaction History (Recorded in the County Clerk's Office) | ||||||||||
|---|---|---|---|---|---|---|---|---|---|---|
| Date | Type | Book | Page | Price | Grantor | Grantee | ||||
|
5/16/2019 |
|
Deeds |
$130,000 |
REYNA BEATRIZ |
CEDILLOS ORTEGA DIANA |
|||||
|
6/7/2017 |
|
Deeds |
$54,500 |
FEDERAL NATIONAL MORTGAGE ASSOCIATION |
REYNA BEATRIZ |
|||||
|
1/24/2017 |
|
Other |
$0 |
HALE JEFF |
FEDERAL NATIONAL MORTGAGE ASSOCIATION |
|||||
|
5/30/2012 |
|
Hmstd Off & |
$0 |
CHAVEDO TEELA M |
HALE JEFF |
|||||
|
6/3/2011 |
|
Deeds |
$0 |
DECREE VACATING PUBLIC WAYS |
CHAVEDO TEELA M |
|||||
| Last Mailed Notice of Value (N.O.V.) Information/History | ||||||||
|---|---|---|---|---|---|---|---|---|
| Year | Date | Market Value | Taxable Market Value | Gross Assessed | Exemption | Net Assessed | ||
|
2026 |
02/06/2026 |
166,500 |
141,120 |
15,523 |
0 |
15,523 |
||
|
2025 |
01/31/2025 |
149,500 |
134,400 |
14,784 |
0 |
14,784 |
||
|
2024 |
01/22/2024 |
128,000 |
128,000 |
14,080 |
0 |
14,080 |
||
|
2022 |
02/22/2022 |
126,000 |
126,000 |
13,860 |
0 |
13,860 |
||
|
2020 |
02/21/2020 |
124,500 |
124,500 |
13,695 |
0 |
13,695 |
||
| Property Building Permit History | ||||||
|---|---|---|---|---|---|---|
| Issued | Permit # | Provided by | Bldg # | Description | Est Construction Cost | Status |
|
8/17/2004 |
10293975 |
OKLAHOMA CITY |
1 |
Add On |
0 |
Inactive |
| Click button on building number to access detailed information: | ||||||
|---|---|---|---|---|---|---|
| Bldg # | Vacant/Improved Land | Bldg Description | Year Built | SqFt | # Stories | |
|
1 |
Improved |
Ranch 1 Story |
1940 |
1,946 |
1 Stories |
|