|
|
|
| Larry Stein Oklahoma County Assessor (405) 713-1200 - Public Access System |
|
|
|
|
|
|
| Real Property Display - Screen Produced 3/20/2026 8:55:48 AM | ||||
|---|---|---|---|---|
| Account: R097071150 | Type: Residential | Location: |
909 SE 21ST ST |
|
| Building Name/Occupant: |
|
OKLAHOMA CITY |
||
| Owner Name 1: | GOUGE CASIO DOREEN |
Parcel PIN#: |
1637-09-707-1150 |
|
| Owner Name 2: | CASIO ALEJANDRO IVAN | 1/4 section #: |
1637 |
|
| Owner Name 3: | Parent Acct: |
|
||
| Billing Address: | 912 SE 21ST ST | Tax District: |
|
|
| City, State, Zip | OKLAHOMA CITY, OK 73129 | School System: |
Oklahoma City #89 |
|
|
Country: (If noted) |
Land Size: |
0.1607 Acres |
||
|
Land Value: 5,950 |
|
|||
|
Sect 10-T11N-R3W Qtr NE |
PATTERSONS SOUTH HIGHLAND ADD
Block
005
Lot
000
|
|||
| Full Legal Description: PATTERSONS SOUTH HIGHLAND ADD 005 000 LOTS 15 & 16 |
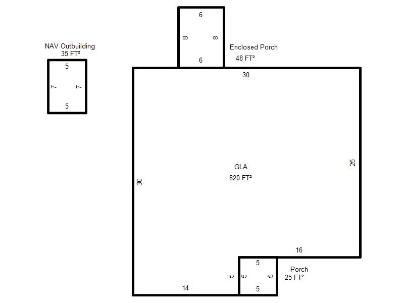
| Photo & Sketch (if available) | Comp Sales (ordered by relevancy) |
|
||||||||||||||||||
|
||||||||||||||||||||
| Value History (*The County Treasurer 405-713-1300 posts & collects actual tax amounts. Contact information HERE) | |||||||||||||
|---|---|---|---|---|---|---|---|---|---|---|---|---|---|
| Year | Market Value | Taxable Mkt Value | Gross Assessed | Exemption | Net Assessed | Millage | Est. Tax | Tax Savings | |||||
|
2025 |
70,500 |
26,035 |
2,863 |
0 |
2,863 |
119.02 |
$341 |
$582 |
|||||
|
2024 |
60,500 |
24,796 |
2,726 |
0 |
2,726 |
119.70 |
$326 |
$470 |
|||||
|
2023 |
52,500 |
23,616 |
2,597 |
0 |
2,597 |
118.33 |
$307 |
$376 |
|||||
|
2022 |
46,000 |
22,492 |
2,473 |
0 |
2,473 |
112.69 |
$279 |
$291 |
|||||
|
2021 |
39,000 |
21,421 |
2,356 |
0 |
2,356 |
112.29 |
$265 |
$217 |
|||||
| Property Account Status/Adjustments/Exemptions | ||
|---|---|---|
| Account # | Exemption Description | Amount |
|
R097071150 |
5% Capped Account |
0 |
| Property Deed Transaction History (Recorded in the County Clerk's Office) | ||||||||||
|---|---|---|---|---|---|---|---|---|---|---|
| Date | Type | Book | Page | Price | Grantor | Grantee | ||||
|
2/11/2020 |
|
Hmstd Off & |
$0 |
GOUGE MINNIE M |
GOUGE DOREEN |
|||||
|
2/11/2020 |
|
Hmstd Off & |
$0 |
GOUGE DOREEN |
GOUGE CASIO DOREEN |
|||||
|
3/22/2016 |
|
Deeds |
$0 |
GOUGE FELIX D & MINNIE M |
GOUGE MINNIE M |
|||||
|
3/22/2016 |
|
Hmstd Off & |
$0 |
GOUGE FELIX D GOUGE MINNIE M |
GOUGE MINNIE M |
|||||
|
5/26/1989 |
|
Historical |
$7,205 |
SECRETARY OF HOUSING |
GOUGE FELIX D |
|||||
| Last Mailed Notice of Value (N.O.V.) Information/History | ||||||||
|---|---|---|---|---|---|---|---|---|
| Year | Date | Market Value | Taxable Market Value | Gross Assessed | Exemption | Net Assessed | ||
|
2026 |
02/06/2026 |
80,500 |
27,336 |
3,006 |
0 |
3,006 |
||
|
2025 |
01/31/2025 |
70,500 |
26,035 |
2,863 |
0 |
2,863 |
||
|
2024 |
01/22/2024 |
60,500 |
24,796 |
2,726 |
0 |
2,726 |
||
|
2023 |
01/23/2023 |
52,500 |
23,616 |
2,597 |
0 |
2,597 |
||
|
2022 |
02/22/2022 |
46,000 |
22,492 |
2,473 |
0 |
2,473 |
||
| Property Building Permit History | |||||||||||
|---|---|---|---|---|---|---|---|---|---|---|---|
| Issued | Permit # | Provided by | Bldg # | Description | Est Construction Cost | Status | |||||
| No Building Permit records returned. | |||||||||||
| Click button on building number to access detailed information: | ||||||
|---|---|---|---|---|---|---|
| Bldg # | Vacant/Improved Land | Bldg Description | Year Built | SqFt | # Stories | |
|
1 |
Improved |
Ranch 1 Story |
1954 |
820 |
1 Stories |
|