|
|
|
| Larry Stein Oklahoma County Assessor (405) 713-1200 - Public Access System |
|
|
|
|
|
|
| Real Property Display - Screen Produced 3/20/2026 8:55:47 AM | ||||
|---|---|---|---|---|
| Account: R097071355 | Type: Residential | Location: |
2010 S LAIRD AVE |
|
| Building Name/Occupant: |
|
OKLAHOMA CITY |
||
| Owner Name 1: | GOMEZ RAMONA |
Parcel PIN#: |
1637-09-707-1355 |
|
| Owner Name 2: | ACOSTA TIMOTHY | 1/4 section #: |
1637 |
|
| Owner Name 3: | Parent Acct: |
|
||
| Billing Address: | 2010 S LAIRD AVE | Tax District: |
|
|
| City, State, Zip | OKLAHOMA CITY, OK 73129-4627 | School System: |
Oklahoma City #89 |
|
|
Country: (If noted) |
Land Size: |
0.3214 Acres |
||
|
Land Value: 11,900 |
|
|||
|
Sect 10-T11N-R3W Qtr NE |
PATTERSONS SOUTH HIGHLAND ADD
Block
006
Lot
000
|
|||
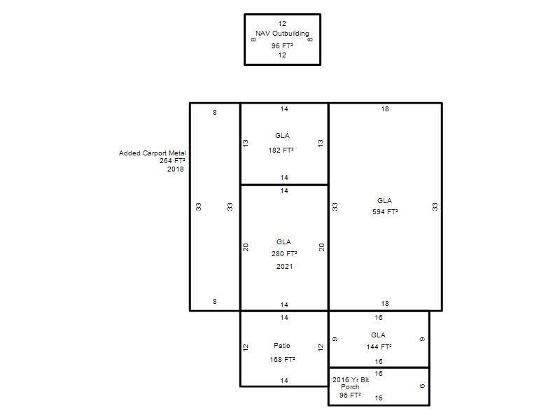
| Full Legal Description: PATTERSONS SOUTH HIGHLAND ADD 006 LOTS 7 THRU 10 |
| Photo & Sketch (if available) | Comp Sales (ordered by relevancy) |
|
||||||||||||||||||
|
||||||||||||||||||||
| Value History (*The County Treasurer 405-713-1300 posts & collects actual tax amounts. Contact information HERE) | |||||||||||||
|---|---|---|---|---|---|---|---|---|---|---|---|---|---|
| Year | Market Value | Taxable Mkt Value | Gross Assessed | Exemption | Net Assessed | Millage | Est. Tax | Tax Savings | |||||
|
2025 |
98,500 |
54,390 |
5,982 |
0 |
5,982 |
119.02 |
$712 |
$577 |
|||||
|
2024 |
86,500 |
51,800 |
5,697 |
0 |
5,697 |
119.70 |
$682 |
$457 |
|||||
|
2023 |
77,475 |
49,334 |
5,426 |
0 |
5,426 |
118.33 |
$642 |
$366 |
|||||
|
2022 |
61,000 |
40,807 |
4,488 |
0 |
4,488 |
112.69 |
$506 |
$250 |
|||||
|
2021 |
50,500 |
38,864 |
4,274 |
0 |
4,274 |
112.29 |
$480 |
$144 |
|||||
| Property Account Status/Adjustments/Exemptions | ||
|---|---|---|
| Account # | Exemption Description | Amount |
|
R097071355 |
5% Capped Account |
0 |
| Property Deed Transaction History (Recorded in the County Clerk's Office) | ||||||||||
|---|---|---|---|---|---|---|---|---|---|---|
| Date | Type | Book | Page | Price | Grantor | Grantee | ||||
|
3/24/2023 |
|
Deeds |
$0 |
DOMINGUEZ RAMONA GOMEZ AKA GOMEZ RAMONA |
GOMEZ RAMON |
|||||
|
1/6/2010 |
|
Hmstd Off & |
$0 |
INVESTMENT ACQUISTIONS LLC |
DOMINGUEZ RAMONA GOMEZ |
|||||
|
2/13/2007 |
|
Deeds |
$5,500 |
CARTER MARIO |
INVESTMENT ACQUISTIONS LLC |
|||||
|
1/2/2003 |
|
Deeds |
$8,000 |
BANK ONE |
CARTER MARIO |
|||||
|
6/10/2002 |
|
Hmstd Off & |
$0 |
GABRIEL GENEVA C |
BANK ONE |
|||||
| Last Mailed Notice of Value (N.O.V.) Information/History | ||||||||
|---|---|---|---|---|---|---|---|---|
| Year | Date | Market Value | Taxable Market Value | Gross Assessed | Exemption | Net Assessed | ||
|
2026 |
02/06/2026 |
112,000 |
57,109 |
6,281 |
0 |
6,281 |
||
|
2025 |
01/31/2025 |
98,500 |
54,390 |
5,982 |
0 |
5,982 |
||
|
2024 |
01/22/2024 |
86,500 |
51,800 |
5,697 |
0 |
5,697 |
||
|
2023 |
01/23/2023 |
69,500 |
42,847 |
4,712 |
0 |
4,712 |
||
|
2022 |
02/22/2022 |
61,000 |
40,807 |
4,487 |
0 |
4,487 |
||
| Property Building Permit History | ||||||
|---|---|---|---|---|---|---|
| Issued | Permit # | Provided by | Bldg # | Description | Est Construction Cost | Status |
|
5/8/2007 |
10336642 |
COUNTY |
1 |
Remodeled |
0 |
Inactive |
| Click button on building number to access detailed information: | ||||||
|---|---|---|---|---|---|---|
| Bldg # | Vacant/Improved Land | Bldg Description | Year Built | SqFt | # Stories | |
|
1 |
Improved |
Ranch 1 Story |
1948 |
1,200 |
1 Stories |
|