|
|
|
| Larry Stein Oklahoma County Assessor (405) 713-1200 - Public Access System |
|
|
|
|
|
|
| Real Property Display - Screen Produced 3/20/2026 5:40:15 AM | ||||
|---|---|---|---|---|
| Account: R097351100 | Type: Residential | Location: |
704 SE 18TH ST |
|
| Building Name/Occupant: |
|
OKLAHOMA CITY |
||
| Owner Name 1: | GARCIA MARIA LUISA |
Parcel PIN#: |
1637-09-735-1100 |
|
| Owner Name 2: | 1/4 section #: |
1637 |
||
| Owner Name 3: | Parent Acct: |
|
||
| Billing Address: | 704 SE 18TH ST | Tax District: |
|
|
| City, State, Zip | OKLAHOMA CITY, OK 73129-4412 | School System: |
Oklahoma City #89 |
|
|
Country: (If noted) |
Land Size: |
0.1607 Acres |
||
|
Land Value: 5,950 |
|
|||
|
Sect 10-T11N-R3W Qtr NE |
TERRACE LAWN AMD
Block
015
Lot
000
|
|||
| Full Legal Description: TERRACE LAWN AMD 015 000 LOTS 13 & 14 |
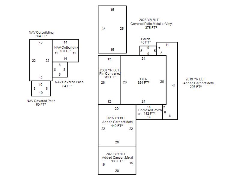
| Photo & Sketch (if available) | Comp Sales (ordered by relevancy) |
|
||||||||||||||||||
|
||||||||||||||||||||
| Value History (*The County Treasurer 405-713-1300 posts & collects actual tax amounts. Contact information HERE) | |||||||||||||
|---|---|---|---|---|---|---|---|---|---|---|---|---|---|
| Year | Market Value | Taxable Mkt Value | Gross Assessed | Exemption | Net Assessed | Millage | Est. Tax | Tax Savings | |||||
|
2025 |
71,500 |
47,799 |
5,257 |
0 |
5,257 |
119.02 |
$626 |
$310 |
|||||
|
2024 |
64,000 |
45,523 |
5,007 |
0 |
5,007 |
119.70 |
$599 |
$243 |
|||||
|
2023 |
54,000 |
43,356 |
4,769 |
0 |
4,769 |
118.33 |
$564 |
$139 |
|||||
|
2022 |
49,000 |
41,292 |
4,541 |
0 |
4,541 |
112.69 |
$512 |
$96 |
|||||
|
2021 |
40,000 |
38,850 |
4,273 |
0 |
4,273 |
112.29 |
$480 |
$14 |
|||||
| Property Account Status/Adjustments/Exemptions | ||
|---|---|---|
| Account # | Exemption Description | Amount |
|
R097351100 |
5% Capped Account |
0 |
| Property Deed Transaction History (Recorded in the County Clerk's Office) | ||||||||||
|---|---|---|---|---|---|---|---|---|---|---|
| Date | Type | Book | Page | Price | Grantor | Grantee | ||||
|
10/7/2024 |
|
Hmstd Off & |
$0 |
CORCHADO ARMANDO & MARIA LUISA GARCIA |
GARCIA MARIA LUISA |
|||||
|
6/22/2011 |
|
Deeds |
$13,000 |
POSTOAK CHRISTINA ELAINE |
CORCHADO ARMANDO & MARIA LUISA GARCIA |
|||||
|
6/18/2009 |
|
Deeds |
$0 |
VILLANUEVA VICTOR |
POSTOAK CHRISTINA ELAINE |
|||||
|
6/15/2004 |
|
Other |
$0 |
HILT STEPHEN D |
VILLANUEVA VICTOR |
|||||
|
8/7/1990 |
|
Historical |
$0 |
BURRIS GERTRUDE |
HILT STEPHEN D |
|||||
| Last Mailed Notice of Value (N.O.V.) Information/History | ||||||||
|---|---|---|---|---|---|---|---|---|
| Year | Date | Market Value | Taxable Market Value | Gross Assessed | Exemption | Net Assessed | ||
|
2025 |
01/31/2025 |
71,500 |
47,799 |
5,257 |
0 |
5,257 |
||
|
2024 |
01/22/2024 |
64,000 |
45,523 |
5,007 |
0 |
5,007 |
||
|
2023 |
01/23/2023 |
54,000 |
43,356 |
4,769 |
0 |
4,769 |
||
|
2022 |
02/22/2022 |
49,000 |
41,292 |
4,541 |
0 |
4,541 |
||
|
2021 |
02/24/2021 |
40,000 |
38,850 |
4,273 |
0 |
4,273 |
||
| Property Building Permit History | ||||||
|---|---|---|---|---|---|---|
| Issued | Permit # | Provided by | Bldg # | Description | Est Construction Cost | Status |
|
12/15/2011 |
10436535 |
OKLAHOMA CITY |
1 |
Add On |
0 |
Inactive |
| Click button on building number to access detailed information: | ||||||
|---|---|---|---|---|---|---|
| Bldg # | Vacant/Improved Land | Bldg Description | Year Built | SqFt | # Stories | |
|
1 |
Improved |
Ranch 1 Story |
1949 |
624 |
1 Stories |
|