|
|
|
| Larry Stein Oklahoma County Assessor (405) 713-1200 - Public Access System |
|
|
|
|
|
|
| Real Property Display - Screen Produced 3/19/2026 4:00:01 AM | ||||
|---|---|---|---|---|
| Account: R095532900 | Type: Residential | Location: |
534 SE 27TH ST |
|
| Building Name/Occupant: |
|
OKLAHOMA CITY |
||
| Owner Name 1: | DEHUMA ENOC |
Parcel PIN#: |
1638-09-553-2900 |
|
| Owner Name 2: | TORRES ROXANA | 1/4 section #: |
1638 |
|
| Owner Name 3: | Parent Acct: |
|
||
| Billing Address: | 4624 ELK CREEK DR | Tax District: |
|
|
| City, State, Zip | YUKON, OK 73099 | School System: |
Oklahoma City #89 |
|
|
Country: (If noted) |
Land Size: |
0.2583 Acres |
||
|
Land Value: 12,938 |
|
|||
|
Sect 10-T11N-R3W Qtr SE |
VIEW POINT ADDITION
Block
003
Lot
000
|
|||
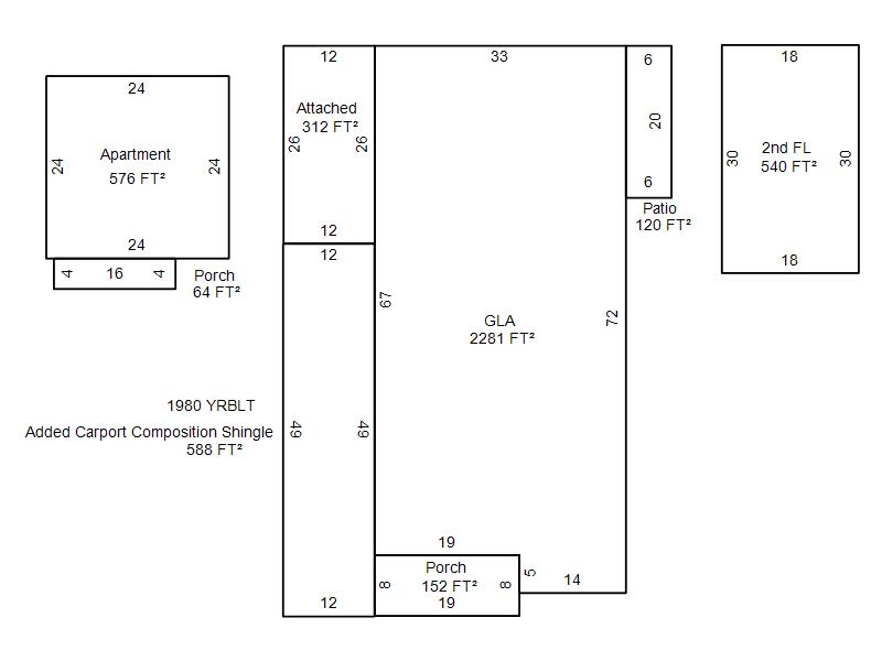
| Full Legal Description: VIEW POINT ADDITION 003 000 LOTS 17 THRU 19 |
| Photo & Sketch (if available) | Comp Sales (ordered by relevancy) |
|
||||||||||||||||||
|
||||||||||||||||||||
| Value History (*The County Treasurer 405-713-1300 posts & collects actual tax amounts. Contact information HERE) | |||||||||||||
|---|---|---|---|---|---|---|---|---|---|---|---|---|---|
| Year | Market Value | Taxable Mkt Value | Gross Assessed | Exemption | Net Assessed | Millage | Est. Tax | Tax Savings | |||||
| No PropertyValuation records returned. | |||||||||||||
| Property Account Status/Adjustments/Exemptions | ||
|---|---|---|
| Account # | Exemption Description | Amount |
|
R095532900 |
5% Capped Account |
0 |
| Property Deed Transaction History (Recorded in the County Clerk's Office) | |||||||
|---|---|---|---|---|---|---|---|
| Date | Type | Book | Page | Price | Grantor | Grantee | |
|
12/9/2021 |
|
Deeds |
$60,000 |
GREEN LAWRENCE E |
DEHUMA ENOC |
||
|
4/9/2012 |
|
Deeds |
$0 |
GREEN LAWRENCE E & MARIE |
GREEN MARIE |
||
|
4/9/2012 |
|
Hmstd Off & |
$0 |
GREEN MARIE |
GREEN LAWRENCE E |
||
|
10/1/1974 |
|
Historical |
$0 |
|
GREEN LAWRENCE E & MARIE |
||
| Last Mailed Notice of Value (N.O.V.) Information/History | ||||||||
|---|---|---|---|---|---|---|---|---|
| Year | Date | Market Value | Taxable Market Value | Gross Assessed | Exemption | Net Assessed | ||
| No Notice of Value N.O.V. records returned. | ||||||||
| Property Building Permit History | |||||||||||
|---|---|---|---|---|---|---|---|---|---|---|---|
| Issued | Permit # | Provided by | Bldg # | Description | Est Construction Cost | Status | |||||
| No Building Permit records returned. | |||||||||||
| Click button on building number to access detailed information: | ||||||
|---|---|---|---|---|---|---|
| Bldg # | Vacant/Improved Land | Bldg Description | Year Built | SqFt | # Stories | |
|
1 |
Improved |
1½ Story Fin |
1949 |
2,821 |
1.5 Stories |
|