|
|
|
| Larry Stein Oklahoma County Assessor (405) 713-1200 - Public Access System |
|
|
|
|
|
|
| Real Property Display - Screen Produced 4/9/2026 7:56:46 AM | ||||
|---|---|---|---|---|
| Account: R206811170 | Type: Residential | Location: |
528 SE 26TH CIR |
|
| Building Name/Occupant: |
|
OKLAHOMA CITY |
||
| Owner Name 1: | FREEMAN ALICIA D |
Parcel PIN#: |
1638-20-681-1170 |
|
| Owner Name 2: | 1/4 section #: |
1638 |
||
| Owner Name 3: | Parent Acct: |
1638-13-188-6005 |
||
| Billing Address: | 528 SE 26TH CIR | Tax District: |
|
|
| City, State, Zip | OKLAHOMA CITY, OK 73129-2002 | School System: |
Oklahoma City #89 |
|
|
Country: (If noted) |
Land Size: |
0.1530 Acres |
||
|
Land Value: 25,656 |
|
|||
|
Sect 10-T11N-R3W Qtr SE |
LAS ROSAS SEC I
Block
003
Lot
003
|
|||
| Full Legal Description: LAS ROSAS SEC I 003 003 |
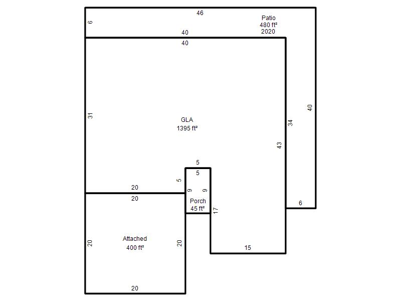
| Photo & Sketch (if available) | Comp Sales (ordered by relevancy) |
|
||||||||||||||||||
|
||||||||||||||||||||
| Value History (*The County Treasurer 405-713-1300 posts & collects actual tax amounts. Contact information HERE) | |||||||||||||
|---|---|---|---|---|---|---|---|---|---|---|---|---|---|
| Year | Market Value | Taxable Mkt Value | Gross Assessed | Exemption | Net Assessed | Millage | Est. Tax | Tax Savings | |||||
|
2026 |
183,000 |
126,567 |
13,921 |
1,000 |
12,921 |
119.02 |
$1,538 |
$858 |
|||||
|
2025 |
180,500 |
122,881 |
13,516 |
1,000 |
12,516 |
119.02 |
$1,490 |
$873 |
|||||
|
2024 |
176,000 |
119,302 |
13,123 |
2,000 |
11,123 |
119.70 |
$1,331 |
$986 |
|||||
|
2023 |
161,000 |
115,828 |
12,741 |
1,000 |
11,741 |
118.33 |
$1,389 |
$706 |
|||||
|
2022 |
151,500 |
112,455 |
12,369 |
1,000 |
11,369 |
112.69 |
$1,281 |
$597 |
|||||
| Property Account Status/Adjustments/Exemptions | ||
|---|---|---|
| Account # | Exemption Description | Amount |
|
R206811170 |
3% Cap Homestead |
0 |
|
R206811170 |
Homestead |
1,000 |
| Property Deed Transaction History (Recorded in the County Clerk's Office) | |||||||
|---|---|---|---|---|---|---|---|
| Date | Type | Book | Page | Price | Grantor | Grantee | |
|
8/12/2016 |
|
Deeds |
$0 |
CENTRAL OKLAHOMA HABITAT FOR HUMANITY INC AKA |
FREEMAN ALICIA D |
||
|
1/4/2013 |
|
Deeds |
$100,000 |
CENTRAL OKLA HABITAT FOR HUMANITY INC |
FREEMAN ALICIA D |
||
|
8/10/2011 |
|
Mult Parcel |
$100,000 |
TDG PROPERTIES LLC |
CENTRAL OKLAHOMA HABITAT FOR HUMANITY IN |
||
|
4/19/2007 |
|
Mult Parcel |
$200,000 |
LA ROSAS LLC |
TDG PROPERTIES LLC |
||
| Last Mailed Notice of Value (N.O.V.) Information/History | ||||||||
|---|---|---|---|---|---|---|---|---|
| Year | Date | Market Value | Taxable Market Value | Gross Assessed | Exemption | Net Assessed | ||
|
2026 |
02/06/2026 |
183,000 |
126,567 |
13,921 |
1,000 |
12,921 |
||
|
2025 |
01/31/2025 |
180,500 |
122,881 |
13,516 |
1,000 |
12,516 |
||
|
2024 |
01/22/2024 |
176,000 |
119,302 |
13,123 |
2,000 |
11,123 |
||
|
2023 |
01/23/2023 |
161,000 |
115,828 |
12,741 |
1,000 |
11,741 |
||
|
2022 |
02/22/2022 |
214,500 |
112,455 |
12,369 |
1,000 |
11,369 |
||
| Property Building Permit History | ||||||
|---|---|---|---|---|---|---|
| Issued | Permit # | Provided by | Bldg # | Description | Est Construction Cost | Status |
|
9/6/2012 |
10444957 |
OKLAHOMA CITY |
1 |
Main Dwellin |
85,000 |
Inactive |
| Click button on building number to access detailed information: | ||||||
|---|---|---|---|---|---|---|
| Bldg # | Vacant/Improved Land | Bldg Description | Year Built | SqFt | # Stories | |
|
1 |
Improved |
Ranch 1 Story |
2012 |
1,395 |
1 Stories |
|