|
|
|
| Larry Stein Oklahoma County Assessor (405) 713-1200 - Public Access System |
|
|
|
|
|
|
| Real Property Display - Screen Produced 3/20/2026 1:49:00 PM | ||||
|---|---|---|---|---|
| Account: R093991185 | Type: Industrial | Location: |
101 SE 24TH ST |
|
| Building Name/Occupant: |
JOHNSTON TEST CELL |
OKLAHOMA CITY |
||
| Owner Name 1: | JOHNSTON STEPHEN E & TERESA L REV FAMILY TRUST |
Parcel PIN#: |
1639-09-399-1185 |
|
| Owner Name 2: | 1/4 section #: |
1639 |
||
| Owner Name 3: | Parent Acct: |
1639-09-399-1215 |
||
| Billing Address: | 7201 SW 105TH ST | Tax District: |
|
|
| City, State, Zip | OKLAHOMA CITY, OK 73173-7723 | School System: |
Oklahoma City #89 |
|
|
Country: (If noted) |
Land Size: |
28,000.0000 Square Feet |
||
|
Land Value: 22,400 |
|
|||
|
Sect 10-T11N-R3W Qtr SW |
SCHILLINGS ADDITION
Block
007
Lot
000
|
|||
| Full Legal Description: SCHILLINGS ADDITION 007 000 LOTS 21 THRU 28 |
| No comparable sales report available. | ||||||||||||||||||||||
|
||||||||||||||||||||||
| Value History (*The County Treasurer 405-713-1300 posts & collects actual tax amounts. Contact information HERE) | |||||||||||||
|---|---|---|---|---|---|---|---|---|---|---|---|---|---|
| Year | Market Value | Taxable Mkt Value | Gross Assessed | Exemption | Net Assessed | Millage | Est. Tax | Tax Savings | |||||
|
2025 |
468,932 |
208,937 |
22,982 |
0 |
22,982 |
119.02 |
$2,735 |
$3,404 |
|||||
|
2024 |
303,358 |
198,988 |
21,888 |
0 |
21,888 |
119.70 |
$2,620 |
$1,374 |
|||||
|
2023 |
303,358 |
189,513 |
20,845 |
0 |
20,845 |
118.33 |
$2,467 |
$1,482 |
|||||
|
2022 |
303,358 |
180,489 |
19,853 |
0 |
19,853 |
112.69 |
$2,237 |
$1,523 |
|||||
|
2021 |
235,871 |
171,895 |
18,908 |
0 |
18,908 |
112.29 |
$2,123 |
$790 |
|||||
| Property Account Status/Adjustments/Exemptions | ||
|---|---|---|
| Account # | Exemption Description | Amount |
|
R093991185 |
5% Capped Account |
0 |
| Property Deed Transaction History (Recorded in the County Clerk's Office) | |||||||
|---|---|---|---|---|---|---|---|
| Date | Type | Book | Page | Price | Grantor | Grantee | |
|
9/3/2025 |
|
Hmstd Off & |
$0 |
JOHNSTON STEPHEN E |
JOHNSTON STEPHEN E & TERESA L REV FAMILY TRUST |
||
|
9/27/2011 |
|
Deeds |
$100,000 |
MORGAN WILLIAM R & SAUNDRA S |
JOHNSTON STEPHEN E |
||
|
12/17/2004 |
|
Deeds |
$100,000 |
JOHNSTON EDWARD E & JOYCE L |
MORGAN WILLIAM R & SAUNDRA S |
||
|
12/1/1986 |
|
Historical |
$0 |
PENWELL DESIGN & MFG CO |
JOHNSTON EDWARD E & JOYCE L |
||
|
2/1/1980 |
|
Historical |
$0 |
|
PENWELL DESIGN & MFG CO |
||
| Last Mailed Notice of Value (N.O.V.) Information/History | ||||||||
|---|---|---|---|---|---|---|---|---|
| Year | Date | Market Value | Taxable Market Value | Gross Assessed | Exemption | Net Assessed | ||
|
2026 |
03/23/2026 |
471,000 |
219,383 |
24,132 |
0 |
24,132 |
||
|
2025 |
03/14/2025 |
468,932 |
208,937 |
22,982 |
0 |
22,982 |
||
|
2024 |
03/12/2024 |
303,358 |
198,988 |
21,888 |
0 |
21,888 |
||
|
2023 |
03/13/2023 |
303,358 |
189,513 |
20,845 |
0 |
20,845 |
||
|
2022 |
03/09/2022 |
303,358 |
180,489 |
19,853 |
0 |
19,853 |
||
| Property Building Permit History | ||||||
|---|---|---|---|---|---|---|
| Issued | Permit # | Provided by | Bldg # | Description | Est Construction Cost | Status |
|
1/17/2019 |
|
|
|
Commercial |
10,000 |
Inactive |
| Click button on building number to access detailed information: | ||||||
|---|---|---|---|---|---|---|
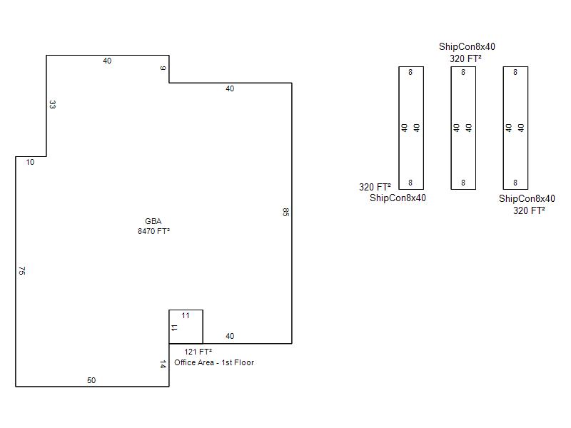
| Bldg # | Vacant/Improved Land | Bldg Description | Year Built | SqFt | # Stories | |
|
1 |
Improved |
Indust Lght Manufacturing |
1975 |
8,470 |
1 Stories |
|