|
|
|
| Larry Stein Oklahoma County Assessor (405) 713-1200 - Public Access System |
|
|
|
|
|
|
| Real Property Display - Screen Produced 3/24/2026 5:51:45 AM | ||||
|---|---|---|---|---|
| Account: R093997155 | Type: Residential | Location: |
208 SE 27TH ST |
|
| Building Name/Occupant: |
|
OKLAHOMA CITY |
||
| Owner Name 1: | ANNETT RACHEL K |
Parcel PIN#: |
1639-09-399-7155 |
|
| Owner Name 2: | 1/4 section #: |
1639 |
||
| Owner Name 3: | Parent Acct: |
|
||
| Billing Address: | 208 SE 27TH ST | Tax District: |
|
|
| City, State, Zip | OKLAHOMA CITY, OK 73129-2012 | School System: |
Oklahoma City #89 |
|
|
Country: (If noted) |
Land Size: |
0.1607 Acres |
||
|
Land Value: 5,250 |
|
|||
|
Sect 10-T11N-R3W Qtr SW |
SCHILLINGS ADDITION
Block
028
Lot
000
|
|||
| Full Legal Description: SCHILLINGS ADDITION 028 000 LOTS 5 & 6 |
| No comparable sales report available. | ||||||||||||||||||||||
|
||||||||||||||||||||||
| Value History (*The County Treasurer 405-713-1300 posts & collects actual tax amounts. Contact information HERE) | |||||||||||||
|---|---|---|---|---|---|---|---|---|---|---|---|---|---|
| Year | Market Value | Taxable Mkt Value | Gross Assessed | Exemption | Net Assessed | Millage | Est. Tax | Tax Savings | |||||
|
2025 |
57,327 |
38,523 |
4,236 |
0 |
4,236 |
119.02 |
$504 |
$246 |
|||||
|
2024 |
57,331 |
36,689 |
4,035 |
0 |
4,035 |
119.70 |
$483 |
$272 |
|||||
|
2023 |
44,495 |
34,942 |
3,843 |
0 |
3,843 |
118.33 |
$455 |
$124 |
|||||
|
2022 |
43,254 |
33,279 |
3,660 |
0 |
3,660 |
112.69 |
$413 |
$124 |
|||||
|
2021 |
31,695 |
31,695 |
3,486 |
0 |
3,486 |
112.29 |
$391 |
$0 |
|||||
| Property Account Status/Adjustments/Exemptions | ||
|---|---|---|
| Account # | Exemption Description | Amount |
|
R093997155 |
5% Capped Account |
0 |
| Property Deed Transaction History (Recorded in the County Clerk's Office) | ||||||||||
|---|---|---|---|---|---|---|---|---|---|---|
| Date | Type | Book | Page | Price | Grantor | Grantee | ||||
|
2/6/2015 |
|
Other |
$0 |
BESTWAY NOW LLC |
ANNETT RACHEL K |
|||||
|
7/16/2009 |
|
Hmstd Off & |
$0 |
MAKINDE TOLULOPE |
DEUTSCHE BANK TRUST COMPANY TRS |
|||||
|
7/1/2009 |
|
Deeds |
$17,500 |
DEUTSCHE BANK TRUST COMPANY AMERICAS TRS |
BESTWAY NOW LLC |
|||||
|
7/1/2009 |
|
Hmstd Off & |
$0 |
DEUTSCHE BANK TRUST CO TRS |
BESTWAY NOW LLC |
|||||
|
6/10/2009 |
|
Hmstd Off & |
$0 |
MAKINDE TOLULOPE |
DEUTSCHE BANK TRUST COMPANY AMERICAS TRS |
|||||
| Last Mailed Notice of Value (N.O.V.) Information/History | ||||||||
|---|---|---|---|---|---|---|---|---|
| Year | Date | Market Value | Taxable Market Value | Gross Assessed | Exemption | Net Assessed | ||
|
2026 |
02/06/2026 |
69,228 |
40,449 |
4,448 |
0 |
4,448 |
||
|
2025 |
01/31/2025 |
57,327 |
38,523 |
4,236 |
0 |
4,236 |
||
|
2024 |
01/22/2024 |
57,331 |
36,689 |
4,035 |
0 |
4,035 |
||
|
2023 |
01/23/2023 |
44,495 |
34,942 |
3,843 |
0 |
3,843 |
||
|
2022 |
02/22/2022 |
43,254 |
33,279 |
3,660 |
0 |
3,660 |
||
| Property Building Permit History | ||||||
|---|---|---|---|---|---|---|
| Issued | Permit # | Provided by | Bldg # | Description | Est Construction Cost | Status |
|
7/30/2013 |
10453181 |
OKLAHOMA CITY |
2 |
Remodeled |
0 |
Inactive |
| Click button on building number to access detailed information: | ||||||
|---|---|---|---|---|---|---|
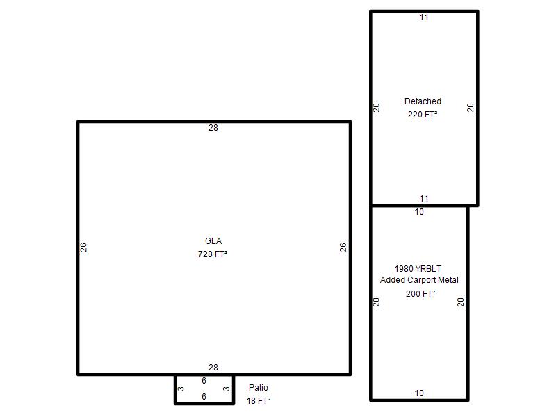
| Bldg # | Vacant/Improved Land | Bldg Description | Year Built | SqFt | # Stories | |
|
1 |
Improved |
Ranch 1 Story |
1940 |
728 |
1 Stories |
|
|
2 |
Improved |
Salvage |
1928 |
472 |
1 Stories |
|