|
|
|
| Larry Stein Oklahoma County Assessor (405) 713-1200 - Public Access System |
|
|
|
|
|
|
| Real Property Display - Screen Produced 3/20/2026 1:43:16 PM | ||||
|---|---|---|---|---|
| Account: R093997800 | Type: Residential | Location: |
421 SE 28TH ST |
|
| Building Name/Occupant: |
|
OKLAHOMA CITY |
||
| Owner Name 1: | ORTIZ ALBERTINA |
Parcel PIN#: |
1639-09-399-7800 |
|
| Owner Name 2: | 1/4 section #: |
1639 |
||
| Owner Name 3: | Parent Acct: |
|
||
| Billing Address: | 102 NE 10TH ST | Tax District: |
|
|
| City, State, Zip | MOORE, OK 73160-4706 | School System: |
Oklahoma City #89 |
|
|
Country: (If noted) |
Land Size: |
0.1607 Acres |
||
|
Land Value: 5,250 |
|
|||
|
Sect 10-T11N-R3W Qtr SW |
SCHILLINGS ADDITION
Block
030
Lot
000
|
|||
| Full Legal Description: SCHILLINGS ADDITION 030 000 LOTS 27 & 28 |
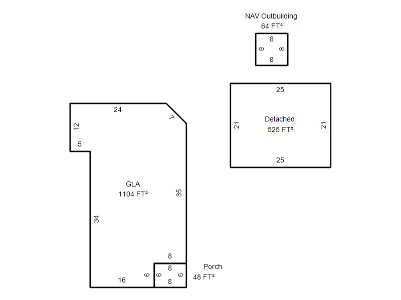
| Photo & Sketch (if available) | Comp Sales (ordered by relevancy) |
|
||||||||||||||||||
|
||||||||||||||||||||
| Value History (*The County Treasurer 405-713-1300 posts & collects actual tax amounts. Contact information HERE) | |||||||||||||
|---|---|---|---|---|---|---|---|---|---|---|---|---|---|
| Year | Market Value | Taxable Mkt Value | Gross Assessed | Exemption | Net Assessed | Millage | Est. Tax | Tax Savings | |||||
|
2025 |
83,500 |
32,733 |
3,600 |
0 |
3,600 |
119.02 |
$429 |
$665 |
|||||
|
2024 |
72,000 |
31,175 |
3,429 |
0 |
3,429 |
119.70 |
$410 |
$538 |
|||||
|
2023 |
59,500 |
29,691 |
3,265 |
0 |
3,265 |
118.33 |
$386 |
$388 |
|||||
|
2022 |
52,500 |
28,278 |
3,110 |
0 |
3,110 |
112.69 |
$351 |
$300 |
|||||
|
2021 |
44,000 |
26,932 |
2,962 |
0 |
2,962 |
112.29 |
$333 |
$211 |
|||||
| Property Account Status/Adjustments/Exemptions | ||
|---|---|---|
| Account # | Exemption Description | Amount |
|
R093997800 |
5% Capped Account |
0 |
| Property Deed Transaction History (Recorded in the County Clerk's Office) | |||||||
|---|---|---|---|---|---|---|---|
| Date | Type | Book | Page | Price | Grantor | Grantee | |
|
8/19/1997 |
|
Historical |
$15,000 |
ADAMS F L & LILLIAN |
ORTIZ ALBERTINA |
||
|
11/11/1911 |
|
Historical |
$0 |
|
ADAMS F L & LILLIAN |
||
| Last Mailed Notice of Value (N.O.V.) Information/History | ||||||||
|---|---|---|---|---|---|---|---|---|
| Year | Date | Market Value | Taxable Market Value | Gross Assessed | Exemption | Net Assessed | ||
|
2026 |
02/06/2026 |
92,500 |
34,369 |
3,780 |
0 |
3,780 |
||
|
2025 |
01/31/2025 |
83,500 |
32,733 |
3,600 |
0 |
3,600 |
||
|
2024 |
01/22/2024 |
72,000 |
31,175 |
3,429 |
0 |
3,429 |
||
|
2023 |
01/23/2023 |
59,500 |
29,691 |
3,265 |
0 |
3,265 |
||
|
2022 |
02/22/2022 |
52,500 |
28,278 |
3,110 |
0 |
3,110 |
||
| Property Building Permit History | |||||||||||
|---|---|---|---|---|---|---|---|---|---|---|---|
| Issued | Permit # | Provided by | Bldg # | Description | Est Construction Cost | Status | |||||
| No Building Permit records returned. | |||||||||||
| Click button on building number to access detailed information: | ||||||
|---|---|---|---|---|---|---|
| Bldg # | Vacant/Improved Land | Bldg Description | Year Built | SqFt | # Stories | |
|
1 |
Improved |
Ranch 1 Story |
1923 |
1,104 |
1 Stories |
|