|
|
|
| Larry Stein Oklahoma County Assessor (405) 713-1200 - Public Access System |
|
|
|
|
|
|
| Real Property Display - Screen Produced 3/22/2026 4:17:30 AM | ||||
|---|---|---|---|---|
| Account: R098332195 | Type: Residential | Location: |
414 SE 17TH ST |
|
| Building Name/Occupant: |
|
OKLAHOMA CITY |
||
| Owner Name 1: | FOREMAN MICKEY LEE |
Parcel PIN#: |
1640-09-833-2195 |
|
| Owner Name 2: | FOREMAN JOHNNY BRUCE | 1/4 section #: |
1640 |
|
| Owner Name 3: | Parent Acct: |
|
||
| Billing Address: | 941 SW 25TH ST | Tax District: |
|
|
| City, State, Zip | OKLAHOMA CITY, OK 73109 | School System: |
Oklahoma City #89 |
|
|
Country: (If noted) |
Land Size: |
0.1318 Acres |
||
|
Land Value: 6,371 |
|
|||
|
Sect 10-T11N-R3W Qtr NW |
ECKROAT ADDITION
Block
005
Lot
000
|
|||
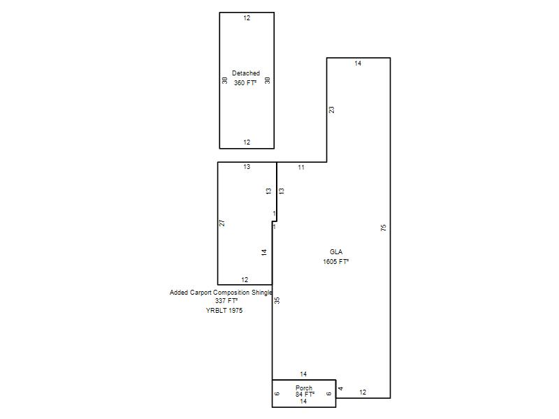
| Full Legal Description: ECKROAT ADDITION 005 000 LOT 7 & E16 1/2FT LOT 8 |
| Photo & Sketch (if available) | Comp Sales (ordered by relevancy) |
|
||||||||||||||||||
|
||||||||||||||||||||
| Value History (*The County Treasurer 405-713-1300 posts & collects actual tax amounts. Contact information HERE) | |||||||||||||
|---|---|---|---|---|---|---|---|---|---|---|---|---|---|
| Year | Market Value | Taxable Mkt Value | Gross Assessed | Exemption | Net Assessed | Millage | Est. Tax | Tax Savings | |||||
|
2025 |
96,000 |
16,873 |
1,855 |
0 |
1,855 |
119.02 |
$221 |
$1,036 |
|||||
|
2024 |
83,500 |
16,070 |
1,767 |
0 |
1,767 |
119.70 |
$212 |
$888 |
|||||
|
2023 |
70,000 |
15,305 |
1,683 |
0 |
1,683 |
118.33 |
$199 |
$712 |
|||||
|
2022 |
61,000 |
14,577 |
1,603 |
0 |
1,603 |
112.69 |
$181 |
$575 |
|||||
|
2021 |
50,500 |
13,883 |
1,527 |
1,527 |
0 |
112.29 |
$0 |
$624 |
|||||
| Property Account Status/Adjustments/Exemptions | ||||||
|---|---|---|---|---|---|---|
| Account # | Exemption Description | Amount | ||||
| No adjustment/exemption records returned. | ||||||
| Property Deed Transaction History (Recorded in the County Clerk's Office) | |||||||
|---|---|---|---|---|---|---|---|
| Date | Type | Book | Page | Price | Grantor | Grantee | |
|
11/30/2021 |
|
Deeds |
$ |
FOREMAN CORDELL & BILLIE J |
FOREMAN BILLIE J |
||
|
11/30/2021 |
|
Hmstd Off & |
$ |
FOREMAN BILLIE J |
FOREMAN MICKEY LEE |
||
|
11/11/1911 |
|
Historical |
$0 |
|
FOREMAN CORDELL & BILLIE J |
||
| Last Mailed Notice of Value (N.O.V.) Information/History | ||||||||
|---|---|---|---|---|---|---|---|---|
| Year | Date | Market Value | Taxable Market Value | Gross Assessed | Exemption | Net Assessed | ||
|
2026 |
02/06/2026 |
109,500 |
17,716 |
1,948 |
0 |
1,948 |
||
|
2025 |
01/31/2025 |
96,000 |
16,873 |
1,855 |
0 |
1,855 |
||
|
2024 |
01/22/2024 |
83,500 |
16,070 |
1,767 |
0 |
1,767 |
||
|
2023 |
01/23/2023 |
70,000 |
15,305 |
1,683 |
0 |
1,683 |
||
|
2022 |
02/22/2022 |
61,000 |
14,577 |
1,603 |
0 |
1,603 |
||
| Property Building Permit History | |||||||||||
|---|---|---|---|---|---|---|---|---|---|---|---|
| Issued | Permit # | Provided by | Bldg # | Description | Est Construction Cost | Status | |||||
| No Building Permit records returned. | |||||||||||
| Click button on building number to access detailed information: | ||||||
|---|---|---|---|---|---|---|
| Bldg # | Vacant/Improved Land | Bldg Description | Year Built | SqFt | # Stories | |
|
1 |
Improved |
Ranch 1 Story |
1925 |
1,605 |
1 Stories |
|