|
|
|
| Larry Stein Oklahoma County Assessor (405) 713-1200 - Public Access System |
|
|
|
|
|
|
| Real Property Display - Screen Produced 3/12/2026 11:05:54 PM | ||||
|---|---|---|---|---|
| Account: R194801910 | Type: Residential | Location: |
350 S HENNEY RD |
|
| Building Name/Occupant: |
|
CHOCTAW |
||
| Owner Name 1: | EMERSON ADAM L |
Parcel PIN#: |
1208-19-480-1910 |
|
| Owner Name 2: | 1/4 section #: |
1208 |
||
| Owner Name 3: | Parent Acct: |
|
||
| Billing Address: | PO BOX 1814 | Tax District: |
|
|
| City, State, Zip | CHOCTAW, OK 73020 | School System: |
Choctaw #4 |
|
|
Country: (If noted) |
Land Size: |
5.0100 Acres |
||
|
Land Value: 57,260 |
|
|||
|
Sect 2-T11N-R1W Qtr NW |
UNPLTD PT SEC 02 11N 1W
Block
000
Lot
000
|
|||
| Full Legal Description: UNPLTD PT SEC 02 11N 1W 000 000 PT NW4 SEC 2 11N 1W BEG 760FT S OF NW/C NW4 TH S331.50FT E658.47FT N331.50FT W658.19FT TO BEG CONT 5.01ACRS MORE OR LESSSUBJ TO ESMTS OF RECORD |
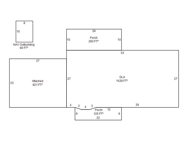
| Photo & Sketch (if available) | Comp Sales (ordered by relevancy) |
|
||||||||||||||||||
|
||||||||||||||||||||
| Value History (*The County Treasurer 405-713-1300 posts & collects actual tax amounts. Contact information HERE) | |||||||||||||
|---|---|---|---|---|---|---|---|---|---|---|---|---|---|
| Year | Market Value | Taxable Mkt Value | Gross Assessed | Exemption | Net Assessed | Millage | Est. Tax | Tax Savings | |||||
|
2025 |
293,000 |
219,141 |
24,104 |
0 |
24,104 |
117.21 |
$2,825 |
$952 |
|||||
|
2024 |
281,000 |
208,706 |
22,957 |
0 |
22,957 |
116.35 |
$2,671 |
$925 |
|||||
|
2023 |
261,000 |
198,768 |
21,864 |
0 |
21,864 |
118.06 |
$2,581 |
$808 |
|||||
|
2022 |
230,000 |
189,303 |
20,822 |
0 |
20,822 |
116.14 |
$2,418 |
$520 |
|||||
|
2021 |
199,500 |
180,289 |
19,831 |
0 |
19,831 |
116.17 |
$2,304 |
$245 |
|||||
| Property Account Status/Adjustments/Exemptions | ||
|---|---|---|
| Account # | Exemption Description | Amount |
|
R194801910 |
5% Capped Account |
0 |
| Property Deed Transaction History (Recorded in the County Clerk's Office) | ||||||||||
|---|---|---|---|---|---|---|---|---|---|---|
| Date | Type | Book | Page | Price | Grantor | Grantee | ||||
|
8/29/2024 |
|
Hmstd Off & |
$0 |
EMERSON MELANIE D |
EMERSON ADAM L |
|||||
|
1/17/2014 |
|
Mult Parcel |
$190,000 |
ANDERSON SARAH E |
EMERSON MELANIE D & ADAM L |
|||||
|
9/4/2013 |
|
Hmstd Off & |
$0 |
COLLINS CLINTON C & MASAKO H TRUST |
ANDERSON SARAH E |
|||||
|
3/9/2004 |
|
Deeds |
$0 |
COLLINS CLINTON C & MASAKO H |
COLLINS CLINTON C & MASAKO H CO TRS COLLINS CLINTON C & MASA |
|||||
|
3/9/2004 |
|
Deeds |
$0 |
COLLINS CLINTON C & MASAKO H |
COLLINS CLINTON C & MASAKO H CO TRS COLLINS CLINTON C & MASA |
|||||
| Last Mailed Notice of Value (N.O.V.) Information/History | ||||||||
|---|---|---|---|---|---|---|---|---|
| Year | Date | Market Value | Taxable Market Value | Gross Assessed | Exemption | Net Assessed | ||
|
2026 |
02/06/2026 |
302,000 |
230,098 |
25,310 |
0 |
25,310 |
||
|
2025 |
01/31/2025 |
293,000 |
219,141 |
24,104 |
0 |
24,104 |
||
|
2024 |
01/22/2024 |
281,000 |
208,706 |
22,957 |
0 |
22,957 |
||
|
2023 |
01/23/2023 |
261,000 |
198,768 |
21,864 |
0 |
21,864 |
||
|
2022 |
02/22/2022 |
230,000 |
189,303 |
20,822 |
0 |
20,822 |
||
| Property Building Permit History | |||||||||||
|---|---|---|---|---|---|---|---|---|---|---|---|
| Issued | Permit # | Provided by | Bldg # | Description | Est Construction Cost | Status | |||||
| No Building Permit records returned. | |||||||||||
| Click button on building number to access detailed information: | ||||||
|---|---|---|---|---|---|---|
| Bldg # | Vacant/Improved Land | Bldg Description | Year Built | SqFt | # Stories | |
|
1 |
Improved |
Ranch 1 Story |
1989 |
1,438 |
1 Stories |
|