|
|
|
| Larry Stein Oklahoma County Assessor (405) 713-1200 - Public Access System |
|
|
|
|
|
|
| Real Property Display - Screen Produced 3/12/2026 11:05:28 PM | ||||
|---|---|---|---|---|
| Account: R194801926 | Type: Residential | Location: |
780 S HENNEY RD |
|
| Building Name/Occupant: |
|
CHOCTAW |
||
| Owner Name 1: | BUCHANAN WARREN E & STEPHANIE J |
Parcel PIN#: |
1208-19-480-1926 |
|
| Owner Name 2: | 1/4 section #: |
1208 |
||
| Owner Name 3: | Parent Acct: |
|
||
| Billing Address: | 780 S HENNEY RD | Tax District: |
|
|
| City, State, Zip | CHOCTAW, OK 73020-7162 | School System: |
Choctaw #4 |
|
|
Country: (If noted) |
Land Size: |
2.5000 Acres |
||
|
Land Value: 43,590 |
|
|||
|
Sect 2-T11N-R1W Qtr NW |
UNPLTD PT SEC 02 11N 1W
Block
000
Lot
000
|
|||
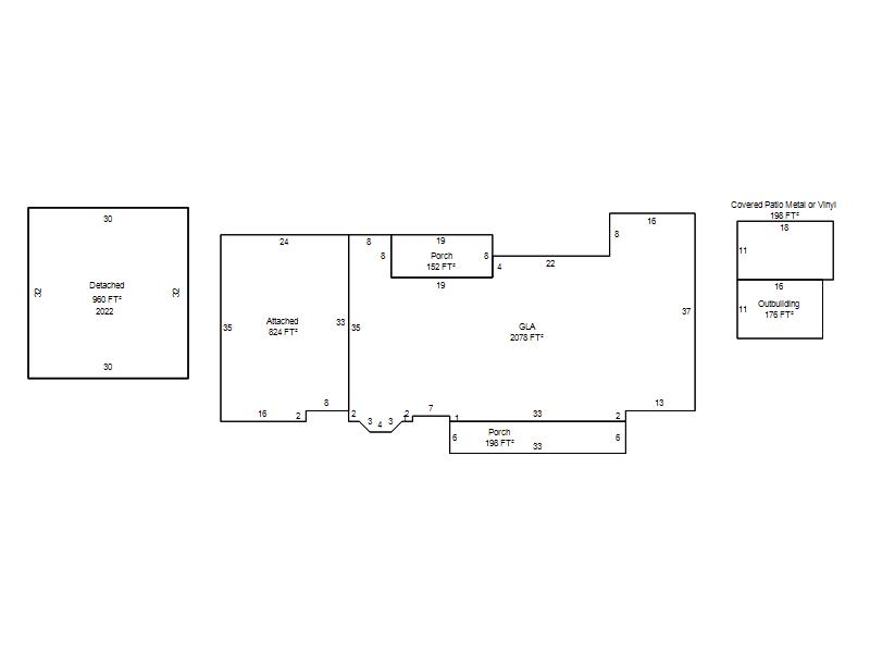
| Full Legal Description: UNPLTD PT SEC 02 11N 1W 000 000 PT NW4 SEC 2 11N 1W BEG SW/C NW4 TH N165.52FT E658.82FT S165.52FT W658.82FT TO BEG SUBJ TO ESMTS OF RECORD |
| Photo & Sketch (if available) | Comp Sales (ordered by relevancy) |
|
||||||||||||||||||
|
||||||||||||||||||||
| Value History (*The County Treasurer 405-713-1300 posts & collects actual tax amounts. Contact information HERE) | |||||||||||||
|---|---|---|---|---|---|---|---|---|---|---|---|---|---|
| Year | Market Value | Taxable Mkt Value | Gross Assessed | Exemption | Net Assessed | Millage | Est. Tax | Tax Savings | |||||
|
2025 |
428,500 |
276,349 |
30,398 |
1,000 |
29,398 |
117.21 |
$3,446 |
$2,079 |
|||||
|
2024 |
413,000 |
268,300 |
29,512 |
1,000 |
28,512 |
116.35 |
$3,317 |
$1,968 |
|||||
|
2023 |
375,000 |
260,486 |
28,652 |
1,000 |
27,652 |
118.06 |
$3,265 |
$1,605 |
|||||
|
2022 |
300,000 |
225,715 |
24,828 |
1,000 |
23,828 |
116.14 |
$2,767 |
$1,065 |
|||||
|
2021 |
269,000 |
219,141 |
24,105 |
1,000 |
23,105 |
116.17 |
$2,684 |
$753 |
|||||
| Property Account Status/Adjustments/Exemptions | ||
|---|---|---|
| Account # | Exemption Description | Amount |
|
R194801926 |
Homestead |
1,000 |
|
R194801926 |
3% Cap Homestead |
0 |
| Property Deed Transaction History (Recorded in the County Clerk's Office) | |||||||
|---|---|---|---|---|---|---|---|
| Date | Type | Book | Page | Price | Grantor | Grantee | |
|
11/20/2002 |
|
Deeds |
$30,000 |
WATKINS MARTY L & TAMMY G |
BUCHANAN WARREN E & STEPHANIE J |
||
|
11/6/2002 |
|
Deeds |
$0 |
WATKINS MARTY L & TAMMY G |
WATKINS MARTY L & TAMMY G |
||
| Last Mailed Notice of Value (N.O.V.) Information/History | ||||||||
|---|---|---|---|---|---|---|---|---|
| Year | Date | Market Value | Taxable Market Value | Gross Assessed | Exemption | Net Assessed | ||
|
2026 |
02/06/2026 |
440,500 |
284,639 |
31,309 |
1,000 |
30,309 |
||
|
2025 |
01/31/2025 |
428,500 |
276,349 |
30,398 |
1,000 |
29,398 |
||
|
2024 |
01/22/2024 |
413,000 |
268,300 |
29,512 |
1,000 |
28,512 |
||
|
2023 |
03/02/2023 |
375,000 |
260,486 |
28,652 |
1,000 |
27,652 |
||
|
2022 |
02/22/2022 |
300,000 |
225,715 |
24,828 |
1,000 |
23,828 |
||
| Property Building Permit History | ||||||
|---|---|---|---|---|---|---|
| Issued | Permit # | Provided by | Bldg # | Description | Est Construction Cost | Status |
|
11/2/2021 |
|
|
1 |
Garage |
|
Inactive |
|
12/22/2004 |
10298376 |
OKLAHOMA CITY |
1 |
Main Dwellin |
2,004 |
Inactive |
| Click button on building number to access detailed information: | ||||||
|---|---|---|---|---|---|---|
| Bldg # | Vacant/Improved Land | Bldg Description | Year Built | SqFt | # Stories | |
|
1 |
Improved |
Ranch 1 Story |
2004 |
2,078 |
1 Stories |
|