|
|
|
| Larry Stein Oklahoma County Assessor (405) 713-1200 - Public Access System |
|
|
|
|
|
|
| Real Property Display - Screen Produced 3/12/2026 11:05:53 PM | ||||
|---|---|---|---|---|
| Account: R194801930 | Type: Residential | Location: |
600 S HENNEY RD |
|
| Building Name/Occupant: |
|
CHOCTAW |
||
| Owner Name 1: | HARTLEY KEVIN F |
Parcel PIN#: |
1208-19-480-1930 |
|
| Owner Name 2: | 1/4 section #: |
1208 |
||
| Owner Name 3: | Parent Acct: |
|
||
| Billing Address: | 600 S HENNEY RD | Tax District: |
|
|
| City, State, Zip | CHOCTAW, OK 73020-7120 | School System: |
Choctaw #4 |
|
|
Country: (If noted) |
Land Size: |
4.2000 Acres |
||
|
Land Value: 53,431 |
|
|||
|
Sect 2-T11N-R1W Qtr NW |
UNPLTD PT SEC 02 11N 1W
Block
000
Lot
000
|
|||
| Full Legal Description: UNPLTD PT NW4 SEC 2 11N 1W BEG 1621.08FT S OF NW/C NW4 TH E658.20 FTS270FT W658.39FT N263.42FT TO BEG CONT 4.03ACRS MORE OR LESSSUBJ TO ESMTS OF RECORD |
| Photo & Sketch (if available) | Comp Sales (ordered by relevancy) |
|
||||||||||||||||||
|
||||||||||||||||||||
| Value History (*The County Treasurer 405-713-1300 posts & collects actual tax amounts. Contact information HERE) | |||||||||||||
|---|---|---|---|---|---|---|---|---|---|---|---|---|---|
| Year | Market Value | Taxable Mkt Value | Gross Assessed | Exemption | Net Assessed | Millage | Est. Tax | Tax Savings | |||||
|
2025 |
290,500 |
159,579 |
17,553 |
1,000 |
16,553 |
117.21 |
$1,940 |
$1,805 |
|||||
|
2024 |
272,000 |
154,932 |
17,042 |
1,000 |
16,042 |
116.35 |
$1,867 |
$1,615 |
|||||
|
2023 |
245,000 |
150,420 |
16,545 |
1,000 |
15,545 |
118.06 |
$1,835 |
$1,346 |
|||||
|
2022 |
220,500 |
146,039 |
16,063 |
1,000 |
15,063 |
116.14 |
$1,750 |
$1,067 |
|||||
|
2021 |
187,000 |
141,786 |
15,596 |
1,000 |
14,596 |
116.17 |
$1,696 |
$694 |
|||||
| Property Account Status/Adjustments/Exemptions | ||
|---|---|---|
| Account # | Exemption Description | Amount |
|
R194801930 |
3% Cap Homestead |
0 |
|
R194801930 |
Homestead |
1,000 |
| Property Deed Transaction History (Recorded in the County Clerk's Office) | ||||||||||
|---|---|---|---|---|---|---|---|---|---|---|
| Date | Type | Book | Page | Price | Grantor | Grantee | ||||
|
3/13/2023 |
|
Deeds |
$0 |
HARTLEY KEVIN & KELLEY R |
HARTLEY KEVIN F |
|||||
|
6/20/2006 |
|
Deeds |
$0 |
HARTLEY KEVIN F OAKES KELLEY R |
HARTLEY KEVIN & KELLEY R |
|||||
|
3/22/2002 |
|
Deeds |
$0 |
SCOTT GEORGE V & KIIKO LIVING TRS |
SCOTT GEORGE V & KIIKO |
|||||
|
3/22/2002 |
|
Deeds |
$89,500 |
SCOTT GEORGE V & KIIKO JOINT LIVING TRUST |
HARTLEY KEVIN F OAKES KELLEY R |
|||||
|
11/19/1998 |
|
Historical |
$0 |
SCOTT GEORGE V |
SCOTT GEORGE V & KIIKO |
|||||
| Last Mailed Notice of Value (N.O.V.) Information/History | ||||||||
|---|---|---|---|---|---|---|---|---|
| Year | Date | Market Value | Taxable Market Value | Gross Assessed | Exemption | Net Assessed | ||
|
2026 |
02/06/2026 |
293,000 |
164,366 |
18,079 |
1,000 |
17,079 |
||
|
2025 |
01/31/2025 |
290,500 |
159,579 |
17,553 |
1,000 |
16,553 |
||
|
2024 |
01/22/2024 |
272,000 |
154,932 |
17,042 |
1,000 |
16,042 |
||
|
2023 |
01/23/2023 |
245,000 |
150,420 |
16,545 |
1,000 |
15,545 |
||
|
2022 |
02/22/2022 |
220,500 |
146,039 |
16,063 |
1,000 |
15,063 |
||
| Property Building Permit History | |||||||||||
|---|---|---|---|---|---|---|---|---|---|---|---|
| Issued | Permit # | Provided by | Bldg # | Description | Est Construction Cost | Status | |||||
| No Building Permit records returned. | |||||||||||
| Click button on building number to access detailed information: | ||||||
|---|---|---|---|---|---|---|
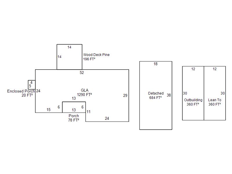
| Bldg # | Vacant/Improved Land | Bldg Description | Year Built | SqFt | # Stories | |
|
1 |
Improved |
Ranch 1 Story |
1990 |
1,290 |
1 Stories |
|