|
|
|
| Larry Stein Oklahoma County Assessor (405) 713-1200 - Public Access System |
|
|
|
|
|
|
| Real Property Display - Screen Produced 4/5/2026 4:58:05 AM | ||||
|---|---|---|---|---|
| Account: R094553150 | Type: Residential | Location: |
115 SE 41ST ST |
|
| Building Name/Occupant: |
|
OKLAHOMA CITY |
||
| Owner Name 1: | URIBE CONTRERAS ARMANDO |
Parcel PIN#: |
1659-09-455-3150 |
|
| Owner Name 2: | 1/4 section #: |
1659 |
||
| Owner Name 3: | Parent Acct: |
|
||
| Billing Address: | 115 SE 41ST ST | Tax District: |
|
|
| City, State, Zip | OKLAHOMA CITY, OK 73129-2825 | School System: |
Oklahoma City #89 |
|
|
Country: (If noted) |
Land Size: |
0.1607 Acres |
||
|
Land Value: 11,900 |
|
|||
|
Sect 15-T11N-R3W Qtr SW |
SHIELDS SO OKLA CITY
Block
054
Lot
000
|
|||
| Full Legal Description: SHIELDS SO OKLA CITY 054 000 LOTS 37 & 38 |
| Photo & Sketch (if available) | Comp Sales (ordered by relevancy) |
|
||||||||||||||||||
|
||||||||||||||||||||
| Value History (*The County Treasurer 405-713-1300 posts & collects actual tax amounts. Contact information HERE) | |||||||||||||
|---|---|---|---|---|---|---|---|---|---|---|---|---|---|
| Year | Market Value | Taxable Mkt Value | Gross Assessed | Exemption | Net Assessed | Millage | Est. Tax | Tax Savings | |||||
|
2026 |
90,500 |
60,301 |
6,632 |
0 |
6,632 |
119.02 |
$789 |
$395 |
|||||
|
2025 |
81,000 |
57,430 |
6,316 |
0 |
6,316 |
119.02 |
$752 |
$309 |
|||||
|
2024 |
73,500 |
54,696 |
6,016 |
0 |
6,016 |
119.70 |
$720 |
$248 |
|||||
|
2023 |
65,000 |
52,092 |
5,729 |
0 |
5,729 |
118.33 |
$678 |
$168 |
|||||
|
2022 |
59,500 |
49,612 |
5,456 |
0 |
5,456 |
112.69 |
$615 |
$123 |
|||||
| Property Account Status/Adjustments/Exemptions | ||
|---|---|---|
| Account # | Exemption Description | Amount |
|
R094553150 |
5% Capped Account |
0 |
| Property Deed Transaction History (Recorded in the County Clerk's Office) | |||||||
|---|---|---|---|---|---|---|---|
| Date | Type | Book | Page | Price | Grantor | Grantee | |
|
4/18/2007 |
|
Deeds |
$46,000 |
KYSER BILLY R & MARIA A |
URIBE CONTRERAS ARMANDO |
||
|
4/22/1999 |
|
Historical |
$0 |
HAMILTON ILENE A |
SOUZA-HORN JO |
||
|
3/15/1999 |
|
Historical |
$15,000 |
SOUZA-HORN JO |
KYSER BILLY R & MARIA A |
||
|
11/11/1911 |
|
Historical |
$0 |
|
HAMILTON ILENE A |
||
| Last Mailed Notice of Value (N.O.V.) Information/History | ||||||||
|---|---|---|---|---|---|---|---|---|
| Year | Date | Market Value | Taxable Market Value | Gross Assessed | Exemption | Net Assessed | ||
|
2026 |
02/06/2026 |
90,500 |
60,301 |
6,632 |
0 |
6,632 |
||
|
2025 |
01/31/2025 |
81,000 |
57,430 |
6,316 |
0 |
6,316 |
||
|
2024 |
01/22/2024 |
73,500 |
54,696 |
6,016 |
0 |
6,016 |
||
|
2023 |
01/23/2023 |
65,000 |
52,092 |
5,729 |
0 |
5,729 |
||
|
2022 |
02/22/2022 |
59,500 |
49,612 |
5,456 |
0 |
5,456 |
||
| Property Building Permit History | |||||||||||
|---|---|---|---|---|---|---|---|---|---|---|---|
| Issued | Permit # | Provided by | Bldg # | Description | Est Construction Cost | Status | |||||
| No Building Permit records returned. | |||||||||||
| Click button on building number to access detailed information: | ||||||
|---|---|---|---|---|---|---|
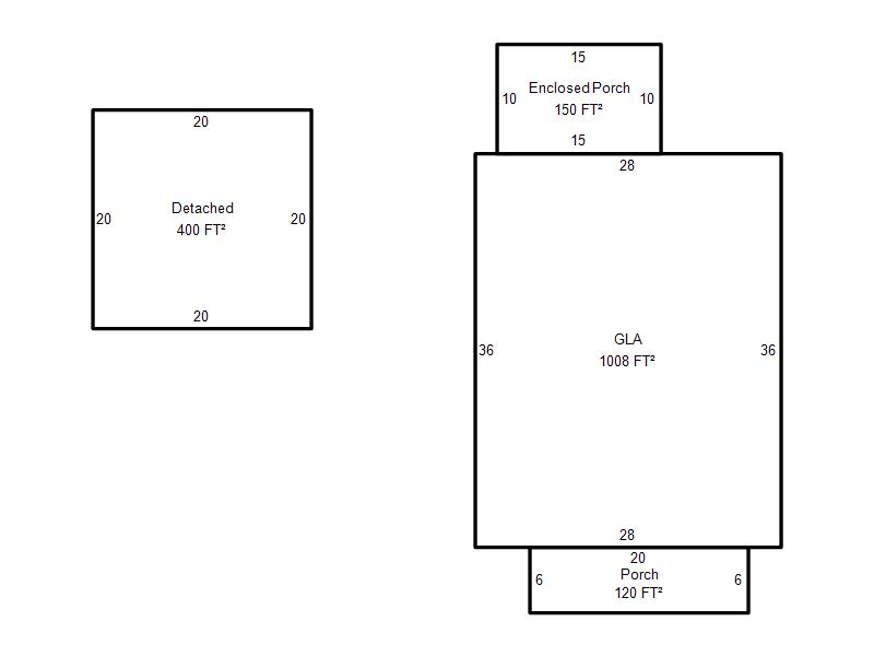
| Bldg # | Vacant/Improved Land | Bldg Description | Year Built | SqFt | # Stories | |
|
1 |
Improved |
Ranch 1 Story |
1918 |
1,008 |
1 Stories |
|