|
|
|
| Larry Stein Oklahoma County Assessor (405) 713-1200 - Public Access System |
|
|
|
|
|
|
| Real Property Display - Screen Produced 3/16/2026 9:23:51 PM | ||||
|---|---|---|---|---|
| Account: R100940225 | Type: Residential | Location: |
515 SW 30TH ST |
|
| Building Name/Occupant: |
|
OKLAHOMA CITY |
||
| Owner Name 1: | GARCIA MA DEL CARMEN |
Parcel PIN#: |
1664-10-094-0225 |
|
| Owner Name 2: | 1/4 section #: |
1664 |
||
| Owner Name 3: | Parent Acct: |
|
||
| Billing Address: | 515 SW 30TH ST | Tax District: |
|
|
| City, State, Zip | OKLAHOMA CITY, OK 73109 | School System: |
Oklahoma City #89 |
|
|
Country: (If noted) |
Land Size: |
0.1607 Acres |
||
|
Land Value: 16,450 |
|
|||
|
Sect 16-T11N-R3W Qtr NW |
MARKLAND HEIGHTS ADD
Block
001
Lot
000
|
|||
| Full Legal Description: MARKLAND HEIGHTS ADD 001 000 LOTS 43 & 44 |
| Photo & Sketch (if available) | Comp Sales (ordered by relevancy) |
|
||||||||||||||||||
|
||||||||||||||||||||
| Value History (*The County Treasurer 405-713-1300 posts & collects actual tax amounts. Contact information HERE) | |||||||||||||
|---|---|---|---|---|---|---|---|---|---|---|---|---|---|
| Year | Market Value | Taxable Mkt Value | Gross Assessed | Exemption | Net Assessed | Millage | Est. Tax | Tax Savings | |||||
|
2025 |
109,000 |
72,628 |
7,988 |
0 |
7,988 |
119.02 |
$951 |
$476 |
|||||
|
2024 |
103,500 |
69,170 |
7,608 |
0 |
7,608 |
119.70 |
$911 |
$452 |
|||||
|
2023 |
88,500 |
65,877 |
7,246 |
0 |
7,246 |
118.33 |
$857 |
$294 |
|||||
|
2022 |
78,500 |
62,740 |
6,901 |
0 |
6,901 |
112.69 |
$778 |
$195 |
|||||
|
2021 |
67,500 |
58,800 |
6,468 |
0 |
6,468 |
112.29 |
$726 |
$107 |
|||||
| Property Account Status/Adjustments/Exemptions | ||
|---|---|---|
| Account # | Exemption Description | Amount |
|
R100940225 |
5% Capped Account |
0 |
| Property Deed Transaction History (Recorded in the County Clerk's Office) | ||||||||||
|---|---|---|---|---|---|---|---|---|---|---|
| Date | Type | Book | Page | Price | Grantor | Grantee | ||||
|
1/12/2018 |
|
Other |
$0 |
LITKE INVESTMENTS LLC |
GARCIA MA DEL CARMEN |
|||||
|
12/7/2017 |
|
Deeds |
$37,500 |
VONTERSCH MATTHEW A & IVY Y |
LITKE INVESTMENTS LLC |
|||||
|
3/23/2007 |
|
Deeds |
$50,000 |
SALDANA ARMANDO HOLGUIN FELIPA L |
VONTERSCH MATTHEW A & IVY Y |
|||||
|
10/27/1999 |
|
Deeds |
$30,000 |
NEIGHBORHOOD HOUSING SERVICES |
SALDANA ARMANDO HOLGUIN FELIPA L |
|||||
|
12/24/1997 |
|
Historical |
$0 |
CITY OF OKLAHOMA CITY |
NEIGHBORHOOD HOUSING SERVICES |
|||||
| Last Mailed Notice of Value (N.O.V.) Information/History | ||||||||
|---|---|---|---|---|---|---|---|---|
| Year | Date | Market Value | Taxable Market Value | Gross Assessed | Exemption | Net Assessed | ||
|
2026 |
02/06/2026 |
104,500 |
76,259 |
8,388 |
0 |
8,388 |
||
|
2025 |
01/31/2025 |
109,000 |
72,628 |
7,988 |
0 |
7,988 |
||
|
2024 |
01/22/2024 |
103,500 |
69,170 |
7,608 |
0 |
7,608 |
||
|
2023 |
01/23/2023 |
88,500 |
65,877 |
7,246 |
0 |
7,246 |
||
|
2022 |
02/22/2022 |
78,500 |
62,740 |
6,901 |
0 |
6,901 |
||
| Property Building Permit History | |||||||||||
|---|---|---|---|---|---|---|---|---|---|---|---|
| Issued | Permit # | Provided by | Bldg # | Description | Est Construction Cost | Status | |||||
| No Building Permit records returned. | |||||||||||
| Click button on building number to access detailed information: | ||||||
|---|---|---|---|---|---|---|
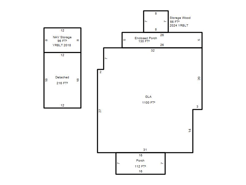
| Bldg # | Vacant/Improved Land | Bldg Description | Year Built | SqFt | # Stories | |
|
1 |
Improved |
Ranch 1 Story |
1937 |
1,100 |
1 Stories |
|