|
|
|
| Larry Stein Oklahoma County Assessor (405) 713-1200 - Public Access System |
|
|
|
|
|
|
| Real Property Display - Screen Produced 3/16/2026 9:23:52 PM | ||||
|---|---|---|---|---|
| Account: R100940855 | Type: Commercial | Location: |
800 SW 29TH ST |
|
| Building Name/Occupant: |
SOONER SQUARE / CARNICERIA LA HACIENNDA / EL JALISCIENSE |
OKLAHOMA CITY |
||
| Owner Name 1: | ZAMORA GREGORIO O |
Parcel PIN#: |
1664-10-094-0855 |
|
| Owner Name 2: | 1/4 section #: |
1664 |
||
| Owner Name 3: | Parent Acct: |
|
||
| Billing Address: | 800 SW 29TH ST | Tax District: |
|
|
| City, State, Zip | OKLAHOMA CITY, OK 73109-2219 | School System: |
Oklahoma City #89 |
|
|
Country: (If noted) |
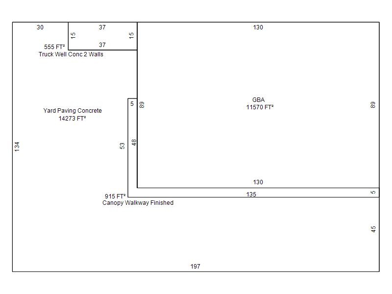
Land Size: |
28,000.0000 Square Feet |
||
|
Land Value: 98,000 |
|
|||
|
Sect 16-T11N-R3W Qtr NW |
MARKLAND HEIGHTS ADD
Block
004
Lot
000
|
|||
| Full Legal Description: MARKLAND HEIGHTS ADD 004 000 LOTS 1 THRU 8 |
| No comparable sales report available. | ||||||||||||||||||||||
|
||||||||||||||||||||||
| Value History (*The County Treasurer 405-713-1300 posts & collects actual tax amounts. Contact information HERE) | |||||||||||||
|---|---|---|---|---|---|---|---|---|---|---|---|---|---|
| Year | Market Value | Taxable Mkt Value | Gross Assessed | Exemption | Net Assessed | Millage | Est. Tax | Tax Savings | |||||
|
2025 |
1,158,444 |
904,527 |
99,497 |
0 |
99,497 |
119.02 |
$11,842 |
$3,324 |
|||||
|
2024 |
1,158,444 |
861,455 |
94,759 |
0 |
94,759 |
119.70 |
$11,343 |
$3,910 |
|||||
|
2023 |
1,158,444 |
820,434 |
90,247 |
0 |
90,247 |
118.33 |
$10,679 |
$4,400 |
|||||
|
2022 |
1,073,515 |
781,366 |
85,948 |
0 |
85,948 |
112.69 |
$9,686 |
$3,621 |
|||||
|
2021 |
1,073,515 |
744,159 |
81,856 |
0 |
81,856 |
112.29 |
$9,192 |
$4,068 |
|||||
| Property Account Status/Adjustments/Exemptions | ||
|---|---|---|
| Account # | Exemption Description | Amount |
|
R100940855 |
5% Capped Account |
0 |
| Property Deed Transaction History (Recorded in the County Clerk's Office) | |||||||
|---|---|---|---|---|---|---|---|
| Date | Type | Book | Page | Price | Grantor | Grantee | |
|
5/30/2007 |
|
Deeds |
$750,000 |
SOONER BEAUTY SUPPLY INC |
ZAMORA GREGORIO O |
||
|
5/26/1988 |
|
Historical |
$0 |
JOHNSON JOHN H |
SOONER BEAUTY SUPPLY INC |
||
|
1/1/1978 |
|
Historical |
$0 |
|
JOHNSON JOHN H |
||
| Last Mailed Notice of Value (N.O.V.) Information/History | ||||||||
|---|---|---|---|---|---|---|---|---|
| Year | Date | Market Value | Taxable Market Value | Gross Assessed | Exemption | Net Assessed | ||
|
2025 |
03/14/2025 |
1,158,444 |
904,527 |
99,497 |
0 |
99,497 |
||
|
2024 |
03/12/2024 |
1,158,444 |
861,455 |
94,759 |
0 |
94,759 |
||
|
2023 |
03/13/2023 |
1,158,444 |
820,434 |
90,247 |
0 |
90,247 |
||
|
2022 |
03/09/2022 |
1,073,515 |
781,366 |
85,948 |
0 |
85,948 |
||
|
2021 |
03/22/2021 |
1,073,515 |
744,159 |
81,857 |
0 |
81,857 |
||
| Property Building Permit History | ||||||
|---|---|---|---|---|---|---|
| Issued | Permit # | Provided by | Bldg # | Description | Est Construction Cost | Status |
|
8/16/2002 |
10201577 |
OKLAHOMA CITY |
1 |
Remodeled |
20,000 |
Inactive |
| Click button on building number to access detailed information: | ||||||
|---|---|---|---|---|---|---|
| Bldg # | Vacant/Improved Land | Bldg Description | Year Built | SqFt | # Stories | |
|
1 |
Improved |
Neighborhood Shopping Center |
1983 |
11,570 |
1 Stories |
|