|
|
|
| Larry Stein Oklahoma County Assessor (405) 713-1200 - Public Access System |
|
|
|
|
|
|
| Real Property Display - Screen Produced 3/16/2026 9:23:51 PM | ||||
|---|---|---|---|---|
| Account: R100941350 | Type: Residential | Location: |
3103 S SHARTEL AVE |
|
| Building Name/Occupant: |
|
OKLAHOMA CITY |
||
| Owner Name 1: | RIVERSIDE INVESTMENTS LLC |
Parcel PIN#: |
1664-10-094-1350 |
|
| Owner Name 2: | 1/4 section #: |
1664 |
||
| Owner Name 3: | Parent Acct: |
|
||
| Billing Address: | 2400 SE 12TH ST | Tax District: |
|
|
| City, State, Zip | OKLAHOMA CITY, OK 73129 | School System: |
Oklahoma City #89 |
|
|
Country: (If noted) |
Land Size: |
0.1607 Acres |
||
|
Land Value: 16,450 |
|
|||
|
Sect 16-T11N-R3W Qtr NW |
MARKLAND HEIGHTS ADD
Block
006
Lot
000
|
|||
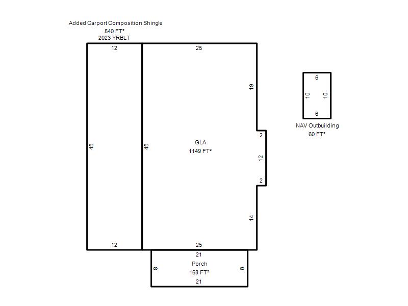
| Full Legal Description: MARKLAND HEIGHTS ADD 006 000 LOTS 3 & 4 |
| Photo & Sketch (if available) | Comp Sales (ordered by relevancy) |
|
||||||||||||||||||
|
||||||||||||||||||||
| Value History (*The County Treasurer 405-713-1300 posts & collects actual tax amounts. Contact information HERE) | |||||||||||||
|---|---|---|---|---|---|---|---|---|---|---|---|---|---|
| Year | Market Value | Taxable Mkt Value | Gross Assessed | Exemption | Net Assessed | Millage | Est. Tax | Tax Savings | |||||
|
2025 |
92,500 |
84,892 |
9,337 |
0 |
9,337 |
119.02 |
$1,111 |
$100 |
|||||
|
2024 |
89,000 |
80,850 |
8,893 |
0 |
8,893 |
119.70 |
$1,065 |
$107 |
|||||
|
2023 |
77,000 |
77,000 |
8,470 |
0 |
8,470 |
118.33 |
$1,002 |
$0 |
|||||
|
2022 |
68,000 |
55,125 |
6,063 |
0 |
6,063 |
112.69 |
$683 |
$160 |
|||||
|
2021 |
58,000 |
52,500 |
5,775 |
0 |
5,775 |
112.29 |
$648 |
$68 |
|||||
| Property Account Status/Adjustments/Exemptions | ||
|---|---|---|
| Account # | Exemption Description | Amount |
|
R100941350 |
5% Capped Account |
0 |
| Property Deed Transaction History (Recorded in the County Clerk's Office) | ||||||||||
|---|---|---|---|---|---|---|---|---|---|---|
| Date | Type | Book | Page | Price | Grantor | Grantee | ||||
|
12/8/2022 |
|
Hmstd Off & |
$0 |
VARGAS ELIZABETH |
BANUELAS PEDRO O |
|||||
|
12/5/2022 |
|
Deeds |
$77,000 |
BANUELAS PEDRO O |
RIVERSIDE INVESTMENTS LLC |
|||||
|
3/6/2009 |
|
Deeds |
$0 |
VARGAS ELIZABETH |
VARGAS ELIZABETH |
|||||
|
6/29/2004 |
|
Deeds |
$28,000 |
RAK INVESTMENTS INC |
VARGAS ELIZABETH |
|||||
|
2/27/2004 |
|
Deeds |
$17,000 |
ASSOCIATES FIRST CAPITAL CORP |
RAK INVESTMENTS INC |
|||||
| Last Mailed Notice of Value (N.O.V.) Information/History | ||||||||
|---|---|---|---|---|---|---|---|---|
| Year | Date | Market Value | Taxable Market Value | Gross Assessed | Exemption | Net Assessed | ||
|
2026 |
02/06/2026 |
92,000 |
89,136 |
9,804 |
0 |
9,804 |
||
|
2025 |
01/31/2025 |
92,500 |
84,892 |
9,337 |
0 |
9,337 |
||
|
2024 |
01/22/2024 |
89,000 |
80,850 |
8,893 |
0 |
8,893 |
||
|
2023 |
01/23/2023 |
77,000 |
77,000 |
8,470 |
0 |
8,470 |
||
|
2022 |
02/22/2022 |
68,000 |
55,125 |
6,063 |
0 |
6,063 |
||
| Property Building Permit History | |||||||||||
|---|---|---|---|---|---|---|---|---|---|---|---|
| Issued | Permit # | Provided by | Bldg # | Description | Est Construction Cost | Status | |||||
| No Building Permit records returned. | |||||||||||
| Click button on building number to access detailed information: | ||||||
|---|---|---|---|---|---|---|
| Bldg # | Vacant/Improved Land | Bldg Description | Year Built | SqFt | # Stories | |
|
1 |
Improved |
Ranch 1 Story |
1921 |
1,149 |
1 Stories |
|