|
|
|
| Larry Stein Oklahoma County Assessor (405) 713-1200 - Public Access System |
|
|
|
|
|
|
| Real Property Display - Screen Produced 3/26/2026 2:19:07 PM | ||||
|---|---|---|---|---|
| Account: R104467200 | Type: Residential | Location: |
3217 S DOUGLAS AVE |
|
| Building Name/Occupant: |
|
OKLAHOMA CITY |
||
| Owner Name 1: | JIMENEZ RENTALS LLC |
Parcel PIN#: |
1665-10-446-7200 |
|
| Owner Name 2: | 1/4 section #: |
1665 |
||
| Owner Name 3: | Parent Acct: |
|
||
| Billing Address: | 7758 EL RITO WAY | Tax District: |
|
|
| City, State, Zip | SACRAMENTO, CA 95831-5405 | School System: |
Oklahoma City #89 |
|
|
Country: (If noted) |
Land Size: |
0.1607 Acres |
||
|
Land Value: 12,600 |
|
|||
|
Sect 17-T11N-R3W Qtr NE |
ACADEMY HEIGHTS ADD
Block
003
Lot
000
|
|||
| Full Legal Description: ACADEMY HEIGHTS ADD 003 000 LOTS 9 & 10 |
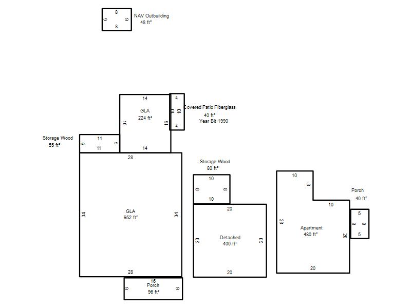
| Photo & Sketch (if available) | Comp Sales (ordered by relevancy) |
|
||||||||||||||||||
|
||||||||||||||||||||
| Value History (*The County Treasurer 405-713-1300 posts & collects actual tax amounts. Contact information HERE) | |||||||||||||
|---|---|---|---|---|---|---|---|---|---|---|---|---|---|
| Year | Market Value | Taxable Mkt Value | Gross Assessed | Exemption | Net Assessed | Millage | Est. Tax | Tax Savings | |||||
|
2026 |
107,000 |
83,754 |
9,212 |
0 |
9,212 |
119.02 |
$1,097 |
$304 |
|||||
|
2025 |
110,500 |
79,766 |
8,773 |
0 |
8,773 |
119.02 |
$1,044 |
$402 |
|||||
|
2024 |
100,000 |
75,968 |
8,355 |
0 |
8,355 |
119.70 |
$1,000 |
$316 |
|||||
|
2023 |
89,000 |
72,351 |
7,957 |
0 |
7,957 |
118.33 |
$942 |
$217 |
|||||
|
2022 |
85,000 |
68,906 |
7,578 |
0 |
7,578 |
112.69 |
$854 |
$199 |
|||||
| Property Account Status/Adjustments/Exemptions | ||
|---|---|---|
| Account # | Exemption Description | Amount |
|
R104467200 |
5% Capped Account |
0 |
| Property Deed Transaction History (Recorded in the County Clerk's Office) | |||||||
|---|---|---|---|---|---|---|---|
| Date | Type | Book | Page | Price | Grantor | Grantee | |
|
6/29/2012 |
|
Hmstd Off & |
$0 |
JIMENEZ RAUL JR & EMMA M |
JIMENEZ RENTALS LLC |
||
|
9/19/2007 |
|
Deeds |
$44,000 |
CARTER CARSON |
JIMENEZ RAUL & EMMA M |
||
|
1/26/2004 |
|
Deeds |
$16,000 |
NATION MARK D C/O DORIS J NATION |
CARTER CARSON |
||
|
8/13/1997 |
|
Historical |
$8,000 |
STAPLES CORENE |
NATION MARK D |
||
|
5/1/1979 |
|
Historical |
$0 |
|
STAPLES CORENE |
||
| Last Mailed Notice of Value (N.O.V.) Information/History | ||||||||
|---|---|---|---|---|---|---|---|---|
| Year | Date | Market Value | Taxable Market Value | Gross Assessed | Exemption | Net Assessed | ||
|
2026 |
02/06/2026 |
107,000 |
83,754 |
9,212 |
0 |
9,212 |
||
|
2025 |
01/31/2025 |
110,500 |
79,766 |
8,773 |
0 |
8,773 |
||
|
2024 |
01/22/2024 |
100,000 |
75,968 |
8,355 |
0 |
8,355 |
||
|
2023 |
01/23/2023 |
89,000 |
72,351 |
7,957 |
0 |
7,957 |
||
|
2022 |
02/22/2022 |
85,000 |
68,906 |
7,578 |
0 |
7,578 |
||
| Property Building Permit History | |||||||||||
|---|---|---|---|---|---|---|---|---|---|---|---|
| Issued | Permit # | Provided by | Bldg # | Description | Est Construction Cost | Status | |||||
| No Building Permit records returned. | |||||||||||
| Click button on building number to access detailed information: | ||||||
|---|---|---|---|---|---|---|
| Bldg # | Vacant/Improved Land | Bldg Description | Year Built | SqFt | # Stories | |
|
1 |
Improved |
Ranch 1 Story |
1940 |
1,176 |
1 Stories |
|