|
|
|
| Larry Stein Oklahoma County Assessor (405) 713-1200 - Public Access System |
|
|
|
|
|
|
| Real Property Display - Screen Produced 3/26/2026 2:19:58 PM | ||||
|---|---|---|---|---|
| Account: R104469100 | Type: Residential | Location: |
3321 S DOUGLAS AVE |
|
| Building Name/Occupant: |
|
OKLAHOMA CITY |
||
| Owner Name 1: | MONARREZ SAUL G DIAZ |
Parcel PIN#: |
1665-10-446-9100 |
|
| Owner Name 2: | 1/4 section #: |
1665 |
||
| Owner Name 3: | Parent Acct: |
|
||
| Billing Address: | 3321 S DOUGLAS AVE | Tax District: |
|
|
| City, State, Zip | OKLAHOMA CITY, OK 73109-2731 | School System: |
Oklahoma City #89 |
|
|
Country: (If noted) |
Land Size: |
0.1607 Acres |
||
|
Land Value: 12,600 |
|
|||
|
Sect 17-T11N-R3W Qtr NE |
ACADEMY HEIGHTS ADD
Block
005
Lot
000
|
|||
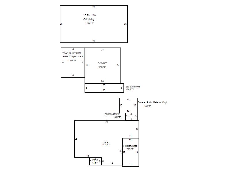
| Full Legal Description: ACADEMY HEIGHTS ADD 005 000 LOTS 11 & 12 |
| Photo & Sketch (if available) | Comp Sales (ordered by relevancy) |
|
||||||||||||||||||
|
||||||||||||||||||||
| Value History (*The County Treasurer 405-713-1300 posts & collects actual tax amounts. Contact information HERE) | |||||||||||||
|---|---|---|---|---|---|---|---|---|---|---|---|---|---|
| Year | Market Value | Taxable Mkt Value | Gross Assessed | Exemption | Net Assessed | Millage | Est. Tax | Tax Savings | |||||
|
2026 |
121,500 |
54,816 |
6,029 |
0 |
6,029 |
119.02 |
$718 |
$873 |
|||||
|
2025 |
118,000 |
52,206 |
5,742 |
0 |
5,742 |
119.02 |
$683 |
$861 |
|||||
|
2024 |
106,500 |
49,720 |
5,468 |
0 |
5,468 |
119.70 |
$655 |
$748 |
|||||
|
2023 |
93,500 |
47,353 |
5,208 |
0 |
5,208 |
118.33 |
$616 |
$601 |
|||||
|
2022 |
45,099 |
45,099 |
4,960 |
0 |
4,960 |
112.69 |
$559 |
$0 |
|||||
| Property Account Status/Adjustments/Exemptions | ||
|---|---|---|
| Account # | Exemption Description | Amount |
|
R104469100 |
5% Capped Account |
0 |
| Property Deed Transaction History (Recorded in the County Clerk's Office) | |||||||
|---|---|---|---|---|---|---|---|
| Date | Type | Book | Page | Price | Grantor | Grantee | |
|
8/28/2014 |
|
Deeds |
$45,000 |
EMERY RONNIE E |
MONARREZ SAUL G DIAZ |
||
|
4/16/2003 |
|
Deeds |
$47,500 |
MCGUIRE GERALD D & M |
EMERY RONNIE E |
||
|
11/11/1911 |
|
Historical |
$0 |
|
MCGUIRE GERALD D & M |
||
| Last Mailed Notice of Value (N.O.V.) Information/History | ||||||
|---|---|---|---|---|---|---|
| Year | Date | Market Value | Taxable Market Value | Gross Assessed | Exemption | Net Assessed |
|
2026 |
02/06/2026 |
121,500 |
54,816 |
6,029 |
0 |
6,029 |
|
2025 |
01/31/2025 |
118,000 |
52,206 |
5,742 |
0 |
5,742 |
|
2024 |
01/22/2024 |
106,500 |
49,720 |
5,468 |
0 |
5,468 |
|
2023 |
01/23/2023 |
93,500 |
47,353 |
5,208 |
0 |
5,208 |
|
2014 |
04/02/2014 |
55,560 |
52,201 |
5,742 |
0 |
5,742 |
| Property Building Permit History | ||||||
|---|---|---|---|---|---|---|
| Issued | Permit # | Provided by | Bldg # | Description | Est Construction Cost | Status |
|
5/28/1999 |
10202521 |
OKLAHOMA CITY |
1 |
Carport |
1,500 |
Inactive |
| Click button on building number to access detailed information: | ||||||
|---|---|---|---|---|---|---|
| Bldg # | Vacant/Improved Land | Bldg Description | Year Built | SqFt | # Stories | |
|
1 |
Improved |
Ranch 1 Story |
1946 |
1,002 |
1 Stories |
|