|
|
|
| Larry Stein Oklahoma County Assessor (405) 713-1200 - Public Access System |
|
|
|
|
|
|
| Real Property Display - Screen Produced 3/26/2026 2:19:58 PM | ||||
|---|---|---|---|---|
| Account: R104469500 | Type: Residential | Location: |
3509 S DOUGLAS AVE |
|
| Building Name/Occupant: |
|
OKLAHOMA CITY |
||
| Owner Name 1: | CARPENTER J DEAN & CHERYL J TRS |
Parcel PIN#: |
1665-10-446-9500 |
|
| Owner Name 2: | CARPENTER FAMILY TRUST | 1/4 section #: |
1665 |
|
| Owner Name 3: | Parent Acct: |
|
||
| Billing Address: | 9160 PRAIRIE VIEW LN | Tax District: |
|
|
| City, State, Zip | EL RENO, OK 73036-8876 | School System: |
Oklahoma City #89 |
|
|
Country: (If noted) |
Land Size: |
0.1607 Acres |
||
|
Land Value: 12,600 |
|
|||
|
Sect 17-T11N-R3W Qtr NE |
ACADEMY HEIGHTS ADD
Block
007
Lot
000
|
|||
| Full Legal Description: ACADEMY HEIGHTS ADD 007 000 LOTS 5 & 6 |
| Photo & Sketch (if available) | Comp Sales (ordered by relevancy) |
|
||||||||||||||||||
|
||||||||||||||||||||
| Value History (*The County Treasurer 405-713-1300 posts & collects actual tax amounts. Contact information HERE) | |||||||||||||
|---|---|---|---|---|---|---|---|---|---|---|---|---|---|
| Year | Market Value | Taxable Mkt Value | Gross Assessed | Exemption | Net Assessed | Millage | Est. Tax | Tax Savings | |||||
|
2026 |
75,500 |
60,972 |
6,706 |
0 |
6,706 |
119.02 |
$798 |
$190 |
|||||
|
2025 |
76,000 |
58,069 |
6,387 |
0 |
6,387 |
119.02 |
$760 |
$235 |
|||||
|
2024 |
70,000 |
55,304 |
6,082 |
0 |
6,082 |
119.70 |
$728 |
$194 |
|||||
|
2023 |
64,000 |
52,671 |
5,792 |
0 |
5,792 |
118.33 |
$686 |
$147 |
|||||
|
2022 |
60,000 |
50,163 |
5,517 |
0 |
5,517 |
112.69 |
$622 |
$122 |
|||||
| Property Account Status/Adjustments/Exemptions | ||
|---|---|---|
| Account # | Exemption Description | Amount |
|
R104469500 |
5% Capped Account |
0 |
| Property Deed Transaction History (Recorded in the County Clerk's Office) | ||||||||||
|---|---|---|---|---|---|---|---|---|---|---|
| Date | Type | Book | Page | Price | Grantor | Grantee | ||||
|
10/13/2008 |
|
Deeds |
$0 |
CARPENTER J DEAN & CHERYL J |
CARPENTER J DEAN & CHERYL J TRS |
|||||
|
2/11/2002 |
|
Deeds |
$18,000 |
DAVIS WILLIAM L & BARBARA SUE |
CARPENTER J DEAN & CHERYL |
|||||
|
8/20/1999 |
|
Deeds |
$0 |
DAVIS LEROY |
DAVIS LEROY |
|||||
|
8/20/1999 |
|
Deeds |
$0 |
DAVIS LEROY DAVIS WILLIAM L & BARBARA S |
DAVIS WILLIAM L & BARBARA SUE |
|||||
|
1/15/1999 |
|
Historical |
$0 |
DAVIS LEROY |
DAVIS LEROY |
|||||
| Last Mailed Notice of Value (N.O.V.) Information/History | ||||||||
|---|---|---|---|---|---|---|---|---|
| Year | Date | Market Value | Taxable Market Value | Gross Assessed | Exemption | Net Assessed | ||
|
2026 |
02/06/2026 |
75,500 |
60,972 |
6,706 |
0 |
6,706 |
||
|
2025 |
01/31/2025 |
76,000 |
58,069 |
6,387 |
0 |
6,387 |
||
|
2024 |
01/22/2024 |
70,000 |
55,304 |
6,082 |
0 |
6,082 |
||
|
2023 |
01/23/2023 |
64,000 |
52,671 |
5,792 |
0 |
5,792 |
||
|
2022 |
02/22/2022 |
60,000 |
50,163 |
5,517 |
0 |
5,517 |
||
| Property Building Permit History | |||||||||||
|---|---|---|---|---|---|---|---|---|---|---|---|
| Issued | Permit # | Provided by | Bldg # | Description | Est Construction Cost | Status | |||||
| No Building Permit records returned. | |||||||||||
| Click button on building number to access detailed information: | ||||||
|---|---|---|---|---|---|---|
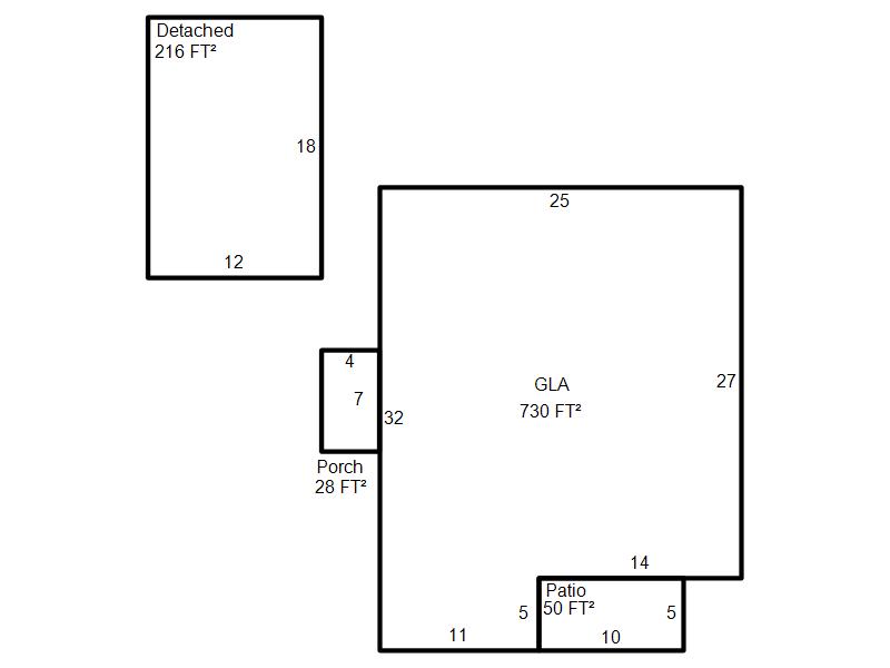
| Bldg # | Vacant/Improved Land | Bldg Description | Year Built | SqFt | # Stories | |
|
1 |
Improved |
Ranch 1 Story |
1947 |
730 |
1 Stories |
|