|
|
|
| Larry Stein Oklahoma County Assessor (405) 713-1200 - Public Access System |
|
|
|
|
|
|
| Real Property Display - Screen Produced 3/28/2026 5:55:54 AM | ||||
|---|---|---|---|---|
| Account: R104682000 | Type: Residential | Location: |
1212 SW 33RD ST |
|
| Building Name/Occupant: |
|
OKLAHOMA CITY |
||
| Owner Name 1: | ISAACS TERRY & SANDRA |
Parcel PIN#: |
1665-10-468-2000 |
|
| Owner Name 2: | ISAACS TERRY W JR | 1/4 section #: |
1665 |
|
| Owner Name 3: | ISAACS DANIEL | Parent Acct: |
|
|
| Billing Address: | 3017 SW 26TH ST | Tax District: |
|
|
| City, State, Zip | OKLAHOMA CITY, OK 73108 | School System: |
Oklahoma City #89 |
|
|
Country: (If noted) |
Land Size: |
0.1550 Acres |
||
|
Land Value: 12,150 |
|
|||
|
Sect 17-T11N-R3W Qtr NE |
COLLIVER HEIGHTS ADD
Block
000
Lot
000
|
|||
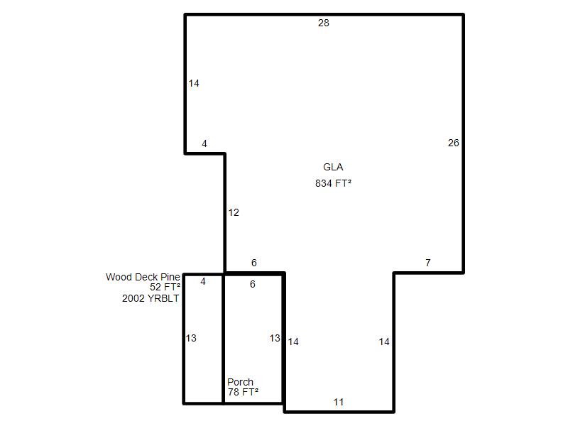
| Full Legal Description: COLLIVER HEIGHTS ADD LOTS 12 & 13 |
| Photo & Sketch (if available) | Comp Sales (ordered by relevancy) |
|
||||||||||||||||||
|
||||||||||||||||||||
| Value History (*The County Treasurer 405-713-1300 posts & collects actual tax amounts. Contact information HERE) | |||||||||||||
|---|---|---|---|---|---|---|---|---|---|---|---|---|---|
| Year | Market Value | Taxable Mkt Value | Gross Assessed | Exemption | Net Assessed | Millage | Est. Tax | Tax Savings | |||||
|
2026 |
87,500 |
68,342 |
7,516 |
0 |
7,516 |
119.02 |
$895 |
$251 |
|||||
|
2025 |
87,000 |
65,088 |
7,158 |
0 |
7,158 |
119.02 |
$852 |
$287 |
|||||
|
2024 |
80,500 |
61,989 |
6,818 |
0 |
6,818 |
119.70 |
$816 |
$244 |
|||||
|
2023 |
73,000 |
59,038 |
6,493 |
0 |
6,493 |
118.33 |
$768 |
$182 |
|||||
|
2022 |
68,500 |
56,227 |
6,184 |
0 |
6,184 |
112.69 |
$697 |
$152 |
|||||
| Property Account Status/Adjustments/Exemptions | ||
|---|---|---|
| Account # | Exemption Description | Amount |
|
R104682000 |
5% Capped Account |
0 |
| Property Deed Transaction History (Recorded in the County Clerk's Office) | ||||||||||
|---|---|---|---|---|---|---|---|---|---|---|
| Date | Type | Book | Page | Price | Grantor | Grantee | ||||
|
10/29/2025 |
|
Hmstd Off & |
$0 |
ISAACS SANDRA L & TERRY W |
ISAACS TERRY & SANDRA |
|||||
|
2/27/1998 |
|
Historical |
$0 |
ISAACS SANDRA |
ISAACS SANDRA L & TERRY W |
|||||
|
1/18/1995 |
|
Historical |
$1,000 |
SANDERS VIRGINIA |
ISAACS SANDRA |
|||||
|
11/3/1994 |
|
Historical |
$1,500 |
ORTEZ MANUEL |
SANDERS VIRGINIA |
|||||
|
12/18/1989 |
|
Historical |
$0 |
EAVES MARCUS C & SHERRY L |
ORTEZ MANUEL |
|||||
| Last Mailed Notice of Value (N.O.V.) Information/History | ||||||||
|---|---|---|---|---|---|---|---|---|
| Year | Date | Market Value | Taxable Market Value | Gross Assessed | Exemption | Net Assessed | ||
|
2026 |
02/06/2026 |
87,500 |
68,342 |
7,516 |
0 |
7,516 |
||
|
2025 |
01/31/2025 |
87,000 |
65,088 |
7,158 |
0 |
7,158 |
||
|
2024 |
01/22/2024 |
80,500 |
61,989 |
6,818 |
0 |
6,818 |
||
|
2023 |
01/23/2023 |
73,000 |
59,038 |
6,493 |
0 |
6,493 |
||
|
2022 |
02/22/2022 |
68,500 |
56,227 |
6,184 |
0 |
6,184 |
||
| Property Building Permit History | |||||||||||
|---|---|---|---|---|---|---|---|---|---|---|---|
| Issued | Permit # | Provided by | Bldg # | Description | Est Construction Cost | Status | |||||
| No Building Permit records returned. | |||||||||||
| Click button on building number to access detailed information: | ||||||
|---|---|---|---|---|---|---|
| Bldg # | Vacant/Improved Land | Bldg Description | Year Built | SqFt | # Stories | |
|
1 |
Improved |
Ranch 1 Story |
1965 |
834 |
1 Stories |
|