|
|
|
| Larry Stein Oklahoma County Assessor (405) 713-1200 - Public Access System |
|
|
|
|
|
|
| Real Property Display - Screen Produced 3/26/2026 10:11:53 AM | ||||
|---|---|---|---|---|
| Account: R105561650 | Type: Residential | Location: |
928 SW 31ST ST |
|
| Building Name/Occupant: |
|
OKLAHOMA CITY |
||
| Owner Name 1: | FURRA GLEN |
Parcel PIN#: |
1665-10-556-1650 |
|
| Owner Name 2: | FURRA GLEN II | 1/4 section #: |
1665 |
|
| Owner Name 3: | Parent Acct: |
|
||
| Billing Address: | 3139 SW 64TH ST | Tax District: |
|
|
| City, State, Zip | OKLAHOMA CITY, OK 73159 | School System: |
Oklahoma City #89 |
|
|
Country: (If noted) |
Land Size: |
0.1550 Acres |
||
|
Land Value: 12,150 |
|
|||
|
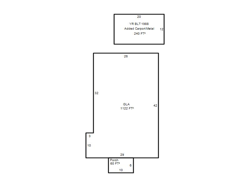
Sect 17-T11N-R3W Qtr NE |
VOLZ ADDITION
Block
002
Lot
010
|
|||
| Full Legal Description: VOLZ ADDITION 002 010 W45FT OF N 1/2 |
| Photo & Sketch (if available) | Comp Sales (ordered by relevancy) |
|
||||||||||||||||||
|
||||||||||||||||||||
| Value History (*The County Treasurer 405-713-1300 posts & collects actual tax amounts. Contact information HERE) | |||||||||||||
|---|---|---|---|---|---|---|---|---|---|---|---|---|---|
| Year | Market Value | Taxable Mkt Value | Gross Assessed | Exemption | Net Assessed | Millage | Est. Tax | Tax Savings | |||||
|
2026 |
71,000 |
65,984 |
7,257 |
0 |
7,257 |
119.02 |
$864 |
$66 |
|||||
|
2025 |
70,500 |
62,842 |
6,912 |
0 |
6,912 |
119.02 |
$823 |
$100 |
|||||
|
2024 |
63,500 |
59,850 |
6,583 |
0 |
6,583 |
119.70 |
$788 |
$48 |
|||||
|
2023 |
57,000 |
57,000 |
6,270 |
0 |
6,270 |
118.33 |
$742 |
$0 |
|||||
|
2022 |
64,500 |
64,500 |
7,095 |
0 |
7,095 |
112.69 |
$800 |
$0 |
|||||
| Property Account Status/Adjustments/Exemptions | ||
|---|---|---|
| Account # | Exemption Description | Amount |
|
R105561650 |
5% Capped Account |
0 |
| Property Deed Transaction History (Recorded in the County Clerk's Office) | |||||||
|---|---|---|---|---|---|---|---|
| Date | Type | Book | Page | Price | Grantor | Grantee | |
|
8/31/2021 |
|
Deeds |
$8,000 |
MATLOCK JAMES JR |
FURRA GLEN |
||
|
3/3/2011 |
|
Deeds |
$0 |
MATLOCK JAMES E & PENNY TRS MATLOCK JAMES & PENNY REV LIVING |
MATLOCK JAMES JR |
||
|
1/5/2009 |
|
Deeds |
$0 |
MATLOCK JAMES ERNEST & PENNY |
MATLOCK JAMES E & PENNY TRS MATLOCK JAMES & PENNY REV LIVING |
||
|
12/1/1985 |
|
Historical |
$0 |
|
MATLOCK JAMES ERNEST & PENNY |
||
| Last Mailed Notice of Value (N.O.V.) Information/History | ||||||||
|---|---|---|---|---|---|---|---|---|
| Year | Date | Market Value | Taxable Market Value | Gross Assessed | Exemption | Net Assessed | ||
|
2026 |
02/06/2026 |
71,000 |
65,984 |
7,257 |
0 |
7,257 |
||
|
2025 |
01/31/2025 |
70,500 |
62,842 |
6,912 |
0 |
6,912 |
||
|
2024 |
01/22/2024 |
63,500 |
59,850 |
6,583 |
0 |
6,583 |
||
|
2023 |
01/23/2023 |
57,000 |
57,000 |
6,270 |
0 |
6,270 |
||
|
2022 |
02/22/2022 |
64,500 |
64,500 |
7,095 |
0 |
7,095 |
||
| Property Building Permit History | ||||||
|---|---|---|---|---|---|---|
| Issued | Permit # | Provided by | Bldg # | Description | Est Construction Cost | Status |
|
11/8/2022 |
|
|
1 |
Remodeled |
|
Inactive |
| Click button on building number to access detailed information: | ||||||
|---|---|---|---|---|---|---|
| Bldg # | Vacant/Improved Land | Bldg Description | Year Built | SqFt | # Stories | |
|
1 |
Improved |
Ranch 1 Story |
1930 |
1,122 |
1 Stories |
|