|
|
|
| Larry Stein Oklahoma County Assessor (405) 713-1200 - Public Access System |
|
|
|
|
|
|
| Real Property Display - Screen Produced 3/26/2026 10:10:20 AM | ||||
|---|---|---|---|---|
| Account: R105565200 | Type: Residential | Location: |
3601 S KLEIN AVE |
|
| Building Name/Occupant: |
|
OKLAHOMA CITY |
||
| Owner Name 1: | MARQUEZ LUPITA S |
Parcel PIN#: |
1665-10-556-5200 |
|
| Owner Name 2: | 1/4 section #: |
1665 |
||
| Owner Name 3: | Parent Acct: |
|
||
| Billing Address: | 3601 S KLEIN AVE | Tax District: |
|
|
| City, State, Zip | OKLAHOMA CITY, OK 73109-2931 | School System: |
Oklahoma City #89 |
|
|
Country: (If noted) |
Land Size: |
0.1832 Acres |
||
|
Land Value: 14,364 |
|
|||
|
Sect 17-T11N-R3W Qtr NE |
VOLZ ADDITION
Block
005
Lot
000
|
|||
| Full Legal Description: VOLZ ADDITION 005 000 FORMERLY S22.5FT LOT 14 & ALL LOT 15 BLK 1 STEELES SUB |
| No comparable sales report available. | ||||||||||||||||||||||
|
||||||||||||||||||||||
| Value History (*The County Treasurer 405-713-1300 posts & collects actual tax amounts. Contact information HERE) | |||||||||||||
|---|---|---|---|---|---|---|---|---|---|---|---|---|---|
| Year | Market Value | Taxable Mkt Value | Gross Assessed | Exemption | Net Assessed | Millage | Est. Tax | Tax Savings | |||||
|
2026 |
104,716 |
72,357 |
7,958 |
1,000 |
6,958 |
119.02 |
$828 |
$543 |
|||||
|
2025 |
98,091 |
70,250 |
7,727 |
1,000 |
6,727 |
119.02 |
$801 |
$484 |
|||||
|
2024 |
90,929 |
68,204 |
7,501 |
1,000 |
6,501 |
119.70 |
$778 |
$419 |
|||||
|
2023 |
72,280 |
66,218 |
7,283 |
1,000 |
6,283 |
118.33 |
$744 |
$197 |
|||||
|
2022 |
70,330 |
64,290 |
7,070 |
1,000 |
6,070 |
112.69 |
$684 |
$188 |
|||||
| Property Account Status/Adjustments/Exemptions | ||
|---|---|---|
| Account # | Exemption Description | Amount |
|
R105565200 |
3% Cap Homestead |
0 |
|
R105565200 |
Homestead |
1,000 |
| Property Deed Transaction History (Recorded in the County Clerk's Office) | |||||||
|---|---|---|---|---|---|---|---|
| Date | Type | Book | Page | Price | Grantor | Grantee | |
|
9/30/2014 |
|
Deeds |
$57,000 |
PHILLIPS JANICE K WOLCOTT JO ANNE |
MARQUEZ LUPITA S |
||
|
6/5/2014 |
|
Hmstd Off & |
$0 |
WAGGONER JACQUELINE INEZ |
PHILLIPS JANICE K WOLCOTT JO ANNE |
||
|
9/15/1993 |
|
Historical |
$0 |
WAGGONER W JR & J |
WAGGONER JACQUELINE INEZ |
||
|
11/11/1911 |
|
Historical |
$0 |
|
WAGGONER W JR & J |
||
| Last Mailed Notice of Value (N.O.V.) Information/History | ||||||||
|---|---|---|---|---|---|---|---|---|
| Year | Date | Market Value | Taxable Market Value | Gross Assessed | Exemption | Net Assessed | ||
|
2026 |
02/06/2026 |
104,716 |
72,357 |
7,958 |
1,000 |
6,958 |
||
|
2025 |
01/31/2025 |
98,091 |
70,250 |
7,727 |
1,000 |
6,727 |
||
|
2024 |
01/22/2024 |
90,929 |
68,204 |
7,501 |
1,000 |
6,501 |
||
|
2023 |
01/23/2023 |
72,280 |
66,218 |
7,283 |
1,000 |
6,283 |
||
|
2022 |
02/22/2022 |
70,330 |
64,290 |
7,070 |
1,000 |
6,070 |
||
| Property Building Permit History | |||||||||||
|---|---|---|---|---|---|---|---|---|---|---|---|
| Issued | Permit # | Provided by | Bldg # | Description | Est Construction Cost | Status | |||||
| No Building Permit records returned. | |||||||||||
| Click button on building number to access detailed information: | ||||||
|---|---|---|---|---|---|---|
| Bldg # | Vacant/Improved Land | Bldg Description | Year Built | SqFt | # Stories | |
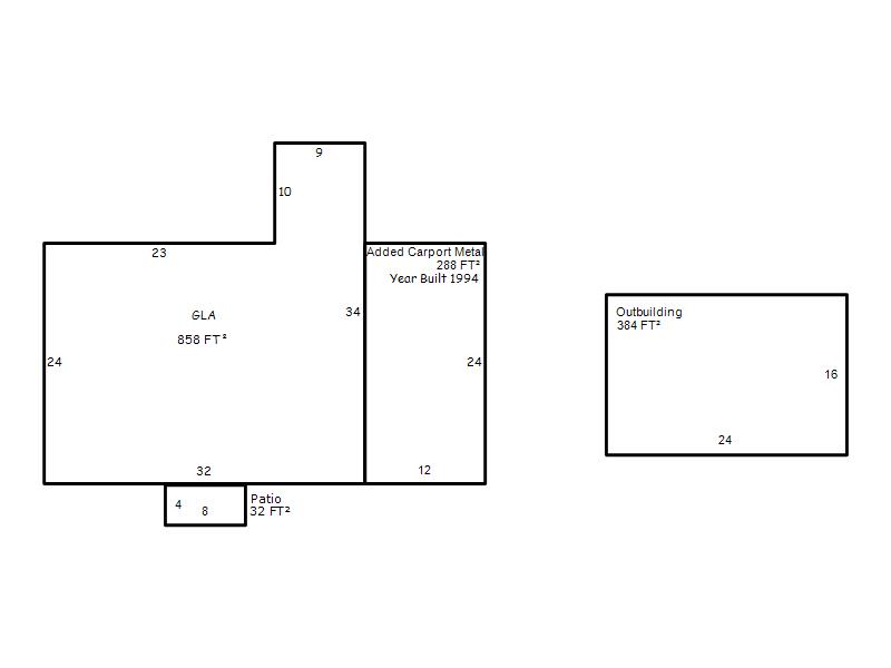
|
1 |
Improved |
Ranch 1 Story |
1949 |
858 |
1 Stories |
|
|
2 |
Improved |
Ranch 1 Story |
1949 |
460 |
1 Stories |
|