|
|
|
| Larry Stein Oklahoma County Assessor (405) 713-1200 - Public Access System |
|
|
|
|
|
|
| Real Property Display - Screen Produced 3/26/2026 10:10:20 AM | ||||
|---|---|---|---|---|
| Account: R105566600 | Type: Residential | Location: |
1029 SW GRAND BLVD |
|
| Building Name/Occupant: |
|
OKLAHOMA CITY |
||
| Owner Name 1: | ROGERS JERRY |
Parcel PIN#: |
1665-10-556-6600 |
|
| Owner Name 2: | 1/4 section #: |
1665 |
||
| Owner Name 3: | Parent Acct: |
|
||
| Billing Address: | 900 NW 33RD ST | Tax District: |
|
|
| City, State, Zip | MOORE , OK 73160 | School System: |
Oklahoma City #89 |
|
|
Country: (If noted) |
Land Size: |
0.1433 Acres |
||
|
Land Value: 11,232 |
|
|||
|
Sect 17-T11N-R3W Qtr NE |
VOLZ ADDITION
Block
005
Lot
000
|
|||
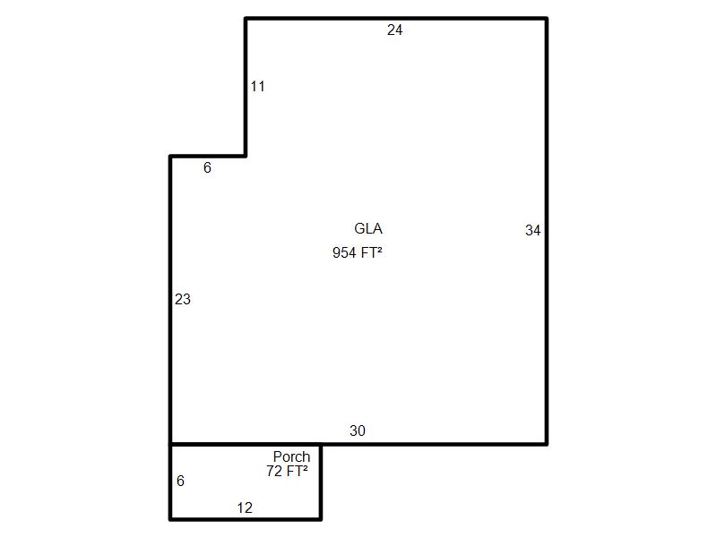
| Full Legal Description: VOLZ ADDITION 005 000 BEG 398.1FT S & 136.6FT E OF NW/C TH E48FT S130FT W48FT N130FT TO BEG FORM PART LT 19 ALL LOT 20 & PART OF LOT 21 BLK 2STEELES SUB |
| Photo & Sketch (if available) | Comp Sales (ordered by relevancy) |
|
||||||||||||||||||
|
||||||||||||||||||||
| Value History (*The County Treasurer 405-713-1300 posts & collects actual tax amounts. Contact information HERE) | |||||||||||||
|---|---|---|---|---|---|---|---|---|---|---|---|---|---|
| Year | Market Value | Taxable Mkt Value | Gross Assessed | Exemption | Net Assessed | Millage | Est. Tax | Tax Savings | |||||
|
2026 |
79,500 |
56,283 |
6,190 |
0 |
6,190 |
119.02 |
$737 |
$304 |
|||||
|
2025 |
78,000 |
53,603 |
5,895 |
0 |
5,895 |
119.02 |
$702 |
$319 |
|||||
|
2024 |
70,000 |
51,051 |
5,615 |
0 |
5,615 |
119.70 |
$672 |
$250 |
|||||
|
2023 |
62,000 |
48,620 |
5,347 |
0 |
5,347 |
118.33 |
$633 |
$174 |
|||||
|
2022 |
57,000 |
46,305 |
5,093 |
0 |
5,093 |
112.69 |
$574 |
$133 |
|||||
| Property Account Status/Adjustments/Exemptions | ||
|---|---|---|
| Account # | Exemption Description | Amount |
|
R105566600 |
5% Capped Account |
0 |
| Property Deed Transaction History (Recorded in the County Clerk's Office) | ||||||||||
|---|---|---|---|---|---|---|---|---|---|---|
| Date | Type | Book | Page | Price | Grantor | Grantee | ||||
|
10/1/2018 |
|
Hmstd Off & |
$0 |
ROGERS JERRY & DONETTA |
ROGERS JERRY |
|||||
|
10/5/2007 |
|
Deeds |
$0 |
ROGERS DONETTA |
ROGERS JERRY & DONETTA |
|||||
|
4/3/2000 |
|
Deeds |
$20,500 |
GARDNER MARVIN |
ROGERS DONETTA |
|||||
|
10/27/1992 |
|
Historical |
$11,000 |
COMMUNITY BANK & TRUST CO |
GARDNER MARVIN |
|||||
|
6/15/1992 |
|
Historical |
$0 |
HERNANDEZ MARCELINO & MARIA I |
COMMUNITY BANK & TRUST CO |
|||||
| Last Mailed Notice of Value (N.O.V.) Information/History | ||||||||
|---|---|---|---|---|---|---|---|---|
| Year | Date | Market Value | Taxable Market Value | Gross Assessed | Exemption | Net Assessed | ||
|
2026 |
02/06/2026 |
79,500 |
56,283 |
6,190 |
0 |
6,190 |
||
|
2025 |
01/31/2025 |
78,000 |
53,603 |
5,895 |
0 |
5,895 |
||
|
2024 |
01/22/2024 |
70,000 |
51,051 |
5,615 |
0 |
5,615 |
||
|
2023 |
01/23/2023 |
62,000 |
48,620 |
5,347 |
0 |
5,347 |
||
|
2022 |
02/22/2022 |
57,000 |
46,305 |
5,093 |
0 |
5,093 |
||
| Property Building Permit History | |||||||||||
|---|---|---|---|---|---|---|---|---|---|---|---|
| Issued | Permit # | Provided by | Bldg # | Description | Est Construction Cost | Status | |||||
| No Building Permit records returned. | |||||||||||
| Click button on building number to access detailed information: | ||||||
|---|---|---|---|---|---|---|
| Bldg # | Vacant/Improved Land | Bldg Description | Year Built | SqFt | # Stories | |
|
1 |
Improved |
Ranch 1 Story |
1949 |
954 |
1 Stories |
|