|
|
|
| Larry Stein Oklahoma County Assessor (405) 713-1200 - Public Access System |
|
|
|
|
|
|
| Real Property Display - Screen Produced 3/26/2026 10:11:53 AM | ||||
|---|---|---|---|---|
| Account: R105567050 | Type: Residential | Location: |
1041 SW GRAND BLVD |
|
| Building Name/Occupant: |
|
OKLAHOMA CITY |
||
| Owner Name 1: | RODRIGUEZ OSCAR |
Parcel PIN#: |
1665-10-556-7050 |
|
| Owner Name 2: | 1/4 section #: |
1665 |
||
| Owner Name 3: | Parent Acct: |
|
||
| Billing Address: | 1041 SW GRAND BLVD | Tax District: |
|
|
| City, State, Zip | OKLAHOMA CITY, OK 73109 | School System: |
Oklahoma City #89 |
|
|
Country: (If noted) |
Land Size: |
0.1194 Acres |
||
|
Land Value: 9,360 |
|
|||
|
Sect 17-T11N-R3W Qtr NE |
VOLZ ADDITION
Block
005
Lot
000
|
|||
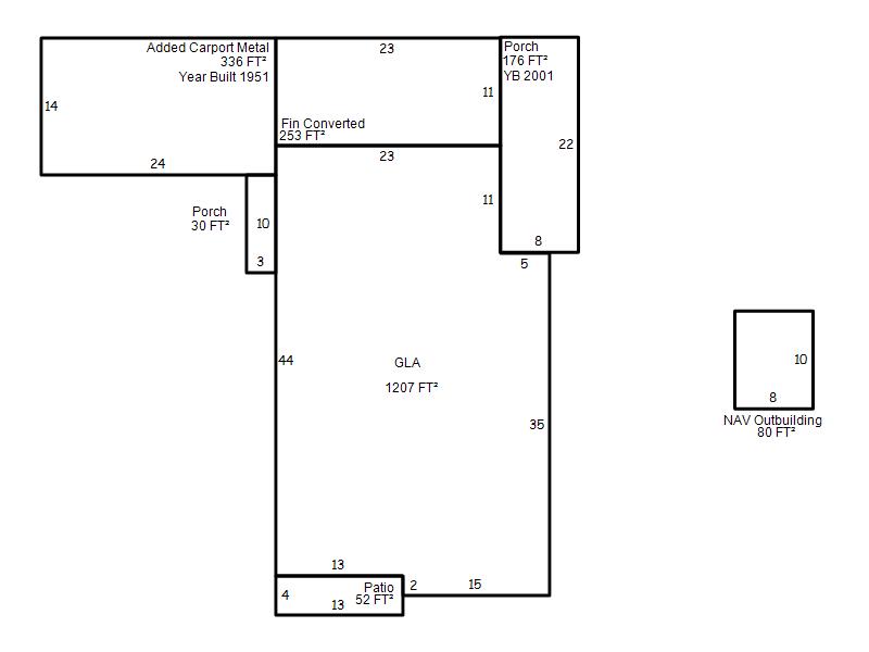
| Full Legal Description: VOLZ ADDITION 005 000 BEG 398.1FT S OF NW/C TH E40FT S130FT W40FT N130FT TO BEG FORMERLY W10FT LT 25 & ALL LT 26 BLK 2 STEELES SUB |
| Photo & Sketch (if available) | Comp Sales (ordered by relevancy) |
|
||||||||||||||||||
|
||||||||||||||||||||
| Value History (*The County Treasurer 405-713-1300 posts & collects actual tax amounts. Contact information HERE) | |||||||||||||
|---|---|---|---|---|---|---|---|---|---|---|---|---|---|
| Year | Market Value | Taxable Mkt Value | Gross Assessed | Exemption | Net Assessed | Millage | Est. Tax | Tax Savings | |||||
|
2026 |
112,000 |
78,793 |
8,666 |
1,000 |
7,666 |
119.02 |
$913 |
$554 |
|||||
|
2025 |
110,000 |
76,499 |
8,414 |
1,000 |
7,414 |
119.02 |
$883 |
$558 |
|||||
|
2024 |
100,000 |
74,271 |
8,168 |
1,000 |
7,168 |
119.70 |
$858 |
$458 |
|||||
|
2023 |
90,500 |
72,108 |
7,931 |
0 |
7,931 |
118.33 |
$939 |
$239 |
|||||
|
2022 |
82,000 |
68,675 |
7,553 |
0 |
7,553 |
112.69 |
$851 |
$165 |
|||||
| Property Account Status/Adjustments/Exemptions | ||
|---|---|---|
| Account # | Exemption Description | Amount |
|
R105567050 |
Homestead |
1,000 |
|
R105567050 |
3% Cap Homestead |
0 |
| Property Deed Transaction History (Recorded in the County Clerk's Office) | ||||||||||
|---|---|---|---|---|---|---|---|---|---|---|
| Date | Type | Book | Page | Price | Grantor | Grantee | ||||
|
12/23/2015 |
|
Deeds |
$48,000 |
DUKE JEAN ANN |
RODRIGUEZ OSCAR |
|||||
|
12/7/2015 |
|
Hmstd Off & |
$0 |
MARR PATSY L |
DUKE JEAN ANN |
|||||
|
9/28/2015 |
|
Deeds |
$0 |
MARR BILLIE J & PATSY L |
MARR PATSY L |
|||||
|
9/21/1988 |
|
Historical |
$18,153 |
SECRETARY OF HOUSING |
MARR BILLIE J & PATSY L |
|||||
|
1/19/1988 |
|
Historical |
$0 |
LEADER FEDERAL SAVINGS |
SECRETARY OF HOUSING |
|||||
| Last Mailed Notice of Value (N.O.V.) Information/History | ||||||||
|---|---|---|---|---|---|---|---|---|
| Year | Date | Market Value | Taxable Market Value | Gross Assessed | Exemption | Net Assessed | ||
|
2026 |
02/06/2026 |
112,000 |
78,793 |
8,666 |
1,000 |
7,666 |
||
|
2025 |
01/31/2025 |
110,000 |
76,499 |
8,414 |
1,000 |
7,414 |
||
|
2024 |
01/22/2024 |
100,000 |
75,713 |
8,327 |
0 |
8,327 |
||
|
2023 |
01/23/2023 |
90,500 |
72,108 |
7,931 |
0 |
7,931 |
||
|
2022 |
02/22/2022 |
82,000 |
68,675 |
7,553 |
0 |
7,553 |
||
| Property Building Permit History | ||||||
|---|---|---|---|---|---|---|
| Issued | Permit # | Provided by | Bldg # | Description | Est Construction Cost | Status |
|
5/24/2001 |
10202624 |
OKLAHOMA CITY |
1 |
Other |
0 |
Inactive |
| Click button on building number to access detailed information: | ||||||
|---|---|---|---|---|---|---|
| Bldg # | Vacant/Improved Land | Bldg Description | Year Built | SqFt | # Stories | |
|
1 |
Improved |
Ranch 1 Story |
1951 |
1,207 |
1 Stories |
|