|
|
|
| Larry Stein Oklahoma County Assessor (405) 713-1200 - Public Access System |
|
|
|
|
|
|
| Real Property Display - Screen Produced 3/26/2026 10:11:52 AM | ||||
|---|---|---|---|---|
| Account: R105567200 | Type: Residential | Location: |
3526 S DOUGLAS AVE |
|
| Building Name/Occupant: |
|
OKLAHOMA CITY |
||
| Owner Name 1: | MARTINEZ GENARO |
Parcel PIN#: |
1665-10-556-7200 |
|
| Owner Name 2: | CRUZ MARIA D AYALA | 1/4 section #: |
1665 |
|
| Owner Name 3: | Parent Acct: |
|
||
| Billing Address: | 3526 S DOUGLAS AVE | Tax District: |
|
|
| City, State, Zip | OKLAHOMA CITY, OK 73109-2917 | School System: |
Oklahoma City #89 |
|
|
Country: (If noted) |
Land Size: |
0.1924 Acres |
||
|
Land Value: 15,082 |
|
|||
|
Sect 17-T11N-R3W Qtr NE |
VOLZ ADDITION
Block
005
Lot
000
|
|||
| Full Legal Description: VOLZ ADDITION 005 000 BEG 325FT S OF NW/C TH S62.5F E133.1FT N62.5FT W133.1FT TO BEG FORM LOTS 27 & 28 BLK 2 STEELES SUB |
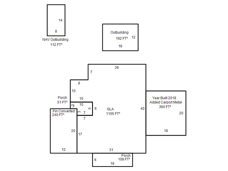
| Photo & Sketch (if available) | Comp Sales (ordered by relevancy) |
|
||||||||||||||||||
|
||||||||||||||||||||
| Value History (*The County Treasurer 405-713-1300 posts & collects actual tax amounts. Contact information HERE) | |||||||||||||
|---|---|---|---|---|---|---|---|---|---|---|---|---|---|
| Year | Market Value | Taxable Mkt Value | Gross Assessed | Exemption | Net Assessed | Millage | Est. Tax | Tax Savings | |||||
|
2026 |
101,000 |
54,089 |
5,949 |
0 |
5,949 |
119.02 |
$708 |
$614 |
|||||
|
2025 |
96,000 |
51,514 |
5,665 |
0 |
5,665 |
119.02 |
$674 |
$582 |
|||||
|
2024 |
87,000 |
49,061 |
5,395 |
0 |
5,395 |
119.70 |
$646 |
$500 |
|||||
|
2023 |
78,500 |
46,725 |
5,139 |
0 |
5,139 |
118.33 |
$608 |
$414 |
|||||
|
2022 |
44,500 |
44,500 |
4,895 |
0 |
4,895 |
112.69 |
$552 |
$0 |
|||||
| Property Account Status/Adjustments/Exemptions | ||
|---|---|---|
| Account # | Exemption Description | Amount |
|
R105567200 |
5% Capped Account |
0 |
| Property Deed Transaction History (Recorded in the County Clerk's Office) | ||||||||||
|---|---|---|---|---|---|---|---|---|---|---|
| Date | Type | Book | Page | Price | Grantor | Grantee | ||||
|
9/7/2016 |
|
Deeds |
$44,000 |
MIRELES BAUDELIO M TRS & REV TRUST MIRELES SONIA TRS & REV T |
MARTINEZ GENARO |
|||||
|
12/22/2014 |
|
Hmstd Off & |
$0 |
MIRELES B MARTIN MIRELES SONIA |
MIRELES BAUDELIO M TRS & REV TRUST MIRELES SONIA TRS & REV T |
|||||
|
12/14/2006 |
|
Deeds |
$27,500 |
AGUILAR VERONICA |
MIRELES B MARTIN MIRELES SONIA |
|||||
|
6/12/2000 |
|
Deeds |
$17,500 |
CARRASCO ARTEMIO & ALMA ROSA |
AGUILAR VERONICA |
|||||
|
9/9/1992 |
|
Historical |
$0 |
BENEFIELD FRANCIS E |
CARRASCO ARTEMIO & ALMA ROSA |
|||||
| Last Mailed Notice of Value (N.O.V.) Information/History | ||||||||
|---|---|---|---|---|---|---|---|---|
| Year | Date | Market Value | Taxable Market Value | Gross Assessed | Exemption | Net Assessed | ||
|
2026 |
02/06/2026 |
101,000 |
54,089 |
5,949 |
0 |
5,949 |
||
|
2025 |
01/31/2025 |
96,000 |
51,514 |
5,665 |
0 |
5,665 |
||
|
2024 |
01/22/2024 |
87,000 |
49,061 |
5,395 |
0 |
5,395 |
||
|
2023 |
01/23/2023 |
78,500 |
46,725 |
5,139 |
0 |
5,139 |
||
|
2015 |
03/05/2015 |
48,355 |
48,355 |
5,318 |
0 |
5,318 |
||
| Property Building Permit History | ||||||
|---|---|---|---|---|---|---|
| Issued | Permit # | Provided by | Bldg # | Description | Est Construction Cost | Status |
|
1/21/1992 |
10202625 |
OKLAHOMA CITY |
1 |
Burn - Trip |
6,000 |
Inactive |
| Click button on building number to access detailed information: | ||||||
|---|---|---|---|---|---|---|
| Bldg # | Vacant/Improved Land | Bldg Description | Year Built | SqFt | # Stories | |
|
1 |
Improved |
Ranch 1 Story |
1920 |
1,193 |
1 Stories |
|