|
|
|
| Larry Stein Oklahoma County Assessor (405) 713-1200 - Public Access System |
|
|
|
|
|
|
| Real Property Display - Screen Produced 3/26/2026 2:25:37 PM | ||||
|---|---|---|---|---|
| Account: R107107100 | Type: Residential | Location: |
1013 SW 34TH ST |
|
| Building Name/Occupant: |
|
OKLAHOMA CITY |
||
| Owner Name 1: | PORTILLO LUCIA |
Parcel PIN#: |
1665-10-710-7100 |
|
| Owner Name 2: | 1/4 section #: |
1665 |
||
| Owner Name 3: | Parent Acct: |
|
||
| Billing Address: | 1013 SW 34TH ST | Tax District: |
|
|
| City, State, Zip | OKLAHOMA CITY, OK 73109 | School System: |
Oklahoma City #89 |
|
|
Country: (If noted) |
Land Size: |
0.1492 Acres |
||
|
Land Value: 11,700 |
|
|||
|
Sect 17-T11N-R3W Qtr NE |
GREENS SUB VOLZ ADD
Block
000
Lot
000
|
|||
| Full Legal Description: GREENS SUB VOLZ ADD 000 000 LOTS 41 & 42 |
| Photo & Sketch (if available) | Comp Sales (ordered by relevancy) |
|
||||||||||||||||||
|
||||||||||||||||||||
| Value History (*The County Treasurer 405-713-1300 posts & collects actual tax amounts. Contact information HERE) | |||||||||||||
|---|---|---|---|---|---|---|---|---|---|---|---|---|---|
| Year | Market Value | Taxable Mkt Value | Gross Assessed | Exemption | Net Assessed | Millage | Est. Tax | Tax Savings | |||||
|
2026 |
102,500 |
72,262 |
7,948 |
0 |
7,948 |
119.02 |
$946 |
$396 |
|||||
|
2025 |
100,500 |
68,821 |
7,569 |
0 |
7,569 |
119.02 |
$901 |
$415 |
|||||
|
2024 |
91,500 |
65,544 |
7,209 |
0 |
7,209 |
119.70 |
$863 |
$342 |
|||||
|
2023 |
80,500 |
62,423 |
6,865 |
0 |
6,865 |
118.33 |
$813 |
$235 |
|||||
|
2022 |
73,000 |
59,451 |
6,538 |
0 |
6,538 |
112.69 |
$737 |
$168 |
|||||
| Property Account Status/Adjustments/Exemptions | ||||||
|---|---|---|---|---|---|---|
| Account # | Exemption Description | Amount | ||||
| No adjustment/exemption records returned. | ||||||
| Property Deed Transaction History (Recorded in the County Clerk's Office) | |||||||
|---|---|---|---|---|---|---|---|
| Date | Type | Book | Page | Price | Grantor | Grantee | |
|
3/15/2022 |
|
Hmstd Off & |
$0 |
GOMEZ JULION |
PORTILLO LUCIA |
||
|
10/10/2017 |
|
Deeds |
$54,000 |
STANFILL RUBY F TRS |
GOMEZ JULION |
||
|
7/6/2004 |
|
Deeds |
$0 |
STANFILL RUBY F |
STANFILL RUBY F TRS |
||
|
7/18/1989 |
|
Historical |
$0 |
STANFILL RUBY F |
STANFILL RUBY F |
||
|
11/11/1911 |
|
Historical |
$0 |
|
STANFILL RUBY F |
||
| Last Mailed Notice of Value (N.O.V.) Information/History | ||||||||
|---|---|---|---|---|---|---|---|---|
| Year | Date | Market Value | Taxable Market Value | Gross Assessed | Exemption | Net Assessed | ||
|
2026 |
02/06/2026 |
102,500 |
72,262 |
7,948 |
0 |
7,948 |
||
|
2025 |
01/31/2025 |
100,500 |
68,821 |
7,569 |
0 |
7,569 |
||
|
2024 |
01/22/2024 |
91,500 |
65,544 |
7,209 |
0 |
7,209 |
||
|
2023 |
01/23/2023 |
80,500 |
62,423 |
6,865 |
0 |
6,865 |
||
|
2022 |
02/22/2022 |
73,000 |
59,451 |
6,538 |
0 |
6,538 |
||
| Property Building Permit History | |||||||||||
|---|---|---|---|---|---|---|---|---|---|---|---|
| Issued | Permit # | Provided by | Bldg # | Description | Est Construction Cost | Status | |||||
| No Building Permit records returned. | |||||||||||
| Click button on building number to access detailed information: | ||||||
|---|---|---|---|---|---|---|
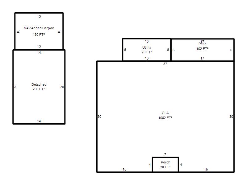
| Bldg # | Vacant/Improved Land | Bldg Description | Year Built | SqFt | # Stories | |
|
1 |
Improved |
Ranch 1 Story |
1947 |
1,082 |
1 Stories |
|