|
|
|
| Larry Stein Oklahoma County Assessor (405) 713-1200 - Public Access System |
|
|
|
|
|
|
| Real Property Display - Screen Produced 3/28/2026 5:51:08 AM | ||||
|---|---|---|---|---|
| Account: R107541600 | Type: Residential | Location: |
1040 SW 31ST ST |
|
| Building Name/Occupant: |
|
OKLAHOMA CITY |
||
| Owner Name 1: | JAY JOSHUAH JOSEPH |
Parcel PIN#: |
1665-10-754-1600 |
|
| Owner Name 2: | 1/4 section #: |
1665 |
||
| Owner Name 3: | Parent Acct: |
|
||
| Billing Address: | 1040 SW 31ST ST | Tax District: |
|
|
| City, State, Zip | OKLAHOMA CITY, OK 73109-2319 | School System: |
Oklahoma City #89 |
|
|
Country: (If noted) |
Land Size: |
0.1607 Acres |
||
|
Land Value: 12,600 |
|
|||
|
Sect 17-T11N-R3W Qtr NE |
IRENES SUB ADDITION
Block
001
Lot
000
|
|||
| Full Legal Description: IRENES SUB ADDITION 001 000 LOTS 15 & 16 SUBJ TO EASEMENTS OF RECORD |
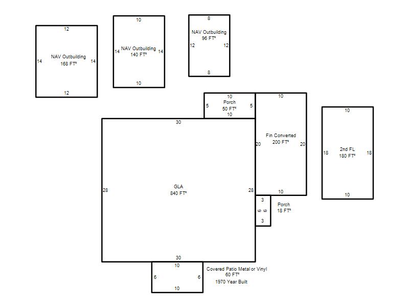
| Photo & Sketch (if available) | Comp Sales (ordered by relevancy) |
|
||||||||||||||||||
|
||||||||||||||||||||
| Value History (*The County Treasurer 405-713-1300 posts & collects actual tax amounts. Contact information HERE) | |||||||||||||
|---|---|---|---|---|---|---|---|---|---|---|---|---|---|
| Year | Market Value | Taxable Mkt Value | Gross Assessed | Exemption | Net Assessed | Millage | Est. Tax | Tax Savings | |||||
|
2026 |
89,000 |
65,662 |
7,221 |
0 |
7,221 |
119.02 |
$860 |
$306 |
|||||
|
2025 |
87,500 |
62,536 |
6,878 |
0 |
6,878 |
119.02 |
$819 |
$327 |
|||||
|
2024 |
79,000 |
59,559 |
6,550 |
0 |
6,550 |
119.70 |
$784 |
$256 |
|||||
|
2023 |
72,000 |
56,723 |
6,239 |
0 |
6,239 |
118.33 |
$738 |
$199 |
|||||
|
2022 |
66,000 |
54,022 |
5,941 |
0 |
5,941 |
112.69 |
$670 |
$148 |
|||||
| Property Account Status/Adjustments/Exemptions | ||
|---|---|---|
| Account # | Exemption Description | Amount |
|
R107541600 |
5% Capped Account |
0 |
| Property Deed Transaction History (Recorded in the County Clerk's Office) | |||||||
|---|---|---|---|---|---|---|---|
| Date | Type | Book | Page | Price | Grantor | Grantee | |
|
5/20/2012 |
|
Deeds |
$9,000 |
JAY ERIC LEE |
JAY JOSHUAH JOSEPH |
||
|
4/20/2009 |
|
Hmstd Off & |
$0 |
HENAGER A C |
JAY ERIC LEE |
||
|
3/23/2009 |
|
Hmstd Off & |
$0 |
HENAGER FLORENCE J |
HENAGER A C |
||
|
2/20/1998 |
|
Historical |
$0 |
BENTON FLORENCE JEANETTE |
HENAGER FLORENCE J |
||
|
11/11/1911 |
|
Historical |
$0 |
|
BENTON FLORENCE JEANETTE |
||
| Last Mailed Notice of Value (N.O.V.) Information/History | ||||||||
|---|---|---|---|---|---|---|---|---|
| Year | Date | Market Value | Taxable Market Value | Gross Assessed | Exemption | Net Assessed | ||
|
2026 |
02/06/2026 |
89,000 |
65,662 |
7,221 |
0 |
7,221 |
||
|
2025 |
01/31/2025 |
87,500 |
62,536 |
6,878 |
0 |
6,878 |
||
|
2024 |
01/22/2024 |
79,000 |
59,559 |
6,550 |
0 |
6,550 |
||
|
2023 |
01/23/2023 |
72,000 |
56,723 |
6,239 |
0 |
6,239 |
||
|
2022 |
02/22/2022 |
66,000 |
54,022 |
5,941 |
0 |
5,941 |
||
| Property Building Permit History | |||||||||||
|---|---|---|---|---|---|---|---|---|---|---|---|
| Issued | Permit # | Provided by | Bldg # | Description | Est Construction Cost | Status | |||||
| No Building Permit records returned. | |||||||||||
| Click button on building number to access detailed information: | ||||||
|---|---|---|---|---|---|---|
| Bldg # | Vacant/Improved Land | Bldg Description | Year Built | SqFt | # Stories | |
|
1 |
Improved |
1½ Story Fin |
1940 |
1,020 |
1.5 Stories |
|