|
|
|
| Larry Stein Oklahoma County Assessor (405) 713-1200 - Public Access System |
|
|
|
|
|
|
| Real Property Display - Screen Produced 3/28/2026 5:55:54 AM | ||||
|---|---|---|---|---|
| Account: R107547600 | Type: Residential | Location: |
1041 SW 32ND ST |
|
| Building Name/Occupant: |
|
OKLAHOMA CITY |
||
| Owner Name 1: | KINNEY ENTERPRISES 12 LLC |
Parcel PIN#: |
1665-10-754-7600 |
|
| Owner Name 2: | 1/4 section #: |
1665 |
||
| Owner Name 3: | Parent Acct: |
|
||
| Billing Address: | PO BOX 5633 | Tax District: |
|
|
| City, State, Zip | EDMOND, OK 73083-5633 | School System: |
Oklahoma City #89 |
|
|
Country: (If noted) |
Land Size: |
0.1607 Acres |
||
|
Land Value: 12,600 |
|
|||
|
Sect 17-T11N-R3W Qtr NE |
IRENES SUB ADDITION
Block
002
Lot
000
|
|||
| Full Legal Description: IRENES SUB ADDITION 002 000 LOTS 27 & 28 |
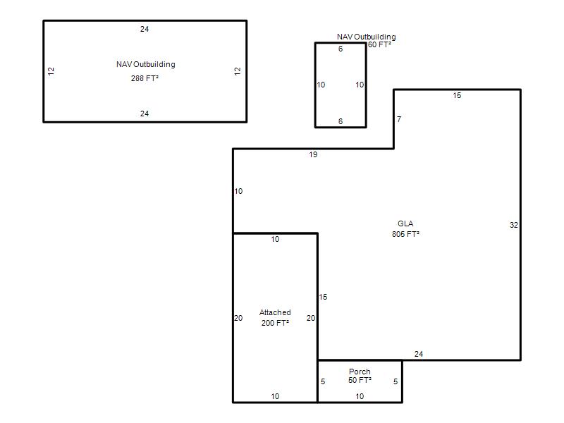
| Photo & Sketch (if available) | Comp Sales (ordered by relevancy) |
|
||||||||||||||||||
|
||||||||||||||||||||
| Value History (*The County Treasurer 405-713-1300 posts & collects actual tax amounts. Contact information HERE) | |||||||||||||
|---|---|---|---|---|---|---|---|---|---|---|---|---|---|
| Year | Market Value | Taxable Mkt Value | Gross Assessed | Exemption | Net Assessed | Millage | Est. Tax | Tax Savings | |||||
|
2026 |
76,500 |
54,942 |
6,042 |
0 |
6,042 |
119.02 |
$719 |
$282 |
|||||
|
2025 |
74,000 |
52,326 |
5,755 |
0 |
5,755 |
119.02 |
$685 |
$284 |
|||||
|
2024 |
67,000 |
49,835 |
5,481 |
0 |
5,481 |
119.70 |
$656 |
$226 |
|||||
|
2023 |
59,500 |
47,462 |
5,220 |
0 |
5,220 |
118.33 |
$618 |
$157 |
|||||
|
2022 |
55,500 |
45,202 |
4,971 |
0 |
4,971 |
112.69 |
$560 |
$128 |
|||||
| Property Account Status/Adjustments/Exemptions | ||
|---|---|---|
| Account # | Exemption Description | Amount |
|
R107547600 |
5% Capped Account |
0 |
| Property Deed Transaction History (Recorded in the County Clerk's Office) | ||||||||||
|---|---|---|---|---|---|---|---|---|---|---|
| Date | Type | Book | Page | Price | Grantor | Grantee | ||||
|
1/1/2014 |
|
Hmstd Off & |
$0 |
KINNEY ENTERPRISES LLC |
KINNEY ENTERPRISES 12 LLC |
|||||
|
5/19/2008 |
|
Other |
$0 |
SECRETARY OF HOUSING & URBAN DEV |
KINNEY ENTERPRISES LLC |
|||||
|
10/1/2007 |
|
Hmstd Off & |
$0 |
HALL CORDELLA & BOBBY E |
SECRETARY OF HOUSING & URBAN DEV |
|||||
|
6/9/2003 |
|
Deeds |
$40,000 |
HEDRICK CURTIS ALAN |
HALL CORDELLA & BOBBY E |
|||||
|
11/19/2001 |
|
Hmstd Off & |
$0 |
HEDRICK VERA LOUISE |
HEDRICK CURTIS ALAN |
|||||
| Last Mailed Notice of Value (N.O.V.) Information/History | ||||||||
|---|---|---|---|---|---|---|---|---|
| Year | Date | Market Value | Taxable Market Value | Gross Assessed | Exemption | Net Assessed | ||
|
2026 |
02/06/2026 |
76,500 |
54,942 |
6,042 |
0 |
6,042 |
||
|
2025 |
01/31/2025 |
74,000 |
52,326 |
5,755 |
0 |
5,755 |
||
|
2024 |
01/22/2024 |
67,000 |
49,835 |
5,481 |
0 |
5,481 |
||
|
2023 |
01/23/2023 |
59,500 |
47,462 |
5,220 |
0 |
5,220 |
||
|
2022 |
02/22/2022 |
55,500 |
45,202 |
4,971 |
0 |
4,971 |
||
| Property Building Permit History | |||||||||||
|---|---|---|---|---|---|---|---|---|---|---|---|
| Issued | Permit # | Provided by | Bldg # | Description | Est Construction Cost | Status | |||||
| No Building Permit records returned. | |||||||||||
| Click button on building number to access detailed information: | ||||||
|---|---|---|---|---|---|---|
| Bldg # | Vacant/Improved Land | Bldg Description | Year Built | SqFt | # Stories | |
|
1 |
Improved |
Ranch 1 Story |
1940 |
805 |
1 Stories |
|