|
|
|
| Larry Stein Oklahoma County Assessor (405) 713-1200 - Public Access System |
|
|
|
|
|
|
| Real Property Display - Screen Produced 3/12/2026 11:10:19 PM | ||||
|---|---|---|---|---|
| Account: R074150425 | Type: Residential | Location: |
1513 SW 37TH ST |
|
| Building Name/Occupant: |
|
OKLAHOMA CITY |
||
| Owner Name 1: | LOPEZ RAUL VIOLANTE |
Parcel PIN#: |
1667-07-415-0425 |
|
| Owner Name 2: | MARTINEZ ARACELY | 1/4 section #: |
1667 |
|
| Owner Name 3: | Parent Acct: |
|
||
| Billing Address: | 4800 S FOSTER RD STE 138 | Tax District: |
|
|
| City, State, Zip | OKLAHOMA CITY, OK 73119 | School System: |
Oklahoma City #89 |
|
|
Country: (If noted) |
Land Size: |
0.1377 Acres |
||
|
Land Value: 11,700 |
|
|||
|
Sect 17-T11N-R3W Qtr SW |
REDINGS RANCHO VILLAGE
Block
001
Lot
014
|
|||
| Full Legal Description: REDINGS RANCHO VILLAGE 001 014 |
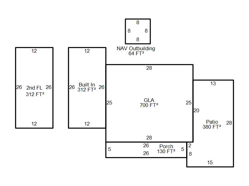
| Photo & Sketch (if available) | Comp Sales (ordered by relevancy) |
|
||||||||||||||||||
|
||||||||||||||||||||
| Value History (*The County Treasurer 405-713-1300 posts & collects actual tax amounts. Contact information HERE) | |||||||||||||
|---|---|---|---|---|---|---|---|---|---|---|---|---|---|
| Year | Market Value | Taxable Mkt Value | Gross Assessed | Exemption | Net Assessed | Millage | Est. Tax | Tax Savings | |||||
|
2025 |
108,000 |
65,405 |
7,194 |
0 |
7,194 |
119.02 |
$856 |
$558 |
|||||
|
2024 |
100,000 |
62,291 |
6,851 |
0 |
6,851 |
119.70 |
$820 |
$497 |
|||||
|
2023 |
88,000 |
59,325 |
6,525 |
0 |
6,525 |
118.33 |
$772 |
$373 |
|||||
|
2022 |
56,500 |
56,500 |
6,215 |
0 |
6,215 |
112.69 |
$700 |
$0 |
|||||
|
2021 |
56,500 |
56,500 |
6,215 |
0 |
6,215 |
112.29 |
$698 |
$0 |
|||||
| Property Account Status/Adjustments/Exemptions | ||
|---|---|---|
| Account # | Exemption Description | Amount |
|
R074150425 |
5% Capped Account |
0 |
| Property Deed Transaction History (Recorded in the County Clerk's Office) | |||||||
|---|---|---|---|---|---|---|---|
| Date | Type | Book | Page | Price | Grantor | Grantee | |
|
5/1/2020 |
|
Deeds |
$55,000 |
SPENCER LANNY |
LOPEZ RAUL VIOLANTE |
||
|
6/10/2009 |
|
Deeds |
$30,000 |
BAKER LEWIS & LOUISE |
SPENCER LANNY |
||
|
11/17/2000 |
|
Deeds |
$29,500 |
HICKS WILLIE R & RETHA A |
BAKER LEWIS & LOUISE |
||
|
7/13/1993 |
|
Historical |
$27,000 |
WINTERS CHARLES & J |
HICKS WILLIE R & RETHA A |
||
|
11/11/1911 |
|
Historical |
$0 |
|
WINTERS CHARLES & J |
||
| Last Mailed Notice of Value (N.O.V.) Information/History | ||||||||
|---|---|---|---|---|---|---|---|---|
| Year | Date | Market Value | Taxable Market Value | Gross Assessed | Exemption | Net Assessed | ||
|
2026 |
02/06/2026 |
109,000 |
68,675 |
7,553 |
0 |
7,553 |
||
|
2025 |
01/31/2025 |
108,000 |
65,405 |
7,194 |
0 |
7,194 |
||
|
2024 |
01/22/2024 |
100,000 |
62,291 |
6,851 |
0 |
6,851 |
||
|
2023 |
01/23/2023 |
88,000 |
59,325 |
6,525 |
0 |
6,525 |
||
|
2019 |
02/26/2019 |
59,000 |
58,275 |
6,411 |
0 |
6,411 |
||
| Property Building Permit History | ||||||
|---|---|---|---|---|---|---|
| Issued | Permit # | Provided by | Bldg # | Description | Est Construction Cost | Status |
|
2/21/2014 |
10460550 |
OKLAHOMA CITY |
1 |
Storage Buil |
4,000 |
Inactive |
| Click button on building number to access detailed information: | ||||||
|---|---|---|---|---|---|---|
| Bldg # | Vacant/Improved Land | Bldg Description | Year Built | SqFt | # Stories | |
|
1 |
Improved |
1½ Story Fin |
1948 |
1,012 |
1.5 Stories |
|